Avico Greentop

Eladó családi ház
Diósd

+ 2 kép 1/5
209 900 000 Ft209.9 M Ft 1 447 586 Ft/m2
4 szoba
145 m2
építés éve:2025

Részletes adatok

Telekméret: 611 m2
Fűtés: Egyéb
Energetikai besorolás: Nem adta meg a hirdető

Az OTP Bank lakáshitel ajánlataFizetett hirdetés

3623814950
Bucalics Roxána
Duna House - Érd, Riminyáki út

Érdekel az OTP Bank kedvezményes lakáshitel ajánlata? *

* A kérdésre „Igen” válasz bejelölése esetén, az „Üzenet küldése” gombra kattintva kijelentem, hogy az OTP Bank Nyrt. Adatkezelési tájékoztatójának tartalmát megismertem és tudomásul vettem.

Eladó családi ház leírása

EGYEDI HÁZ, CSEND, IMPOZÁNS KÖRNYEZET !
Diósdliget keresett részén eladó egyedi tervezésű új építésű otthon !

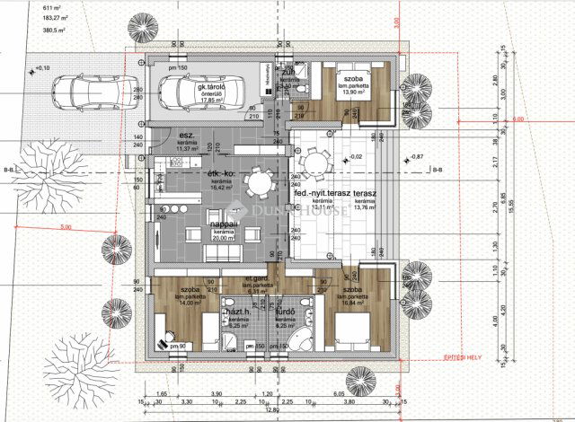
Az ingatlan hasznos  nettó lakótere garázzsal 132,29 m2 + 26 m2 terasz .
Telek mérete 611 m2.
Az építkezés hamarosan kezdetét veszi, így végig követheti az építkezés folyamatait.
Elosztását tekintve:

1 állásos garázs, előszoba, 3 jó méretű szoba , tágas amerikai konyhás nappali részben fedett 26 m2-es teraszkapcsolattal, 2 fürdőszoba, háztartási helyiség, gardrób helyiség. A helyiségek napfényesek, köszönhetően a jó tájolásnak és a jó méretű nyílászáróknak. Az ház aszfaltozott utcában található, rendezett házak környezetében.

Műszaki adatok:
- 30-as Porotherm tégla

- 15 cm homlokzati szigetelés

- Hőszivattyú fűtés, minden helyiségben padlófűtéssel

- 3 rétegű 6 légkamrás nyílászárók

- 1 autónak térkövezett beálló

- Riasztó előkészítése

- szaniterek

- hideg/meleg burkolatok ( 8 000-10 000 Ft/ m2 )

- beltéri ajtók 80 000 Ft/db

- bejárati ajtó 250 000 Ft-ig

EXTRÁK:
- Aluminium elektromos redőny
- 4 db klíma készülék

Ezek mind kiemelkedő minőségben és az átlagnál magasabb áron választhatóak. Árlista tőlem kérhető.

Az építkezés megtekintése után minden a házzal kapcsolatos dokumentáció rendelkezésre áll. Jelenleg alap készültségnél tart az építkezés.
Vállalkozó megbízható, rugalmas, rengeteg referencia munkával rendelkezik, amit közösen megtudunk tekinteni a nagy döntés előtt.

Tömegközlekedés, iskola, óvoda, bevásárlási lehetőségek perceken belül elérhetőek.

További információkért hívjon bizalommal.

Várható átadás: 2026 Tavasz

Hirdetés feltöltve: 2025. 09. 19. Utoljára módosítva: 2026. 01. 13.

4 szobás családi házak ára Diósdon

Ebből az összehasonlításból megtudhatod, hogyan viszonyul a lakás ára a környékbeli családi házak átlagos árához. Ez nem azt jelenti, hogy ennyivel olcsóbb vagy drágább, mint amennyit a lakás ér, hanem hogy ennyivel tér el a környékbeli átlagtól.

Ennek a m² ára
Diósd m² ár
1448 e Ft
1117 e Ft -30%
Ennek az ára
Diósd átlagár
209.9 M Ft m Ft
212.1 m Ft 1%

Az ingatlan elhelyezkedése

Cím: Diósd

Eladó családi házak a környékről

Eladó családi ház
Eladó családi ház

Diósd

184 M Ft
5 szoba
151 m2
Eladó családi ház
Eladó családi ház

Remeteszőlős

399.9 M Ft
5 + 2 szoba
260 m2
Eladó családi ház
Eladó családi ház

Budaörs, Bányász utca

385 M Ft
6 szoba
300 m2
Eladó családi ház
Eladó családi ház

Veresegyház, Salamon utca

119.9 M Ft
4 szoba
160 m2
Eladó családi ház
Eladó családi ház

Diósd

279 M Ft
6 szoba
251 m2
Eladó családi ház
Eladó családi ház

Diósd

39.9 M Ft
1 szoba
49 m2
Eladó családi ház
Eladó családi ház

Budakeszi

130 M Ft
5 szoba
30 m2
Eladó családi ház
Eladó családi ház

Gyál, Gyál út

169.9 M Ft
2 szoba
90 m2
Eladó családi ház
Eladó családi ház

Budaörs, Városközpont utca

119.5 M Ft
5 + 1 szoba
140 m2
Eladó családi ház
Eladó családi ház

Diósd

690 M Ft
6 szoba
393 m2
Eladó családi ház
Eladó családi ház

Budaörs, Odvshegy utca

268.9 M Ft
5 szoba
235 m2
Eladó családi ház
Eladó családi ház

Budakeszi, Makkosmária

100 M Ft
1 szoba
10 m2
Eladó családi ház
Eladó családi ház

Diósd

429 M Ft
5 szoba
307 m2
Eladó családi ház
Eladó családi ház

Tápiószele

11.9 M Ft
3 szoba
62 m2
Eladó családi ház
Eladó családi ház

Diósd

279.9 M Ft
5 szoba
201 m2
Eladó családi ház
Eladó családi ház

Tápiógyörgye

19.9 M Ft
3 szoba
65 m2
Eladó családi ház
Eladó családi ház

Pécel, Reményik Sándor utca

296 M Ft
6 szoba
396 m2
Eladó családi ház
Eladó családi ház

Budakeszi, Budakeszi kertváros

140 M Ft
2 szoba
55 m2
Eladó családi ház
Eladó családi ház

Érd

164.9 M Ft
5 szoba
192 m2
Eladó családi ház
Eladó családi ház

Diósd

119.5 M Ft
5 szoba
200 m2
Eladó családi ház
Eladó családi ház

Kerepes

81.99 M Ft
5 szoba
102 m2
Eladó családi ház
Eladó családi ház

Diósd

690 M Ft
6 szoba
393 m2
Eladó családi ház
Eladó családi ház

Diósd

430 M Ft
6 szoba
431 m2
Eladó családi ház
Eladó családi ház

Diósd, Diófasor utca

120 M Ft
4 szoba
90 m2

Falusi CSOK ingatlanok

Eladó családi ház
Eladó családi ház

Recsk

59 M Ft
2 szoba
70 m2
Eladó családi ház
Eladó családi ház

Tápiószőlős

14.9 M Ft
2 szoba
67 m2
Eladó családi ház
Eladó családi ház

Kenderes

149.9 M Ft
6 + 2 szoba
420 m2
Eladó családi ház
Eladó családi ház

Segesd

14.3 M Ft
3 szoba
100 m2
Eladó családi ház
Eladó családi ház

Balatonudvari

79.9 M Ft
4 szoba
97 m2
Eladó családi ház
Eladó családi ház

Szabadbattyán

74.9 M Ft
3 szoba
105 m2
Eladó családi ház
Eladó családi ház

Jánosháza

25 M Ft
3 szoba
90 m2
Eladó családi ház
Eladó családi ház

Verseg

54 M Ft
2 szoba
92 m2