Astora Márvány8

Eladó családi ház
Debrecen

+ 2 kép 1/5
200 000 000 Ft200 M Ft 1 600 000 Ft/m2
4 szoba
125 m²
építés éve:2026

Részletes adatok

Telekméret: 450 m2
Fűtés: Egyéb
Energetikai besorolás: Nem adta meg a hirdető

Az OTP Bank lakáshitel ajánlataFizetett hirdetés

3652234128
Sallai Ferenc
Duna House - Debrecen, Derék utca

Érdekel az OTP Bank kedvezményes lakáshitel ajánlata? *

* A kérdésre „Igen” válasz bejelölése esetén, az „Üzenet küldése” gombra kattintva kijelentem, hogy az OTP Bank Nyrt. Adatkezelési tájékoztatójának tartalmát megismertem és tudomásul vettem.

Eladó családi ház leírása

Pallagi ingatlanok akár luxus kivitelbenFalak:
-külső: POROTHERM 30 KLÍMA + 10 cm AUSTROTHERM GRAFIT
-belső térelválasztó falak: POROTHERM 10 N+F, az emeleten gipszkarton szerkezetek, hangszigetelő betéttel
Bádogos szerkezetek: Lindab lemezből készülnek
Burkolatok: magas minőségű kerámia padló és falburkolatok valamint laminált parketta
Külső felületképzések: ragasztott tégla lapburkolat és fahatású építőlemez
Külső nyílászárók: hőhídmentes műanyag szerkezetek, három rétegű hőszigetelt üvegezéssel, motoros mozgatású alumínium redőnnyel és szúnyoghálóval

Gépészet:
Az épület fűtését hűtését Panasonic hőszivattyú rendszer fogja biztosítani. Tartalék fűtés és meleg vízellátás céljából elhelyezésre kerül 1 db elektromos bojler.
Az egész házban álmennyezeti fűtő-hűtő panelek, hővisszanyerő rendszer, a fürdőszobákban törölköző szárítós radiátorok elektromos fűtőpatronnal szerelve, minden helyiségben (Kamra kivételével) padlófűtés, valamint a Nappali - Étkezőben magas oldalfali fan-coil.
Magas minőségű szaniterek és csaptelepek.
Extra: - Elektromos: Smart Node okos rendszer, H tarifa, napelem és riasztó.- A konyhabútor választható, mely egyedi gyártású, 3 típusból választható, kompletten gépesítve, mely tartalmazza a hűtőt, mikrót, mosogatógépet, sütőt, főzőlapot, elszívót.- Magas minőségű lámpatestek bel és kültéren- kert: térkövezett és füvesített, kerítéssel körbekerített, auzomata öntözőrendszerrel ellátott- fűtött medence
További kérdéseivel kapcsolatban várom hívását, érdeklődését, egyeztessünk helyszíni megtekintést!

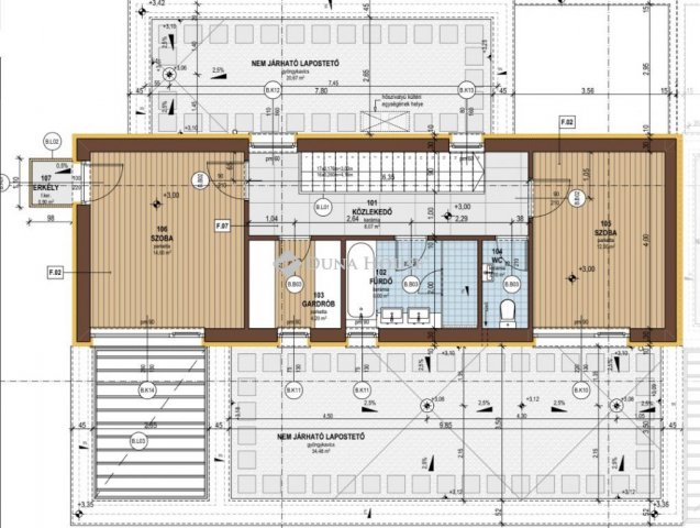
E z az ingatlan B. típusú 152 nm br. alapterülettel, 315 nm kerttel, nappali + 3 szobával.Az ár az extra felszereltséget tükrözi, amennyiben extrák nélkül szeretne vásárolni úgy az ár csak: 167 Mft.

Hirdetés feltöltve: 2026. 04. 24.

4 szobás családi házak ára Debrecenben

Ebből az összehasonlításból megtudhatod, hogyan viszonyul a lakás ára a környékbeli családi házak átlagos árához. Ez nem azt jelenti, hogy ennyivel olcsóbb vagy drágább, mint amennyit a lakás ér, hanem hogy ennyivel tér el a környékbeli átlagtól.

Ennek a m² ára
Debrecen m² ár
1600 e Ft
967 e Ft -65%
Ennek az ára
Debrecen átlagár
200 M Ft m Ft
142.7 m Ft -40%

Az ingatlan elhelyezkedése

Cím: Debrecen

Eladó családi házak a környékről

Debrecen
Eladó családi ház

Debrecen

75 M Ft
4 szoba
96 m²
Debrecen
Eladó családi ház

Debrecen

179 M Ft
4 szoba
127 m²
Debrecen
Eladó családi ház

Debrecen

150 M Ft
7 szoba
300 m²
Debrecen
Eladó családi ház

Debrecen

220 M Ft
7 szoba
210 m²
Hajdúszoboszló
Eladó családi ház

Hajdúszoboszló

175 M Ft
7 szoba
415 m²
Egyek, Bartók Béla utca
Eladó családi ház

Egyek

12.9 M Ft
3 szoba
62 m²
Hajdúdorog, Templom utca
Eladó családi ház

Hajdúdorog

95 M Ft
9 szoba
270 m²
Debrecen
Eladó családi ház

Debrecen

85 M Ft
4 szoba
100 m²
Debrecen
Eladó családi ház

Debrecen

13.9 M Ft
2 szoba
56 m²
Debrecen
Eladó családi ház

Debrecen

275 M Ft
5 szoba
285 m²
Debrecen
Eladó családi ház

Debrecen

550 M Ft
16 szoba
967 m²
Debrecen
Eladó családi ház

Debrecen

179 M Ft
4 szoba
127 m²
Debrecen
Eladó családi ház

Debrecen

420 M Ft
5 szoba
332 m²
Debrecen, Kertváros, Kosztolányi Dezső utca
Eladó családi ház

Debrecen

220 M Ft
7 szoba
210 m²
Hajdúböszörmény
Eladó családi ház

Hajdúböszörmény

137 M Ft
6 szoba
240 m²
Debrecen, Haláp Tanya
Eladó családi ház

Debrecen

380 M Ft
10 szoba
500 m²
Debrecen
Eladó családi ház

Debrecen

275 M Ft
5 szoba
285 m²
Püspökladány
Eladó családi ház

Püspökladány

49.8 M Ft
5 szoba
150 m²
Debrecen
Eladó családi ház

Debrecen

139 M Ft
6 szoba
240 m²
Debrecen
Eladó családi ház

Debrecen

150 M Ft
4 szoba
318 m²
Debrecen
Eladó családi ház

Debrecen

170 M Ft
4 + 1 szoba
163 m²
Debrecen, Gerébytelep, Mozdony utca
Eladó családi ház

Debrecen

155 M Ft
3 szoba
146 m²
Debrecen, Postakert, Vajdahunyad utca 3
Eladó családi ház

Debrecen

199 M Ft
5 szoba
170 m²
Debrecen
Eladó családi ház

Debrecen

79.99 M Ft
4 szoba
69 m²

Falusi CSOK ingatlanok

Jászkarajenő
Eladó családi ház

Jászkarajenő

17.5 M Ft
2 + 1 szoba
47 m²
Fonyód
Eladó téglalakás

Fonyód

175 M Ft
3 szoba
79 m²
Tabdi
Eladó családi ház

Tabdi

95 M Ft
45 szoba
1490 m²
Izsófalva
Eladó családi ház

Izsófalva

22.9 M Ft
3 szoba
105 m²
Somogyszil
Eladó családi ház

Somogyszil

27.9 M Ft
3 szoba
140 m²
Ceglédbercel
Eladó családi ház

Ceglédbercel

95 M Ft
6 szoba
220 m²
Seregélyes
Eladó családi ház

Seregélyes

75 M Ft
6 szoba
160 m²
Enese
Eladó családi ház

Enese

94.99 M Ft
3 + 1 szoba
124 m²