Astora Art House

Eladó családi ház
Debrecen

+ 17 kép 1/20
79 900 000 Ft79.9 M Ft 596 269 Ft/m2
5 szoba
134 m2
építés éve:1965

Részletes adatok

Telekméret: 466 m2
Fűtés: Gázkazán
Energetikai besorolás: Nem adta meg a hirdető

Az OTP Bank lakáshitel ajánlataFizetett hirdetés

+36 20 531
Tarján Anita
referens

Érdekel az OTP Bank kedvezményes lakáshitel ajánlata? *

* A kérdésre „Igen” válasz bejelölése esetén, az „Üzenet küldése” gombra kattintva kijelentem, hogy az OTP Bank Nyrt. Adatkezelési tájékoztatójának tartalmát megismertem és tudomásul vettem.

Eladó családi ház leírása

Kétgenerációs családi ház eladó Debrecenben, a Csapókert szomszédságában!

Ha egy tágas, kétgenerációs otthont keres Debrecen egyik kedvelt részén, a Polgár utcában, akkor ez az ingatlan remek választás lehet! A 466 m2-es telken egy 100 m2-es főépület és egy 34 m2-es külön lakrész található, így akár nagycsaládosoknak és összeköltöző családtagoknak is ideális.

Főbb jellemzők:

* Szerkezeti jellemzők:
- Telek mérete: 466 m2
- Beton alap, tégla falazat
- Palafedésű tető
- Részleges külső és belső szigetelés
- Vegyes fa és műanyag nyílászárók
- Garázs és fedett gépkocsi-beálló
- Több tárolásra alkalmas helyiség
- Fűtést és melegvízet gázkazán szolgáltatja
- Összközműves
- Fúrt kút

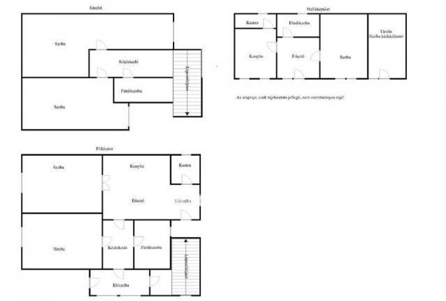
* Főépület (kétszintes, 100 m2):
- 4 szoba
- Konyha
- 2 fürdőszoba
- 2 közlekedő
- 2 előszoba
- Lépcsőfeljáró
- Spájz

* Melléképület (34 m2, külön lakrész):
- 1 szoba
- Konyha
- Étkező
- Fürdőszoba
- Kamra

Az ingatlan per- és tehermentes, azonnal birtokba vehető!

Ez az otthon praktikus elosztásával és két különálló lakóegységével sok lehetőséget rejt magában!A környék rendezett, csendes, mégis könnyen megközelíthető, a közelben boltok, iskolák és tömegközlekedési lehetőségek is elérhetők.

További kérdéseire készséggel válaszolok, akár hétvégén is. Kedvezményes kamatozású lakásvásárlási hitelek, valamint Babaváró és CSOK ügyintézése az OTP hátterével irodánkban.
Ref.szám: M298576

Hirdetés feltöltve: 2025. 11. 18. Utoljára módosítva: 2025. 11. 18.

5 szobás családi házak ára Debrecenben

Ebből az összehasonlításból megtudhatod, hogyan viszonyul a lakás ára a környékbeli családi házak átlagos árához. Ez nem azt jelenti, hogy ennyivel olcsóbb vagy drágább, mint amennyit a lakás ér, hanem hogy ennyivel tér el a környékbeli átlagtól.

Ennek a m² ára
Debrecen m² ár
596 e Ft
879 e Ft 32%
Ennek az ára
Debrecen átlagár
79.9 M Ft m Ft
199.3 m Ft 60%

Az ingatlan elhelyezkedése

Cím: Debrecen

Eladó családi házak a környékről

Eladó családi ház
Eladó családi ház

Hajdúszoboszló

65 M Ft
7 szoba
250 m2
Eladó családi ház
Eladó családi ház

Debrecen

75 M Ft
4 szoba
96 m2
Eladó családi ház
Eladó családi ház

Hajdúsámson

81 M Ft
2 szoba
80 m2
Eladó családi ház
Eladó családi ház

Debrecen, Lencztelep, Szeged utca

129.9 M Ft
7 szoba
240 m2
Eladó családi ház
Eladó családi ház

Szentpéterszeg

47 M Ft
3 szoba
92 m2
Eladó családi ház
Eladó családi ház

Debrecen

66.9 M Ft
3 szoba
85 m2
Eladó családi ház
Eladó családi ház

Debrecen

85 M Ft
4 szoba
100 m2
Eladó családi ház
Eladó családi ház

Debrecen

105 M Ft
3 szoba
120 m2
Eladó családi ház
Eladó családi ház

Debrecen

850 M Ft
4 szoba
720 m2
Eladó családi ház
Eladó családi ház

Hajdúdorog, Templom utca

95 M Ft
9 szoba
270 m2
Eladó családi ház
Eladó családi ház

Hajdúszoboszló

99 M Ft
5 + 1 szoba
160 m2
Eladó családi ház
Eladó családi ház

Hajdúszoboszló

8.49 M Ft
1 szoba
24 m2
Eladó családi ház
Eladó családi ház

Debrecen

179 M Ft
4 szoba
127 m2
Eladó családi ház
Eladó családi ház

Debrecen

85 M Ft
4 szoba
100 m2
Eladó családi ház
Eladó családi ház

Debrecen

150 M Ft
7 szoba
300 m2
Eladó családi ház
Eladó családi ház

Debrecen, Kádár dűlő

150 M Ft
4 szoba
140 m2
Eladó családi ház
Eladó családi ház

Hajdúböszörmény

99 M Ft
2 + 1 szoba
142 m2
Eladó családi ház
Eladó családi ház

Debrecen

108.9 M Ft
6 szoba
170 m2
Eladó családi ház
Eladó családi ház

Debrecen

275 M Ft
5 szoba
285 m2
Eladó családi ház
Eladó családi ház

Debrecen

75 M Ft
4 szoba
96 m2
Eladó családi ház
Eladó családi ház

Debrecen

13.9 M Ft
2 szoba
56 m2
Eladó családi ház
Eladó családi ház

Debrecen, Haláp Tanya

368.6 M Ft
10 szoba
500 m2
Eladó családi ház
Eladó családi ház

Debrecen, Méhészföld utca

26 M Ft
1 szoba
36 m2
Eladó családi ház
Eladó családi ház

Debrecen

550 M Ft
16 szoba
967 m2

Falusi CSOK ingatlanok

Eladó családi ház
Eladó családi ház

Ságvár

54.9 M Ft
3 szoba
87 m2
Eladó családi ház
Eladó családi ház

Orci

59.9 M Ft
3 szoba
101 m2
Eladó családi ház
Eladó családi ház

Tápiógyörgye

44.9 M Ft
3 szoba
105 m2
Eladó családi ház
Eladó családi ház

Magyarpolány

90 M Ft
2 szoba
70 m2
Eladó családi ház
Eladó családi ház

Adásztevel

8.9 M Ft
2 szoba
63 m2
Eladó családi ház
Eladó családi ház

Ráksi

69.9 M Ft
4 szoba
139 m2
Eladó családi ház
Eladó családi ház

Mórichida

44.9 M Ft
3 szoba
89 m2
Eladó családi ház
Eladó családi ház

Kemeneshőgyész

6.9 M Ft
3 szoba
124 m2