Eladó családi ház
Dány

+ 6 kép 1/9
94 900 000 Ft94.9 M Ft 465 196 Ft/m2
6 + 1 szoba
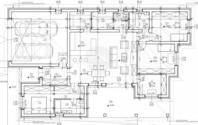
204 m2
építés éve:2025

Részletes adatok

Telekméret: 906 m2
Fűtés: Geotermikus
Közmű: Víz, Villany, Csatorna
Energetikai besorolás: Nem adta meg a hirdető

Az OTP Bank lakáshitel ajánlataFizetett hirdetés

+36 70 412
Salétros Dániel
Intor Ingatlan Kft.

Érdekel az OTP Bank kedvezményes lakáshitel ajánlata? *

* A kérdésre „Igen” válasz bejelölése esetén, az „Üzenet küldése” gombra kattintva kijelentem, hogy az OTP Bank Nyrt. Adatkezelési tájékoztatójának tartalmát megismertem és tudomásul vettem.

Eladó családi ház leírása

Egy modern, világos és prémium kivitelezésű ingatlant keresel a felkapott környéken? Ezt most neked álmodtuk meg! Az új építésű, panorámás ingatlanunk egy csendes, biztonságos és kiválóan ellátott környéken épül, ahol minden megtalálható a mindennapi élethez szükséges dolgoktól kezdve a kikapcsolódási lehetőségekig.

Nagy referenciával* rendelkező helyi vállalkozó készíti, aki minden kérdés és kérés esetén rendelkezésünkre áll. Az építkezés szerződés után azonnal elkezdődik, és 6 hónapon belül kulcsrakész lesz.
Az ingatlan állapota új építésű, így minden részletét az Ön igényeinek megfelelően alakítottuk ki. Az építkezés már elkezdődött, jelenleg az alapozás utáni állapot látható.

Műszaki adatok:

-Alapozás: Monolit vasbeton sávalap (C16/20), lépcsősen kialakítva, szélessége 50 cm. Talpkoszorú: 25x30 cm, 3+3 db Ø12 mm fővassal, Ø8/20 kengyelezéssel.

-Lábazati falazat: 30 cm vastag ZSK-30 zsalukő, soronként 2 db Ø12 mm fővassal.

-Koszorú: 25 cm magas monolit vasbeton (C20/25), 4 db Ø12 mm fővassal, Ø8/20 kengyelezéssel, 5 cm hőszigeteléssel.

-Felmenő falazat: 30 cm vastag Ytong Classic 30 pórusbeton tégla.

-Nyílásáthidalás: 25 cm magas monolit vasbeton

-Födémszerkezet: I. osztályú fenyő fafödém, sűrített gerendázattal, acél vagy fakötéses rögzítéssel.

-Tetőszerkezet: Kétszékes fa fedélszék, állások távolsága 70 cm.

-Héjazat: Kerámia cserépfedés ( választható szín)

-Hőszigetelés: 30 cm Austrotherm padlásfödém-szigetelés, 12 cm Austrotherm NT-100 lépésálló szigetelés.

-Nyílászárók: Egyedi fehér műanyag külső nyílászárók (U=1,1 W/m²K), tripla üvegezésű 6 légkamrás, aeroco szellőzővel, belső fa ajtók.

-Homlokzat: Austrotherm AT-H80 hőszigetelés, weber vékonyvakolat (bordó és antracit színek).

-Bádogos szerkezetek: Horganyzott ereszcsatorna

-Burkolatok: Greslap, padlóburkoló lap ( költségkereten belül választható), laminált melegburkolat

-Belső festés: Fehér diszperzit festés, külső fa szerkezetek barnára festve.

-Járda: 6 cm térkő, 10 cm kavicságyon, C10 beton szegéllyel, vízelvezetéssel.

-Gépészet: kondenzációs gázkazán, split klímás fűtés-hűtés vagy hőszivattyú padlófűtéssel.

-Elektromos hálózat: 220V légvezeték, főelosztó kismegszakítókkal, tűzeseti lekapcsolással, H-tarifás óra opció

A burkolatok és a beltéri ajtók a vállalkozó által biztosított összeghatárig választhatóak:

• Hidegburkolat: 5.000.-/m2
• Melegburkolat: 5.000.-/m2
• Beltéri ajtók: 60.000.-/db
• Fürdőkád: 50.000.-
• Csaptelepek: 15000.-/db

A környék előnyeit tekintve, természetvédelmi területek és erdők is találhatóak a közelben, így a természet szerelmesei számára is ideális helyszín lehet az ingatlan. Emellett a város központjában üzletek, szolgáltatások és étterem is található, így a mindennapi élethez szükséges dolgok is könnyen elérhetőek. Budapest 35-40p alatt elérhető.

Ha kérdése merülne fel az ingatlanról, vagy érdeklődne további részletek iránt, bátran keressen minket.

AZ INGATLAN CSOK+ KÉPES!
Várható befejezés 2025. ősz

Intor Ingatlan – Otthont biztonságban!

Irodánk rendelkezésére áll az értékesítés első lépésétől, egészen az utolsóig. Amennyiben valamelyik ingatlanunkat jelenlegi ingatlanja értékesítése után kívánja megvásárolni, vagy egy megbízható irodával kívánna együttműködni, amely teljeskörű ügyintézést biztosít, megfizethető áron, forduljon hozzánk bizalommal!

Hirdetés feltöltve: 2025. 03. 13. Utoljára módosítva: 2025. 09. 20.

Az ingatlan elhelyezkedése

Cím: Dány

Eladó családi házak a környékről

Eladó családi ház
Eladó családi ház

Dány

39.8 M Ft
4 szoba
92 m2
Eladó családi ház
Eladó családi ház

Budaörs, Bányász utca

385 M Ft
6 szoba
300 m2
Eladó családi ház
Eladó családi ház

Remeteszőlős

399.9 M Ft
5 + 2 szoba
260 m2
Eladó családi ház
Eladó családi ház

Dány, Nincs utca

70 M Ft
4 szoba
110 m2
Eladó családi ház
Eladó családi ház

Dány

59.9 M Ft
6 szoba
200 m2
Eladó családi ház
Eladó családi ház

Dány

70 M Ft
4 szoba
110 m2
Eladó családi ház
Eladó családi ház

Budaörs, Odvshegy utca

268.9 M Ft
5 szoba
235 m2
Eladó családi ház
Eladó családi ház

Budakeszi, Makkosmária

100 M Ft
1 szoba
10 m2
Eladó családi ház
Eladó családi ház

Dány

59.9 M Ft
4 szoba
93 m2
Eladó családi ház
Eladó családi ház

Tápiószele

37.9 M Ft
4 szoba
141 m2
Eladó családi ház
Eladó családi ház

Szigetszentmiklós, Városközpont, Tököli út közeli utca

120 M Ft
7 szoba
525 m2
Eladó családi ház
Eladó családi ház

Dány

144.9 M Ft
7 szoba
160 m2
Eladó családi ház
Eladó családi ház

Dány

39.99 M Ft
4 szoba
142 m2
Eladó családi ház
Eladó családi ház

Kerepes

199 M Ft
6 szoba
360 m2
Eladó családi ház
Eladó családi ház

Dány

157.5 M Ft
10 szoba
260 m2
Eladó családi ház
Eladó családi ház

Dány

79.9 M Ft
5 szoba
145 m2
Eladó családi ház
Eladó családi ház

Sződ, Rátóti utca

149.99 M Ft
11 szoba
270 m2
Eladó családi ház
Eladó családi ház

Érd

382 M Ft
6 szoba
420 m2
Eladó családi ház
Eladó családi ház

Budaörs, Városközpont utca

119.5 M Ft
5 + 1 szoba
140 m2
Eladó családi ház
Eladó családi ház

Dány

79.9 M Ft
5 szoba
145 m2
Eladó családi ház
Eladó családi ház

Budakeszi

130 M Ft
5 szoba
30 m2
Eladó családi ház
Eladó családi ház

Tápiószentmárton

7.9 M Ft
2 + 1 szoba
86 m2
Eladó családi ház
Eladó családi ház

Dunakeszi

250 M Ft
4 szoba
180 m2
Eladó családi ház
Eladó családi ház

Dunavarsány

69.9 M Ft
3 + 1 szoba
140 m2

Falusi CSOK ingatlanok

Eladó családi ház
Eladó családi ház

Bár

24.5 M Ft
4 szoba
125 m2
Eladó családi ház
Eladó családi ház

Bakonya

48 M Ft
3 szoba
168 m2
Eladó családi ház
Eladó családi ház

Szőlősgyörök, Táncsics Mihály utca

47.999 M Ft
5 szoba
105 m2
Eladó családi ház
Eladó családi ház

Csokonyavisonta

18 M Ft
4 szoba
116 m2
Eladó családi ház
Eladó családi ház

Badacsonytomaj

199.8 M Ft
3 szoba
166 m2
Eladó családi ház
Eladó családi ház

Zánka

89 M Ft
5 + 2 szoba
200 m2
Eladó családi ház
Eladó családi ház

Magyarszék

48.5 M Ft
3 + 1 szoba
86 m2
Eladó családi ház
Eladó családi ház

Tápióbicske

24.9 M Ft
4 szoba
83 m2