Astora Olive Club House

Eladó családi ház
Csongrád

79 900 000 Ft79.9 M Ft 665 833 Ft/m2
3 + 1 szoba
120 m2
építés éve:1990

Részletes adatok

Állapot: Átlagos
Telekméret: 734 m2
Fűtés: Gázkazán
Parkolás: Garázs
Energetikai besorolás: Nem adta meg a hirdető
Zenga Premier

Friss hirdetések, amiket nem találsz meg más ingatlankereső portálon.

Fedezd fel elsőként a Zenga Premier címkés eladó ingatlanokat!

További részletek a zenga.hu-n

Az OTP Bank lakáshitel ajánlataFizetett hirdetés

+36 70 708
Vincze Zoltán
referens

Érdekel az OTP Bank kedvezményes lakáshitel ajánlata? *

* A kérdésre „Igen” válasz bejelölése esetén, az „Üzenet küldése” gombra kattintva kijelentem, hogy az OTP Bank Nyrt. Adatkezelési tájékoztatójának tartalmát megismertem és tudomásul vettem.

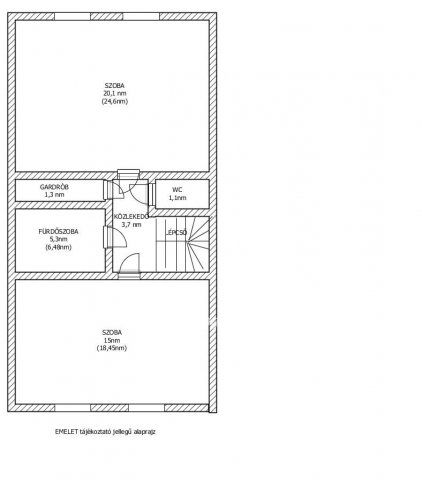
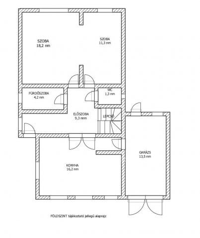
Eladó családi ház leírása

** CSAK AZ OTP INGATLANPONT KÍNÁLATÁBAN! *** Eladóvá vált egy 1990-ben épült tégla szerkezetű dupla komfortos családi ház a városközpont közelében 734 m2 telken.LIDL, PEPCO, KIK a közelben. A ház tetőtér beépítéses 3 és fél szobás, kiváló elosztásával alkalmas akár egy nagyobb család számára is. A nappaliban hangulatos cserépkályha biztosít kellemes meleget a hidegebb hónapokban, mellette pedig gáz-központi fűtés is üzemel, ami a kényelmet szolgálja. A fa nyílászárók dupla üvegezésűek, redőnnyel felszereltek.
A kert rendezett, karbantartott, alkalmas pihenésre, kerti sütögetésre és a fedett kerti kiülő biztosítja a teret a családi, baráti összejövetelekre.1 kocsiállásos garázs is van, melyet a főépületen belülről is meg lehet közelíteni.
A házhoz tartozik még egy több mint 100 m2-es 6 helyiségből álló tornácos épület, egykor lakásként szolgált, ma felújításra szorul. Kiváló lehetőség üzlethelyiség létrehozására is. Önálló bejárattal rendelkezik.
Amennyiben felkeltettem érdeklődését, hívjon bizalommal! Az OTP Ingatlanpont teljes körű ügyintézéssel áll az eladók és vevők rendelkezésére. A kínálatunkból választott ingatlan finanszírozásához kedvezményes hitelkonstrukciót biztosítunk. Az OTP Banknál elérhető Otthon Start Hitelprogram, Babaváró, falusi CSOK, CSOK Plusz hitel és egyéb kölcsönök intézését díjmentesen vállaljuk. Az adásvételi szerződés megkötéséhez igény szerint ügyvédet biztosítunk. Irodáink Csongrád, Fő utca 54. szám és Szentes, Petőfi utca 12. (buszmegálló felől) várjuk a személyes érdeklődőket. Válasszuk ki együtt az Önnek legmegfelelőbb ajánlatot banki sorban állás nélkül!

Hirdetés feltöltve: 2025. 12. 27. Utoljára módosítva: 2025. 12. 27.

4 szobás családi házak ára Csongrádon

Ebből az összehasonlításból megtudhatod, hogyan viszonyul a lakás ára a környékbeli családi házak átlagos árához. Ez nem azt jelenti, hogy ennyivel olcsóbb vagy drágább, mint amennyit a lakás ér, hanem hogy ennyivel tér el a környékbeli átlagtól.

Ennek a m² ára
Csongrád m² ár
666 e Ft
330 e Ft -102%
Ennek az ára
Csongrád átlagár
79.9 M Ft m Ft
38 m Ft -110%

Az ingatlan elhelyezkedése

Cím: Csongrád

Eladó családi házak a környékről

Eladó családi ház
Eladó családi ház

Csongrád

21.9 M Ft
2 szoba
48 m2
Eladó családi ház
Eladó családi ház

Csongrád

11.3 M Ft
3 szoba
73 m2
Eladó családi ház
Eladó családi ház

Csongrád

89 M Ft
5 + 1 szoba
162 m2
Eladó családi ház
Eladó családi ház

Baks

27.9 M Ft
2 szoba
82 m2
Eladó családi ház
Eladó családi ház

Makó, Ráday 9/b

42 M Ft
1 szoba
150 m2
Eladó családi ház
Eladó családi ház

Röszke

15.9 M Ft
3 szoba
80 m2
Eladó családi ház
Eladó családi ház

Csongrád

45 M Ft
4 szoba
122 m2
Eladó családi ház
Eladó családi ház

Csongrád

59.9 M Ft
5 szoba
160 m2
Eladó családi ház
Eladó családi ház

Szeged

79.9 M Ft
5 szoba
135 m2
Eladó családi ház
Eladó családi ház

Hódmezővásárhely

120 M Ft
7 szoba
236 m2
Eladó családi ház
Eladó családi ház

Tiszasziget

49.9 M Ft
4 szoba
160 m2
Eladó családi ház
Eladó családi ház

Makó, Béke utca

115 M Ft
4 szoba
146 m2
Eladó családi ház
Eladó családi ház

Domaszék

199 M Ft
6 szoba
280 m2
Eladó családi ház
Eladó családi ház

Csongrád

45 M Ft
3 szoba
160 m2
Eladó családi ház
Eladó családi ház

Csongrád

14.9 M Ft
2 + 1 szoba
107 m2
Eladó családi ház
Eladó családi ház

Csongrád

59.9 M Ft
5 szoba
160 m2
Eladó családi ház
Eladó családi ház

Csongrád

11.3 M Ft
3 szoba
73 m2
Eladó családi ház
Eladó családi ház

Csongrád

11.3 M Ft
3 szoba
73 m2
Eladó családi ház
Eladó családi ház

Szentes

58 M Ft
4 szoba
147 m2
Eladó családi ház
Eladó családi ház

Szeged

225 M Ft
5 szoba
203 m2
Eladó családi ház
Eladó családi ház

Csongrád

39.5 M Ft
6 szoba
165 m2
Eladó családi ház
Eladó családi ház

Csongrád

15 M Ft
2 szoba
40 m2
Eladó családi ház
Eladó családi ház

Hódmezővásárhely, Kishomok, Új-Kishomok

60 M Ft
3 szoba
100 m2
Eladó családi ház
Eladó családi ház

Szeged

125 M Ft
4 szoba
106 m2

Falusi CSOK ingatlanok

Eladó családi ház
Eladó családi ház

Abádszalók

70 M Ft
3 szoba
100 m2
Eladó családi ház
Eladó családi ház

Fertőd

189.9 M Ft
4 szoba
175 m2
Eladó családi ház
Eladó családi ház

Tápióbicske

38 M Ft
3 szoba
50 m2
Eladó családi ház
Eladó családi ház

Onga

72.9 M Ft
4 szoba
109 m2
Eladó családi ház
Eladó családi ház

Ceglédbercel

132 M Ft
5 szoba
189 m2
Eladó családi ház
Eladó családi ház

Hövej

119.9 M Ft
3 szoba
75 m2
Eladó családi ház
Eladó családi ház

Mezőfalva

39 M Ft
3 szoba
77 m2
Eladó családi ház
Eladó családi ház

Ádánd

79 M Ft
4 szoba
140 m2