Astora Olive Club House

Eladó családi ház
Csongrád

+ 7 kép 1/10
12 000 000 Ft12 M Ft 139 535 Ft/m2
3 szoba
86 m2
építés éve:1935

Részletes adatok

Állapot: Felújítandó
Telekméret: 559 m2
Fűtés: Egyéb
Energetikai besorolás: Nem adta meg a hirdető

Az OTP Bank lakáshitel ajánlataFizetett hirdetés

+36 30 656
Fábrik-Csendes Zsuzsanna
Szentes OTP Ingatlanpont Iroda Petőfi utca 12.

Érdekel az OTP Bank kedvezményes lakáshitel ajánlata? *

* A kérdésre „Igen” válasz bejelölése esetén, az „Üzenet küldése” gombra kattintva kijelentem, hogy az OTP Bank Nyrt. Adatkezelési tájékoztatójának tartalmát megismertem és tudomásul vettem.

Eladó családi ház leírása

Csak az OTP Ingatlanpont kínálatában!
Csongrád központhoz közeli csendes utcájában eladó, egy jó szerkezetű, felújítandó családi ház!
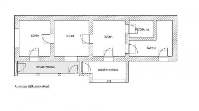
Az ingatlan kiváló lokációval rendelkezik. Az 559m2-es telken egy vegyes falazatú, felújításra szoruló lakóépület található. A 86m2 hasznos alapterületű házban 4 nagyobb helyiség, egy fürdőszoba, valamint egy nyitott és egy beépített veranda kapott helyet.
Villany, víz, csatorna közművel rendelkezik, a gáz a telken belül van, de gázóra jelenleg nincs.
A villanyhálózat részleges felújításon esett át, befejezésre vár.
A szobák betonosak.
Az ingatlan per, teher, és igénymentes.
Amennyiben felkeltettem érdeklődését, hívjon bizalommal!
Az OTP Ingatlanpont teljeskörű ügyintézéssel áll az eladók és vevők rendelkezésére. A kínálatunkból választott ingatlan finanszírozásához kedvezményes hitelkonstrukciót biztosítunk. Az OTP Banknál elérhető Babaváró, Otthon Start Hitelprogram, falusi CSOK, CSOK Plusz hitel és egyéb kölcsönök intézését díjmentesen vállaljuk. Az adásvételi szerződés megkötéséhez igény szerint ügyvédet biztosítunk. Irodáink Szentes, Petőfi utca 12. a buszmegálló felől, és Csongrád, Fő utca 54. szám alatt várjuk a személyes érdeklődőket. Válasszuk ki együtt az Önnek legmegfelelőbb ajánlatot banki sorban állás nélkül!

Referencia szám: M313890-ZE

Hirdetés feltöltve: 2025. 12. 12. Utoljára módosítva: 2025. 12. 12.

3 szobás családi házak ára Csongrádon

Ebből az összehasonlításból megtudhatod, hogyan viszonyul a lakás ára a környékbeli családi házak átlagos árához. Ez nem azt jelenti, hogy ennyivel olcsóbb vagy drágább, mint amennyit a lakás ér, hanem hogy ennyivel tér el a környékbeli átlagtól.

Ennek a m² ára
Csongrád m² ár
140 e Ft
222 e Ft 37%
Ennek az ára
Csongrád átlagár
12 M Ft m Ft
19.4 m Ft 38%

Az ingatlan elhelyezkedése

Cím: Csongrád

Eladó családi házak a környékről

Eladó családi ház
Eladó családi ház

Szeged

195 M Ft
4 szoba
210 m2
Eladó családi ház
Eladó családi ház

Makó, Béke utca

115 M Ft
4 szoba
146 m2
Eladó családi ház
Eladó családi ház

Csongrád

16.9 M Ft
3 + 1 szoba
85 m2
Eladó családi ház
Eladó családi ház

Szeged

109 M Ft
2 szoba
980 m2
Eladó családi ház
Eladó családi ház

Szeged, Alsóváros, Szabadság tér

89.9 M Ft
3 + 1 szoba
100 m2
Eladó családi ház
Eladó családi ház

Csongrád

31.5 M Ft
2 szoba
140 m2
Eladó családi ház
Eladó családi ház

Makó, Ráday 9/b

42 M Ft
1 szoba
150 m2
Eladó családi ház
Eladó családi ház

Csongrád

9 M Ft
2 szoba
65 m2
Eladó családi ház
Eladó családi ház

Szentes

58 M Ft
4 szoba
147 m2
Eladó családi ház
Eladó családi ház

Csongrád

47 M Ft
2 szoba
100 m2
Eladó családi ház
Eladó családi ház

Csongrád

59.9 M Ft
5 szoba
160 m2
Eladó családi ház
Eladó családi ház

Csongrád

15 M Ft
2 szoba
40 m2
Eladó családi ház
Eladó családi ház

Szeged

125 M Ft
4 szoba
106 m2
Eladó családi ház
Eladó családi ház

Csongrád

59.9 M Ft
5 szoba
160 m2
Eladó családi ház
Eladó családi ház

Mindszent

49.9 M Ft
8 szoba
280 m2
Eladó családi ház
Eladó családi ház

Csongrád

39.5 M Ft
6 szoba
165 m2
Eladó családi ház
Eladó családi ház

Tiszasziget

58.9 M Ft
5 szoba
111 m2
Eladó családi ház
Eladó családi ház

Csongrád

89 M Ft
5 + 1 szoba
162 m2
Eladó családi ház
Eladó családi ház

Csongrád

31.5 M Ft
2 szoba
140 m2
Eladó családi ház
Eladó családi ház

Csongrád

11.3 M Ft
3 szoba
73 m2
Eladó családi ház
Eladó családi ház

Csongrád

45 M Ft
3 szoba
160 m2
Eladó családi ház
Eladó családi ház

Szeged

259 M Ft
6 szoba
314 m2
Eladó családi ház
Eladó családi ház

Hódmezővásárhely

120 M Ft
7 szoba
236 m2
Eladó családi ház
Eladó családi ház

Szeged

225 M Ft
5 szoba
203 m2

Falusi CSOK ingatlanok

Eladó téglalakás
Eladó téglalakás

Balatonszemes

110.9 M Ft
2 szoba
60 m2
Eladó családi ház
Eladó családi ház

Felsőlajos

100 M Ft
4 szoba
140 m2
Eladó családi ház
Eladó családi ház

Mezőfalva

39 M Ft
3 szoba
77 m2
Eladó családi ház
Eladó családi ház

Batyk

55 M Ft
4 szoba
159 m2
Eladó családi ház
Eladó családi ház

Tápióság

17 M Ft
1 szoba
44 m2
Eladó családi ház
Eladó családi ház

Sellye

43 M Ft
5 szoba
150 m2
Eladó családi ház
Eladó családi ház

Szigetcsép

110 M Ft
3 szoba
137 m2
Eladó családi ház
Eladó családi ház

Hernádnémeti

18.9 M Ft
2 szoba
62 m2