Stay Family Park

Eladó családi ház
Csongrád

+ 17 kép 1/20
75 000 000 Ft75 M Ft 315 126 Ft/m2
6 szoba
238 m2
építés éve:1946

Részletes adatok

Állapot: Átlagos
Telekméret: 934 m2
Fűtés: Gázkazán
Energetikai besorolás: Nem adta meg a hirdető

Az OTP Bank lakáshitel ajánlataFizetett hirdetés

+36 30 309
Dr. Szabados Éva
Szentes OTP Ingatlanpont Iroda Petőfi utca 12.

Érdekel az OTP Bank kedvezményes lakáshitel ajánlata? *

* A kérdésre „Igen” válasz bejelölése esetén, az „Üzenet küldése” gombra kattintva kijelentem, hogy az OTP Bank Nyrt. Adatkezelési tájékoztatójának tartalmát megismertem és tudomásul vettem.

Eladó családi ház leírása

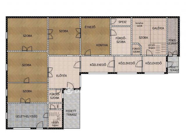
Csongrád-Csanád vármegye szívében, Csongrád központi részén kínáljuk megvételre ezt a 238 m2-es, impozáns, polgári jellegű családi házat 934 m2-es telken, mely kivételes méreteivel és elhelyezkedésével akár befektetésre, akár többgenerációs otthonnak is tökéletes választás. Belépve azonnal érezni lehet a tágasságát és a tradíciót: kétszárnyas ajtók, napfényes parkettás szobák, világos, méretes előszoba és közlekedők fogadják az érkezőt. Két lakrész, bennük öt szoba, négy fürdőszoba, padlásszoba, két konyha, spejz, pince került kialakításra. Így akár több generáció is kényelmesen élhet egymás mellett, vagy külön. A közelmúltban több kiemelten fontos felújítás történt: 8 új ablak, 3 új ajtó, 4 korszerű KLÍMA, NAPELEMEK lettek beépítve. Az ingatlan különleges értéke a saját üzlethelyiség. Ez az egyetlen részlet is elég ahhoz, hogy a ház ne csak otthon legyen, hanem befektetés is, egy jövő, amely szabadon formálható. Tökéletes választás lehet panzió, szépészeti centrum, iroda, rendelő, magán óvoda vagy egyéb vállalkozás kialakítására is. A padlástér mérete és belmagassága igény szerint további bővítésre is alkalmas lehet. Egy műterem, privát lakosztály, belső galéria, a lehetőségek számának csak a fantáziánk szabhat határt. TÖBBFÉLE FŰTÉSI LEHETŐSÉG biztosítja az otthon melegét. Négy klíma, központi fűtés gáz-cirkó kazánnal, konvektor, padlófűtés, és ott a ház szíve, a hangulatos cserépkályha, amely minden téli estét meghittebbé tesz. A kert parkosított, nyugodt, élhető, benne két 35 m2-es garázs, amely akár műhelynek vagy hobbitérnek is alkalmas, és egy különálló 15 m2-es praktikus tároló. Ez a kert nem csupán egy külső tér, menedék, hanem a ház titkos szíve. Ott, ahol egy hosszú nap végén mindenki megtalálja a saját csendjét. KIVÉTELES ADOTTSÁGÚ KÖZPONTI INGATLAN VÉGTELEN POTENCIÁLLAL!!! Ilyen ritkán adódik! Ne hagyja ki ezt a remek lehetőséget! Hívjon bizalommal!
Az OTP Ingatlanpont banki háttérrel, eladóink és vevőink igényeit teljeskörűen ki tudja szolgálni, az eladástól a vevői finanszírozásig. Hitel igénylés esetén akár egyedi kamatkedvezménnyel, jogosultság esetén az állami támogatásokhoz kapcsolódó felvilágosítással, teljes körű pénzügyi tanácsadással és ügyintézéssel állunk ügyfeleink rendelkezésére. Kedvező hitelajánlatok, mint pl. Otthon Start Hitelprogram, BABAVÁRÓ hitel, piaci hitel, és szabad felhasználású hitelek, CSOK plusz, falusi CSOK. A pénzügyi tanácsadás és ügyintézői szolgáltatásunk díjmentes. Irodáink: Csongrád, Fő utca 54. és Szentes, Petőfi utca 12. a buszmegálló felől. VÁLASSZUK KI EGYÜTT AZ ÖNNEK LEGMEGFELELŐBB AJÁNLATOT! BANKI SORBAN ÁLLÁS NÉLKÜL!

Referencia szám: M315889-ZE

Hirdetés feltöltve: 2025. 12. 10.

Az ingatlan elhelyezkedése

Cím: Csongrád

Eladó családi házak a környékről

Eladó családi ház
Eladó családi ház

Csongrád

11.3 M Ft
3 szoba
73 m2
Eladó családi ház
Eladó családi ház

Csongrád

59.9 M Ft
5 szoba
160 m2
Eladó családi ház
Eladó családi ház

Csongrád

45 M Ft
3 szoba
160 m2
Eladó családi ház
Eladó családi ház

Csongrád

14.9 M Ft
2 + 1 szoba
107 m2
Eladó családi ház
Eladó családi ház

Csongrád

16.9 M Ft
3 + 1 szoba
85 m2
Eladó családi ház
Eladó családi ház

Szeged

259 M Ft
6 szoba
314 m2
Eladó családi ház
Eladó családi ház

Csongrád

16.9 M Ft
3 + 1 szoba
85 m2
Eladó családi ház
Eladó családi ház

Szeged

225 M Ft
5 szoba
203 m2
Eladó családi ház
Eladó családi ház

Szeged

149.9 M Ft
10 szoba
310 m2
Eladó családi ház
Eladó családi ház

Szeged

220 M Ft
12 + 2 szoba
760 m2
Eladó családi ház
Eladó családi ház

Baks

27.9 M Ft
2 szoba
82 m2
Eladó családi ház
Eladó családi ház

Csongrád

39.5 M Ft
6 szoba
165 m2
Eladó családi ház
Eladó családi ház

Tiszasziget

58.9 M Ft
5 szoba
111 m2
Eladó családi ház
Eladó családi ház

Csongrád, Táncsics Mihály utca

15.85 M Ft
4 + 2 szoba
132 m2
Eladó családi ház
Eladó családi ház

Csongrád

47 M Ft
2 szoba
100 m2
Eladó családi ház
Eladó családi ház

Csongrád

59.9 M Ft
5 szoba
160 m2
Eladó családi ház
Eladó családi ház

Csongrád

31.5 M Ft
2 szoba
140 m2
Eladó családi ház
Eladó családi ház

Csongrád

31.5 M Ft
2 szoba
140 m2
Eladó családi ház
Eladó családi ház

Szeged

109 M Ft
2 szoba
980 m2
Eladó családi ház
Eladó családi ház

Domaszék

199 M Ft
6 szoba
280 m2
Eladó családi ház
Eladó családi ház

Csongrád

45 M Ft
4 szoba
122 m2
Eladó családi ház
Eladó családi ház

Csongrád, Ady utca 1

18 M Ft
6 szoba
100 m2
Eladó családi ház
Eladó családi ház

Csongrád

11.3 M Ft
3 szoba
73 m2
Eladó családi ház
Eladó családi ház

Szeged

125 M Ft
4 szoba
106 m2

Falusi CSOK ingatlanok

Eladó családi ház
Eladó családi ház

Dunavecse, Móricz Zsigmond utca

34 M Ft
2 szoba
95 m2
Eladó családi ház
Eladó családi ház

Győrság

86.9 M Ft
4 szoba
92 m2
Eladó családi ház
Eladó családi ház

Őriszentpéter

49.9 M Ft
5 + 1 szoba
131 m2
Eladó családi ház
Eladó családi ház

Mikebuda

44.9 M Ft
3 szoba
93 m2
Eladó családi ház
Eladó családi ház

Fertőd

189.9 M Ft
4 szoba
175 m2
Eladó családi ház
Eladó családi ház

Nagysáp

34.9 M Ft
3 szoba
126 m2
Eladó téglalakás
Eladó téglalakás

Balatonszemes

119.9 M Ft
2 szoba
81 m2
Eladó családi ház
Eladó családi ház

Törtel

13.5 M Ft
5 szoba
74 m2