Aerogate Homes

Eladó családi ház
Csongrád

+ 17 kép 1/20
77 000 000 Ft77 M Ft 340 708 Ft/m2
5 + 4 szoba
226 m2
építés éve:1972

Részletes adatok

Állapot: Újszerű
Telekméret: 418 m2
Fűtés: Gázkazán
Közmű: Víz, Gáz, Villany, Csatorna
Energetikai besorolás: Nem adta meg a hirdető
Zenga Premier

Friss hirdetések, amiket nem találsz meg más ingatlankereső portálon.

Fedezd fel elsőként a Zenga Premier címkés eladó ingatlanokat!

További részletek a zenga.hu-n

Az OTP Bank lakáshitel ajánlataFizetett hirdetés

+36 70 402
Vas Edit
referens

Érdekel az OTP Bank kedvezményes lakáshitel ajánlata? *

* A kérdésre „Igen” válasz bejelölése esetén, az „Üzenet küldése” gombra kattintva kijelentem, hogy az OTP Bank Nyrt. Adatkezelési tájékoztatójának tartalmát megismertem és tudomásul vettem.

Eladó családi ház leírása

Teljeskörűen felújított családi ház eladó Csongrádon, a Bökényi városrészben!
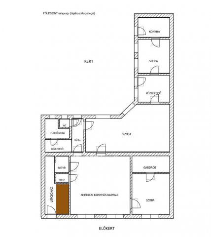
Az önálló helyrajzi számmal rendelkező 2 szintes ház 226,8m2 haszos alapterületű, 3 lakrészre osztható. 2 gázórával, 3 gázkazánnal és víz almérővel rendelkezik. Az ingatlanhoz saját kert tartozik.
Az ingatlanba az utcafrontról közös lépcsőházon keresztül juthatunk. A földszinti rész magában foglal 2 nappalit, 2 konyhát, fürdőszobát és egy nagyméretű hálószobát gardróbbal. Az emeleti külön bejárati részen egy konyha-étkező, 4 hálószoba és 2 fürdőszoba került kialakításra. Ideális lehet több generációs összeköltözők számára.
A lakóház teljeskörű felújításon esett át. Új elektromos, víz vezetékek, aljzat-, homlokzati- és födém szigetelés, korszerű hőszigetelt új nyílászárók.
Az egész házra jellemző az igényes kialakítás, ide tényleg csak költözni kell.
Kiváló ár-érték arány.
Amennyiben felkeltettem érdeklődését, hívjon bizalommal!
Az OTP Ingatlanpont teljes körű ügyintézéssel áll az eladók és vevők rendelkezésére. A kínálatunkból választott ingatlan finanszírozásához kedvezményes hitelkonstrukciót biztosítunk. Az OTP Banknál elérhető Babaváró, falusi CSOK, CSOK Plusz hitel és egyéb kölcsönök intézését díjmentesen vállaljuk. Az adásvételi szerződés megkötéséhez igény szerint ügyvédet biztosítunk. Irodáink Szentes, Petőfi utca 12. a buszmegálló felől, és Csongrád, Fő utca 54. szám alatt várjuk a személyes érdeklődőket. Válasszuk ki együtt az Önnek legmegfelelőbb ajánlatot banki sorban állás nélkül!

Hirdetés feltöltve: 2025. 11. 07. Utoljára módosítva: 2025. 11. 07.

Az ingatlan elhelyezkedése

Cím: Csongrád

Eladó családi házak a környékről

Eladó családi ház
Eladó családi ház

Baks, Kossuth Lajos utca

40 M Ft
3 szoba
300 m2
Eladó családi ház
Eladó családi ház

Szeged, Alsóváros, Szabadság tér

89.9 M Ft
3 + 1 szoba
100 m2
Eladó családi ház
Eladó családi ház

Szeged

125 M Ft
4 szoba
106 m2
Eladó családi ház
Eladó családi ház

Szeged

225 M Ft
5 szoba
203 m2
Eladó családi ház
Eladó családi ház

Szeged

160 M Ft
5 szoba
187 m2
Eladó családi ház
Eladó családi ház

Hódmezővásárhely, Kishomok, Új-Kishomok

60 M Ft
3 szoba
100 m2
Eladó családi ház
Eladó családi ház

Mindszent

49.9 M Ft
8 szoba
280 m2
Eladó családi ház
Eladó családi ház

Csongrád

15 M Ft
2 szoba
40 m2
Eladó családi ház
Eladó családi ház

Makó, Béke utca

115 M Ft
4 szoba
146 m2
Eladó családi ház
Eladó családi ház

Szeged

259 M Ft
6 szoba
314 m2
Eladó családi ház
Eladó családi ház

Szeged

150 M Ft
9 szoba
208 m2
Eladó családi ház
Eladó családi ház

Csongrád

11.3 M Ft
3 szoba
73 m2
Eladó családi ház
Eladó családi ház

Csongrád

31.5 M Ft
2 szoba
140 m2
Eladó családi ház
Eladó családi ház

Makó

87.5 M Ft
6 + 1 szoba
300 m2
Eladó családi ház
Eladó családi ház

Szentes

58 M Ft
4 szoba
147 m2
Eladó családi ház
Eladó családi ház

Csongrád

65 M Ft
5 szoba
220 m2
Eladó családi ház
Eladó családi ház

Csongrád

16.9 M Ft
3 + 1 szoba
85 m2
Eladó családi ház
Eladó családi ház

Csongrád

14.9 M Ft
2 + 1 szoba
107 m2
Eladó családi ház
Eladó családi ház

Csongrád

89 M Ft
5 + 1 szoba
162 m2
Eladó családi ház
Eladó családi ház

Csongrád

5.2 M Ft
2 szoba
46 m2
Eladó családi ház
Eladó családi ház

Csongrád

9 M Ft
2 szoba
65 m2
Eladó családi ház
Eladó családi ház

Csongrád

45 M Ft
3 szoba
160 m2
Eladó családi ház
Eladó családi ház

Csongrád

47 M Ft
2 szoba
100 m2
Eladó családi ház
Eladó családi ház

Domaszék

199 M Ft
6 szoba
280 m2

Falusi CSOK ingatlanok

Eladó téglalakás
Eladó téglalakás

Balatonszemes

202 M Ft
3 szoba
154 m2
Eladó családi ház
Eladó családi ház

Nyáregyháza

67 M Ft
3 szoba
74 m2
Eladó családi ház
Eladó családi ház

Ságvár

59.9 M Ft
3 szoba
87 m2
Eladó családi ház
Eladó családi ház

Onga

65 M Ft
5 szoba
168 m2
Eladó családi ház
Eladó családi ház

Katymár

6.7 M Ft
4 szoba
136 m2
Eladó családi ház
Eladó családi ház

Hegyeshalom

85 M Ft
4 + 1 szoba
123 m2
Eladó családi ház
Eladó családi ház

Szabadbattyán

30 M Ft
4 szoba
75 m2
Eladó családi ház
Eladó családi ház

Balatonberény, Kodály Zotán utca 34

61.9 M Ft
4 + 1 szoba
95 m2