Kedves Felhasználónk! Rendszerfrissítés miatt az oldalunk 2026. február 10-én 0 órától várhatóan 11 óráig nem lesz elérhető. Köszönjük megértésed!
Astora Olive Club House

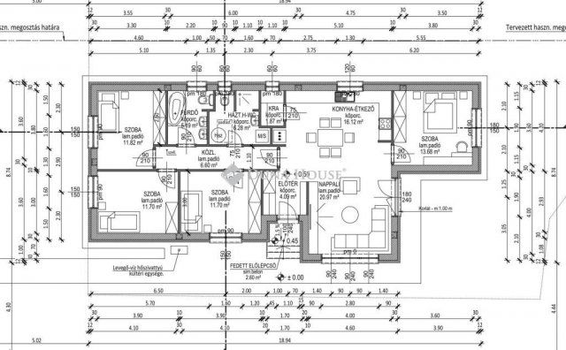
Eladó családi ház
Ceglédbercel, Iskola utca

Figyelem!

Ez az ingatlan a 2019.07.01-től induló falusi CSOK által támogatott településen található

+ 4 kép 1/7
89 990 000 Ft89.99 M Ft 818 091 Ft/m2
5 szoba
110 m2
építés éve:2026

Részletes adatok

Telekméret: 1122 m2
Fűtés: Egyéb
Energetikai besorolás: Nem adta meg a hirdető

Az OTP Bank lakáshitel ajánlataFizetett hirdetés

3676998546
Holló-Vörös Ramóna
Duna House - Kecskemét, Petőfi Sándor utca

Érdekel az OTP Bank kedvezményes lakáshitel ajánlata? *

* A kérdésre „Igen” válasz bejelölése esetén, az „Üzenet küldése” gombra kattintva kijelentem, hogy az OTP Bank Nyrt. Adatkezelési tájékoztatójának tartalmát megismertem és tudomásul vettem.

Eladó családi ház leírása

ÚJ ÉPÍTÉSŰ CSALÁDI HÁZ KULCSRAKÉSZEN Ceglédbercelen, Iskola utcában.

Eladó egy 110m2-es családi ház, nappali + 4 szoba, nagy méretű, 1122 m²-es telken - az ár a telekkel együtt értendő!

Ár: kulcsrakészen, terasz, konyhabútor és lámpatestek nélkül

Kiemelt előnyök:

-ELŐFINANSZÍROZÁS lehetősége csak az elkészült ütemek után kell fizetni.

-ÁRGARANCIA és kötbér vállalás a kivitelezőtől

-Energiahatékony fűtés: BOSCH 3400 prémium levegő-víz hőszivattyú, vizes padlófűtéssel

-3 rétegű prémium nyílászárók, választható belső burkolatok és ajtók

Műszaki tartalom:

Teherhordó falazat: Wienerberger Porotherm 30 N+F

Homlokzati hőszigetelés: 15 cm

Tetőhéjazat választható: Leier Toscana tetőcserép választható színben

Külső nyílászárók: 3 réteg üvegezésű, kívül antracit, belül fehér prémium Gealan S8000 külső nyílászárók, 36 mm-es üvegezéssel + antracit, alumínium redőnyök + antracit műkő párkány

Válaszfal: Wienerberger Porotherm 10 tégla válaszfal

Bejárati ajtó választható: Colorplast standard betéttel

Teraszajtó: Dupla szárnyas

Beltéri ajtó: Borovi Szicília (dekorfóliás) választható színben

Hidegburkolat választható: 6.500 Ft / m2

Melegburkolat választható: 6.000 Ft / m2

Szaniterek választható: (kád, zuhanykabin, csaptelep stb.) 460.000Ft-ig

Gépészet: Bosch 3400 levegő-víz hőszivattyú vizes padlófűtéssel

Az ár kulcsrakész állapotban történő átadással értendő, konyhabútor és lámpatestek nélkül!

Közművek:

Gáz: nincs

Villany: ingatlanban

Csatorna: ingatlanban

Víz: ingatlanban

Hirdetés feltöltve: 2025. 11. 25. Utoljára módosítva: 2026. 01. 31.

5 szobás családi házak ára Ceglédbercelen

Ebből az összehasonlításból megtudhatod, hogyan viszonyul a lakás ára a környékbeli családi házak átlagos árához. Ez nem azt jelenti, hogy ennyivel olcsóbb vagy drágább, mint amennyit a lakás ér, hanem hogy ennyivel tér el a környékbeli átlagtól.

Ennek a m² ára
Ceglédbercel m² ár
818 e Ft
615 e Ft -33%
Ennek az ára
Ceglédbercel átlagár
89.99 M Ft m Ft
98.4 m Ft 9%

Az ingatlan elhelyezkedése

Cím: Ceglédbercel, Iskola utca

Eladó családi házak a környékről

Eladó családi ház
Eladó családi ház

Ceglédbercel

95 M Ft
6 szoba
220 m2
Eladó családi ház
Eladó családi ház

Budakeszi, Makkosmária

100 M Ft
1 szoba
10 m2
Eladó családi ház
Eladó családi ház

Tápiószentmárton

7.9 M Ft
2 + 1 szoba
86 m2
Eladó családi ház
Eladó családi ház

Kerepes

199 M Ft
6 szoba
360 m2
Eladó családi ház
Eladó családi ház

Tápiószele

18.9 M Ft
4 szoba
68 m2
Eladó családi ház
Eladó családi ház

Kerepes

81.99 M Ft
5 szoba
102 m2
Eladó családi ház
Eladó családi ház

Budakeszi, Budakeszi kertváros

229 M Ft
10 szoba
450 m2
Eladó családi ház
Eladó családi ház

Nagykáta

130 M Ft
3 szoba
203 m2
Eladó családi ház
Eladó családi ház

Ceglédbercel

104.99 M Ft
3 szoba
122 m2
Eladó családi ház
Eladó családi ház

Zebegény

69.9 M Ft
6 szoba
245 m2
Eladó családi ház
Eladó családi ház

Ceglédbercel

104.9 M Ft
3 szoba
150 m2
Eladó családi ház
Eladó családi ház

Ceglédbercel

104.99 M Ft
3 szoba
122 m2
Eladó családi ház
Eladó családi ház

Ceglédbercel

104.99 M Ft
3 szoba
122 m2
Eladó családi ház
Eladó családi ház

Ceglédbercel

67 M Ft
3 szoba
173 m2
Eladó családi ház
Eladó családi ház

Ceglédbercel

104.9 M Ft
3 szoba
150 m2
Eladó családi ház
Eladó családi ház

Ceglédbercel

77.9 M Ft
4 szoba
90 m2
Eladó családi ház
Eladó családi ház

Érd

164.9 M Ft
5 szoba
192 m2
Eladó családi ház
Eladó családi ház

Budakeszi

130 M Ft
5 szoba
30 m2
Eladó családi ház
Eladó családi ház

Tápiószele

45 M Ft
6 szoba
360 m2
Eladó családi ház
Eladó családi ház

Ceglédbercel

104.9 M Ft
3 szoba
150 m2
Eladó családi ház
Eladó családi ház

Ceglédbercel

95 M Ft
6 szoba
220 m2
Eladó családi ház
Eladó családi ház

Budaörs

400 M Ft
12 szoba
583 m2
Eladó családi ház
Eladó családi ház

Ceglédbercel

59.9 M Ft
4 szoba
110 m2
Eladó családi ház
Eladó családi ház

Pécel, Reményik Sándor utca

296 M Ft
6 szoba
396 m2

Falusi CSOK ingatlanok

Eladó családi ház
Eladó családi ház

Dunaszekcső

12.5 M Ft
3 szoba
110 m2
Eladó családi ház
Eladó családi ház

Gyöngyöshalász

59 M Ft
4 + 3 szoba
214 m2
Eladó családi ház
Eladó családi ház

Véménd

46.9 M Ft
5 szoba
195 m2
Eladó családi ház
Eladó családi ház

Lippó

10 M Ft
2 + 3 szoba
95 m2
Eladó családi ház
Eladó családi ház

Csátalja, Táncsics Mihály utca 2

28 M Ft
3 szoba
100 m2
Eladó családi ház
Eladó családi ház

Ónod, Szent István u. 9

9.24 M Ft
1 + 1 szoba
155 m2
Eladó családi ház
Eladó családi ház

Iváncsa

33.9 M Ft
2 + 1 szoba
72 m2
Eladó családi ház
Eladó családi ház

Marcaltő

26 M Ft
3 szoba
103 m2

Falusi CSOK ingatlanok

Eladó családi ház
Eladó családi ház

Tarján

29.9 M Ft
3 szoba
120 m2
Eladó családi ház
Eladó családi ház

Bár

89.5 M Ft
4 + 1 szoba
172 m2
Eladó családi ház
Eladó családi ház

Ivánc

13.5 M Ft
2 szoba
64 m2
Eladó családi ház
Eladó családi ház

Szederkény

107.9 M Ft
6 szoba
224 m2
Eladó családi ház
Eladó családi ház

Herend

128 M Ft
3 + 2 szoba
246 m2
Eladó panellakás
Eladó panellakás

Pétfürdő

49.9 M Ft
3 szoba
71 m2
Eladó családi ház
Eladó családi ház

Adásztevel

8.9 M Ft
2 szoba
63 m2
Eladó családi ház
Eladó családi ház

Bugac

170 M Ft
187 m2