BAM Living

Eladó családi ház
Cegléd

+ 17 kép 1/20
74 900 000 Ft74.9 M Ft 489 542 Ft/m2
4 + 1 szoba
153 m2
építés éve:1986

Részletes adatok

Állapot: Átlagos
Telekméret: 516 m2
Fűtés: Gázkazán
Energetikai besorolás: Nem adta meg a hirdető

Az OTP Bank lakáshitel ajánlataFizetett hirdetés

+36 20 460
Virág Eszter
OTP Ingatlanpont Kft Kecskemét

Érdekel az OTP Bank kedvezményes lakáshitel ajánlata? *

* A kérdésre „Igen” válasz bejelölése esetén, az „Üzenet küldése” gombra kattintva kijelentem, hogy az OTP Bank Nyrt. Adatkezelési tájékoztatójának tartalmát megismertem és tudomásul vettem.

Eladó családi ház leírása

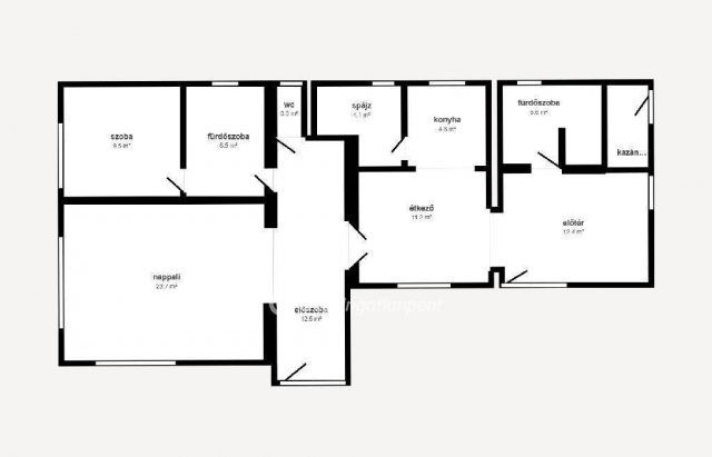
Cegléd központjának közelében, csendes utcában eladó egy kétszintes, 153 m2-es 4+1 félszobás családi ház. A telek mérete 516 m2. Az ingatlan a képeken látható átlagos állapotban van, rövid időn belül költözhető. Az földszinten található: -előszoba, -konyha+étkező, kamra, fürdőszoba, két db szoba
Az emeleti helyiségek: -előszoba, -WC helyiség, 2 szoba. Az udvar hátsó részében található továbbá egy melléképület. Kétgenerációs családi ház, emiatt a rezsiszámla nagyon kedvező. További információkért és részletekért keressen bizalommal, várom hívását akár hétvégén is.
OTP Banki hátterünknek köszönhetően finanszírozási igényekben (pl. Otthon Start Hitelprogram, Babaváró, Falusi CSOK, CSOK Plusz, Lakáshitel, Személyi kölcsön stb.), illetve biztosítások tekintetében is díjmentesen, soron kívüli ügyintézéssel segítem ügyfeleim!
Referencia szám: 305044

Referencia szám: M305044-ZE

Hirdetés feltöltve: 2025. 12. 23. Utoljára módosítva: 2026. 01. 16.

5 szobás családi házak ára Cegléden

Ebből az összehasonlításból megtudhatod, hogyan viszonyul a lakás ára a környékbeli családi házak átlagos árához. Ez nem azt jelenti, hogy ennyivel olcsóbb vagy drágább, mint amennyit a lakás ér, hanem hogy ennyivel tér el a környékbeli átlagtól.

Ennek a m² ára
Cegléd m² ár
490 e Ft
494 e Ft 1%
Ennek az ára
Cegléd átlagár
74.9 M Ft m Ft
84.3 m Ft 11%

Az ingatlan elhelyezkedése

Cím: Cegléd

Eladó családi házak a környékről

Eladó családi ház
Eladó családi ház

Cegléd

39 M Ft
1350 m²
300 m2
Eladó családi ház
Eladó családi ház

Cegléd

75 M Ft
5 szoba
210 m2
Eladó családi ház
Eladó családi ház

Remeteszőlős

399.9 M Ft
5 + 2 szoba
260 m2
Eladó családi ház
Eladó családi ház

Gyál, Gyál út

169.9 M Ft
2 szoba
90 m2
Eladó családi ház
Eladó családi ház

Pécel, Reményik Sándor utca

296 M Ft
6 szoba
396 m2
Eladó családi ház
Eladó családi ház

Tápiószele

32.9 M Ft
4 szoba
200 m2
Eladó családi ház
Eladó családi ház

Cegléd, Nyugati kertváros, Szél utca

108 M Ft
6 szoba
150 m2
Eladó családi ház
Eladó családi ház

Dunakeszi

250 M Ft
4 szoba
180 m2
Eladó családi ház
Eladó családi ház

Budakeszi

130 M Ft
5 szoba
30 m2
Eladó családi ház
Eladó családi ház

Tápiószőlős

34.9 M Ft
5 szoba
210 m2
Eladó családi ház
Eladó családi ház

Cegléd

59.4 M Ft
4 szoba
109 m2
Eladó családi ház
Eladó családi ház

Cegléd

85 M Ft
6 szoba
190 m2
Eladó családi ház
Eladó családi ház

Budaörs, Bányász utca

385 M Ft
6 szoba
300 m2
Eladó családi ház
Eladó családi ház

Cegléd

18 M Ft
3 szoba
65 m2
Eladó családi ház
Eladó családi ház

Zebegény

69.9 M Ft
6 szoba
245 m2
Eladó családi ház
Eladó családi ház

Budaörs, Városközpont utca

119.5 M Ft
5 + 1 szoba
140 m2
Eladó családi ház
Eladó családi ház

Tápiószele

11.9 M Ft
3 szoba
62 m2
Eladó családi ház
Eladó családi ház

Cegléd

75 M Ft
5 szoba
210 m2
Eladó családi ház
Eladó családi ház

Cegléd

54.5 M Ft
5 szoba
100 m2
Eladó családi ház
Eladó családi ház

Leányfalu

237 M Ft
9 szoba
800 m2
Eladó családi ház
Eladó családi ház

Cegléd

75 M Ft
5 szoba
250 m2
Eladó családi ház
Eladó családi ház

Tápiószele

37.9 M Ft
4 szoba
141 m2
Eladó családi ház
Eladó családi ház

Veresegyház, Salamon utca

119.9 M Ft
4 szoba
160 m2
Eladó családi ház
Eladó családi ház

Cegléd

85 M Ft
6 szoba
190 m2

Falusi CSOK ingatlanok

Eladó családi ház
Eladó családi ház

Dombrád

8 M Ft
2 szoba
85 m2
Eladó családi ház
Eladó családi ház

Szabadbattyán

67.5 M Ft
5 szoba
180 m2
Eladó családi ház
Eladó családi ház

Szigetcsép

47 M Ft
3 szoba
87 m2
Eladó családi ház
Eladó családi ház

Madaras

13.5 M Ft
3 szoba
210 m2
Eladó családi ház
Eladó családi ház

Tab

14.9 M Ft
3 szoba
110 m2
Eladó családi ház
Eladó családi ház

Nagybörzsöny

79.9 M Ft
4 szoba
149 m2
Eladó családi ház
Eladó családi ház

Vásárosdombó

14.99 M Ft
2 szoba
69 m2
Eladó családi ház
Eladó családi ház

Kenyeri

21.8 M Ft
2 szoba
75 m2