Stay Family Park

Eladó családi ház
Cegléd

+ 17 kép 1/20
52 500 000 Ft52.5 M Ft 709 459 Ft/m2
2 + 1 szoba
74 m2
építés éve:1960

Részletes adatok

Állapot: Átlagos
Telekméret: 406 m2
Fűtés: Gázkonvektor
Közmű: Víz, Gáz, Villany, Csatorna
Energetikai besorolás: Nem adta meg a hirdető

Az OTP Bank lakáshitel ajánlataFizetett hirdetés

+36 70 358
Jancsovics-Andó Bernadett
referens

Érdekel az OTP Bank kedvezményes lakáshitel ajánlata? *

* A kérdésre „Igen” válasz bejelölése esetén, az „Üzenet küldése” gombra kattintva kijelentem, hogy az OTP Bank Nyrt. Adatkezelési tájékoztatójának tartalmát megismertem és tudomásul vettem.

Eladó családi ház leírása

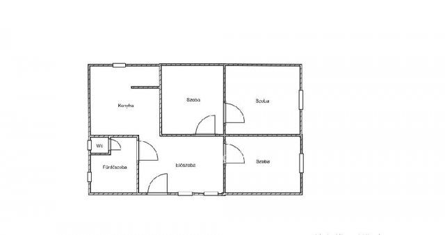
Cegléden, csendes környezetben eladó egy 74 négyzetméteres családi ház, 406 m2-es telken! Az ingatlan vegyes falazatú, elrendezése praktikus. Megtalálható benne előszoba, konyha, fürdőszoba külön wc-vel, nappali és két szoba. A fűtést gázkonvektor biztosítja és hűtő-fűtő klima is beszerelésre került, a maximális komfort érdekében. Az ingatlan minden közművel ellátott. A környék nyugodt és csendes, mégis minden elérhető távolságra van: óvoda, iskola, kórház és bevásárlási lehetőségek. Az Otp Ingatlanpont teljes körű ügyintézéssel áll az eladók és a vevők rendelkezésére! Az adásvételi szerződéshez megbízható ügyvédi közreműködést biztosítunk.

Hirdetés feltöltve: 2025. 10. 23. Utoljára módosítva: 2025. 12. 10.

3 szobás családi házak ára Cegléden

Ebből az összehasonlításból megtudhatod, hogyan viszonyul a lakás ára a környékbeli családi házak átlagos árához. Ez nem azt jelenti, hogy ennyivel olcsóbb vagy drágább, mint amennyit a lakás ér, hanem hogy ennyivel tér el a környékbeli átlagtól.

Ennek a m² ára
Cegléd m² ár
709 e Ft
608 e Ft -17%
Ennek az ára
Cegléd átlagár
52.5 M Ft m Ft
56.6 m Ft 7%

Az ingatlan elhelyezkedése

Cím: Cegléd

Eladó családi házak a környékről

Eladó családi ház
Eladó családi ház

Budaörs, Bányász utca

385 M Ft
6 szoba
300 m2
Eladó családi ház
Eladó családi ház

Cegléd

23.5 M Ft
2 szoba
73 m2
Eladó családi ház
Eladó családi ház

Tápiógyörgye

19.9 M Ft
3 szoba
65 m2
Eladó családi ház
Eladó családi ház

Budakeszi, Budakeszi kertváros

229 M Ft
10 szoba
450 m2
Eladó családi ház
Eladó családi ház

Cegléd

62.314 M Ft
5 szoba
121 m2
Eladó családi ház
Eladó családi ház

Cegléd

9.9 M Ft
2 szoba
47 m2
Eladó családi ház
Eladó családi ház

Tápiószentmárton

7.9 M Ft
2 + 1 szoba
86 m2
Eladó családi ház
Eladó családi ház

Cegléd

51.52 M Ft
5 szoba
92 m2
Eladó családi ház
Eladó családi ház

Remeteszőlős

399.9 M Ft
5 + 2 szoba
260 m2
Eladó családi ház
Eladó családi ház

Cegléd

85 M Ft
6 szoba
190 m2
Eladó családi ház
Eladó családi ház

Érd

164.9 M Ft
5 szoba
192 m2
Eladó családi ház
Eladó családi ház

Cegléd

75 M Ft
5 szoba
250 m2
Eladó családi ház
Eladó családi ház

Cegléd

39 M Ft
1350 m²
300 m2
Eladó családi ház
Eladó családi ház

Dunakeszi

250 M Ft
4 szoba
180 m2
Eladó családi ház
Eladó családi ház

Budaörs, Odvshegy utca

268.9 M Ft
5 szoba
235 m2
Eladó családi ház
Eladó családi ház

Budakeszi, Budakeszi kertváros

140 M Ft
2 szoba
55 m2
Eladó családi ház
Eladó családi ház

Cegléd, Nyugati kertváros, Szél utca

108 M Ft
6 szoba
150 m2
Eladó családi ház
Eladó családi ház

Dunavarsány

49.9 M Ft
3 + 2 szoba
130 m2
Eladó családi ház
Eladó családi ház

Tahitótfalu

188 M Ft
7 szoba
280 m2
Eladó családi ház
Eladó családi ház

Tápiószele

37.9 M Ft
4 szoba
141 m2
Eladó családi ház
Eladó családi ház

Cegléd

52.08 M Ft
4 szoba
93 m2
Eladó családi ház
Eladó családi ház

Cegléd

62.83 M Ft
4 szoba
122 m2
Eladó családi ház
Eladó családi ház

Leányfalu

237 M Ft
9 szoba
800 m2
Eladó családi ház
Eladó családi ház

Cegléd

89.095 M Ft
5 szoba
173 m2

Falusi CSOK ingatlanok

Eladó családi ház
Eladó családi ház

Törtel

32 M Ft
2 szoba
67 m2
Eladó családi ház
Eladó családi ház

Homokmégy

15.9 M Ft
2 + 1 szoba
78 m2
Eladó panellakás
Eladó panellakás

Pétfürdő

49.9 M Ft
3 szoba
71 m2
Eladó családi ház
Eladó családi ház

Szederkény

107.9 M Ft
6 szoba
224 m2
Eladó családi ház
Eladó családi ház

Patak

26.9 M Ft
4 szoba
160 m2
Eladó téglalakás
Eladó téglalakás

Balatonszemes

119.9 M Ft
2 szoba
81 m2
Eladó téglalakás
Eladó téglalakás

Balatonszemes

86.8 M Ft
2 szoba
58 m2
Eladó családi ház
Eladó családi ház

Ádánd

229 M Ft
5 szoba
200 m2