City Pearl

Eladó családi ház
Bugac

Figyelem!

Ez az ingatlan a 2019.07.01-től induló falusi CSOK által támogatott településen található

+ 10 kép 1/13
84 900 000 Ft84.9 M Ft 922 826 Ft/m2
3 szoba
92 m²
építés éve:1990

Részletes adatok

Telekméret: 30000 m2
Fűtés: Egyéb
Közmű: Víz, Villany
Komfort: Összkomfortos
Energetikai besorolás: Nem adta meg a hirdető

Az OTP Bank lakáshitel ajánlataFizetett hirdetés

+36 20 970
Százszorszép Ingatlan
referens

Érdekel az OTP Bank kedvezményes lakáshitel ajánlata? *

* A kérdésre „Igen” válasz bejelölése esetén, az „Üzenet küldése” gombra kattintva kijelentem, hogy az OTP Bank Nyrt. Adatkezelési tájékoztatójának tartalmát megismertem és tudomásul vettem.

Eladó családi ház leírása

Bugacon 92 nm, 3 szobás, kétszintes TANYA 3 ha földterülettel - kiváló adottságokkal, sokrétű hasznosítási lehetőséggel eladó!

A településtől  mindössze 400 m-re, csendes nyugodt környezetben helyezkedik el. 
-masszív téglaépítés
-nyeregtető beépíthető tetőtérrel
-kétrétegű fa nyílászárók
-vegyestüzelésű fűtési rendszer részben padlófűtéssel
-hútő-fűtő klíma
-alápincézett kialakítás

Gazadsági és műszaki adottságok kiemekedőek:
-6 db fúrt kút
-4 db villanyóra
-220 és 380V ipari áram
-92 nm szénatároló
-280 nm istálló
Az ingatlan kiválóan alkalmas állattartásra, gazdálkodásra,telephelynek, lovardának, akár többgenerációs családi otthonnak, vagy csak simán a vidék, puszta hangulatát élvező élet kialakítására.

A falu közelsége biztosítja a kényelmet, mig a környezet nyugalma a vidéki élet minden előnyét kínálja.

Kecskemét / autópálya 32 km.

Forduljon hozzá bizalommal, tekintsük meg együtt!
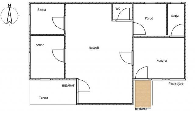
( alaprajz tájékoztató jellegű)

Hirdetés feltöltve: 2026. 03. 07. Utoljára módosítva: 2026. 05. 12.

Az ingatlan elhelyezkedése

Cím: Bugac

Eladó családi házak a környékről

Kecskemét
Eladó családi ház

Kecskemét

300 M Ft
19 szoba
1100 m²
Kecskemét
Eladó családi ház

Kecskemét

224.9 M Ft
5 szoba
330 m²
Kecskemét
Eladó családi ház

Kecskemét

9.9 M Ft
2 szoba
30 m²
Bugac
Eladó családi ház

Bugac

27 M Ft
50 m²
Kisszállás
Eladó családi ház

Kisszállás

129 M Ft
1 szoba
2800 m²
Dunapataj
Eladó családi ház

Dunapataj

15 M Ft
5 szoba
150 m²
Bugac, Rákóczi utca
Eladó családi ház

Bugac

46.2 M Ft
4 szoba
87 m²
Bácsalmás
Eladó családi ház

Bácsalmás

25.5 M Ft
2 + 1 szoba
90 m²
Bugac
Eladó családi ház

Bugac

95 M Ft
4 szoba
122 m²
Bugac, Rákóczi utca
Eladó családi ház

Bugac

63.8 M Ft
5 szoba
120 m²
Bugac
Eladó családi ház

Bugac

15.5 M Ft
3 szoba
73 m²
Bugac
Eladó családi ház

Bugac

59.9 M Ft
4 szoba
107 m²
Bugac
Eladó családi ház

Bugac

17 M Ft
3 szoba
80 m²
Kecskemét, Alsószéktó, Alsószéktó 138
Eladó családi ház

Kecskemét

55 M Ft
5 szoba
91 m²
Bugac
Eladó családi ház

Bugac

9.8 M Ft
4 szoba
67 m²
Bugac, Rákóczi utca
Eladó családi ház

Bugac

51 M Ft
5 szoba
96 m²
Bugac
Eladó családi ház

Bugac

17.9 M Ft
3 szoba
50 m²
Kecskemét
Eladó családi ház

Kecskemét

6.9 M Ft
1 szoba
30 m²
Bugac
Eladó családi ház

Bugac

21 M Ft
2 szoba
98 m²
Bugac
Eladó családi ház

Bugac

44.9 M Ft
3 szoba
88 m²
Kecskemét
Eladó családi ház

Kecskemét

39.9 M Ft
2 szoba
110 m²
Bugac
Eladó családi ház

Bugac

34.4 M Ft
3 szoba
70 m²
Kecskemét, Alsószéktó, Alsószéktó 138
Eladó családi ház

Kecskemét

65 M Ft
5 szoba
98 m²
Bugac
Eladó családi ház

Bugac

44.99 M Ft
2 szoba
253 m²

Falusi CSOK ingatlanok

Balatonkenese
Eladó családi ház

Balatonkenese

165.7 M Ft
2 + 4 szoba
179 m²
Ceglédbercel
Eladó családi ház

Ceglédbercel

67 M Ft
3 szoba
97 m²
Somlóvásárhely
Eladó családi ház

Somlóvásárhely

35.9 M Ft
1 szoba
78 m²
Hegyeshalom, Margaréta utca 12
Eladó téglalakás

Hegyeshalom

50.09 M Ft
2 szoba
43 m²
Bogács
Eladó családi ház

Bogács

64.95 M Ft
7 szoba
125 m²
Hosszúpereszteg
Eladó családi ház

Hosszúpereszteg

27.9 M Ft
4 szoba
0 m²
Badacsonytördemic
Eladó családi ház

Badacsonytördemic

90 M Ft
3 szoba
130 m²
Kánya
Eladó családi ház

Kánya

5.5 M Ft
3 szoba
70 m²

Falusi CSOK ingatlanok

Nagyhegyes
Eladó családi ház

Nagyhegyes

54.99 M Ft
2 szoba
79 m²
Bag
Eladó ikerház

Bag

93 M Ft
3 szoba
68 m²
Bag
Eladó családi ház

Bag

16.9 M Ft
6 szoba
160 m²
Galgahévíz
Eladó családi ház

Galgahévíz

43 M Ft
3 szoba
115 m²
Maráza
Eladó családi ház

Maráza

29.9 M Ft
3 szoba
96 m²
Hegyeshalom, Margaréta utca 12
Eladó téglalakás

Hegyeshalom

50.09 M Ft
2 szoba
43 m²
Ceglédbercel
Eladó családi ház

Ceglédbercel

67 M Ft
3 szoba
97 m²
Bőny
Eladó családi ház

Bőny

36 M Ft
1 + 1 szoba
64 m²