City Pearl

Eladó családi ház
Budapest, XXIII. kerület

+ 17 kép 1/20
114 900 000 Ft114.9 M Ft 890 698 Ft/m2
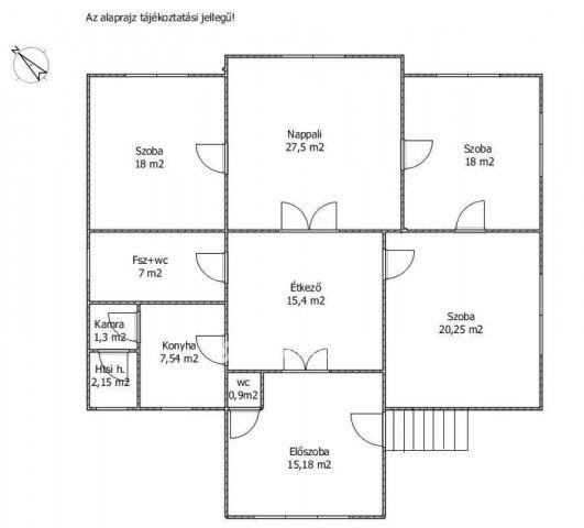
4 szoba
129 m2
építés éve:1961

Részletes adatok

Telekméret: 681 m2
Fűtés: Gázkazán
Energetikai besorolás: Nem adta meg a hirdető

Az OTP Bank lakáshitel ajánlataFizetett hirdetés

+36 70 744
Grünwald Norbert
Szigetszentmiklós OTP Ip

Érdekel az OTP Bank kedvezményes lakáshitel ajánlata? *

* A kérdésre „Igen” válasz bejelölése esetén, az „Üzenet küldése” gombra kattintva kijelentem, hogy az OTP Bank Nyrt. Adatkezelési tájékoztatójának tartalmát megismertem és tudomásul vettem.

Eladó családi ház leírása

Eladó Budapest, XXIII. Soroksár-Apostolhegy kedvelt kertvárosias részén, egy nettó 130 nm hasznos alapterületű, önálló hrsz-ú, tehermentes családi ház 681 nm-es telken! Az ingatlant tervező-építőmérnök testvérpár építette saját részre 1961-ben. A ház száraz, 1,9m belmagasságú pincével és nagy, beépíthető tetőtérrel rendelkezik! Statikailag és kialakításában is nagyon stabil, a lakótér térrendezése nagypolgári jellegű, tágas, világos terekkel jellemezhető. Akár több generáció együttélésére is alkalmas! A kertben rendezett melléképületek is - műhely, egy régi kis lakás..- , valamint autóbeálló is találhatóak. Ingatlanjogilag rendezett!
Lokációja szintén nagyon jó: a közelben Aldi, Lidl, Spar, ill. néhány percnyi sétára a 135, 966, 650,653,654,655-ös számú buszjáratok és a H6-os Hév megállói érhetők el. Szintén sétatávolságra a Ráckevei (Soroksári)-Dunaág, a Horgász part, ahol remek sétákat lehet tenni közvetlenül a Duna parton. Ha hirdetésünk felkeltette figyelmét, hívjon bizalommal a hét bármely napján!
Az OTP Ingatlanpont teljes körű ügyintézéssel áll az eladók és a vevők rendelkezésére! A kínálatunkból választott ingatlan finanszírozásához kedvezményes hitelkonstrukciókat kínálunk. Az adásvételi szerződés megkötéséhez igény szerint megbízható ügyvédi közreműködést biztosítunk, és segítséget nyújtunk az adásvételhez kapcsolódó ügyek intézéséhez.

Hirdetés feltöltve: 2026. 01. 18. Utoljára módosítva: 2026. 01. 18.

4 szobás családi házak ára Budapesten

Ebből az összehasonlításból megtudhatod, hogyan viszonyul a lakás ára a környékbeli családi házak átlagos árához. Ez nem azt jelenti, hogy ennyivel olcsóbb vagy drágább, mint amennyit a lakás ér, hanem hogy ennyivel tér el a környékbeli átlagtól.

Ennek a m² ára
XXIII. kerület m² ár
Budapest m² ár
891 e Ft
840 e Ft -6%
1079 e Ft 17%
Ennek az ára
XXIII. kerület átlagár
Budapest átlagár
114.9 M Ft m Ft
145 m Ft 21%
154.1 m Ft 25%

Az ingatlan elhelyezkedése

Cím: Budapest, XXIII. kerület

Eladó ingatlanok a környékről

Eladó családi ház
Eladó családi ház

XXIII. kerület

129 M Ft
4 szoba
220 m2
Eladó családi ház
Eladó családi ház

XX. kerület, Pacsirtatelep

74.9 M Ft
4 + 2 szoba
106 m2
Eladó téglalakás
Eladó téglalakás

VII. kerület, Belső Erzsébetváros, Kertész utca 31

119.9 M Ft
3 szoba
74 m2
Eladó családi ház
Eladó családi ház

XXIII. kerület, Soroksár

45 M Ft
3 szoba
77 m2
Eladó családi ház
Eladó családi ház

XXIII. kerület

69.9 M Ft
3 szoba
100 m2
Eladó téglalakás
Eladó téglalakás

I. kerület, Budavár, Bérc utca

419 M Ft
3 szoba
93 m2
Eladó téglalakás
Eladó téglalakás

VI. kerület

89.9 M Ft
2 szoba
72 m2
Eladó családi ház
Eladó családi ház

XVIII. kerület, Újpéteritelep

119.9 M Ft
3 szoba
113 m2
Eladó téglalakás
Eladó téglalakás

VI. kerület

48.9 M Ft
1 szoba
22 m2
Eladó családi ház
Eladó családi ház

XXIII. kerület

125.7 M Ft
7 + 1 szoba
232 m2
Eladó családi ház
Eladó családi ház

XVIII. kerület, Újpéteritelep

124.9 M Ft
3 szoba
100 m2
Eladó családi ház
Eladó családi ház

XXIII. kerület, Soroksár

86.9 M Ft
4 szoba
150 m2
Eladó téglalakás
Eladó téglalakás

I. kerület, Krisztinaváros

69 M Ft
1 szoba
35 m2
Eladó téglalakás
Eladó téglalakás

XIX. kerület, Kispest, Hungária út

72 M Ft
2 szoba
45 m2
Eladó családi ház
Eladó családi ház

XX. kerület, Pacsirtatelep

33.9 M Ft
2 szoba
38 m2
Eladó családi ház
Eladó családi ház

XXIII. kerület

143 M Ft
5 szoba
124 m2
Eladó téglalakás
Eladó téglalakás

XIII. kerület, Újlipótváros, Gogol utca

49.9 M Ft
1 szoba
25 m2
Eladó családi ház
Eladó családi ház

XXIII. kerület

115 M Ft
250 m2
Eladó ikerház
Eladó ikerház

XXII. kerület

54.99 M Ft
1 szoba
30 m2
Eladó családi ház
Eladó családi ház

XXIII. kerület, Soroksár

359 M Ft
6 szoba
311 m2
Eladó családi ház
Eladó családi ház

XVII. kerület

219 M Ft
6 szoba
240 m2
Eladó családi ház
Eladó családi ház

XXIII. kerület

143 M Ft
5 szoba
124 m2
Eladó téglalakás
Eladó téglalakás

V. kerület, Lipótváros, Veres Pálné utca

369 M Ft
3 szoba
103 m2
Eladó téglalakás
Eladó téglalakás

XIV. kerület, Nagyzugló, Róna utca

80 M Ft
2 szoba
49 m2

Falusi CSOK ingatlanok

Eladó családi ház
Eladó családi ház

Gyöngyöshalász

59 M Ft
4 + 3 szoba
214 m2
Eladó családi ház
Eladó családi ház

Gáborján

5.5 M Ft
2 szoba
68 m2
Eladó családi ház
Eladó családi ház

Lepsény

120 M Ft
4 szoba
200 m2
Eladó családi ház
Eladó családi ház

Kincsesbánya

42.99 M Ft
2 + 1 szoba
50 m2
Eladó családi ház
Eladó családi ház

Sellye

14.9 M Ft
4 szoba
135 m2
Eladó családi ház
Eladó családi ház

Szólád

99.9 M Ft
6 + 1 szoba
245 m2
Eladó családi ház
Eladó családi ház

Újszilvás

23 M Ft
3 + 1 szoba
100 m2
Eladó családi ház
Eladó családi ház

Kislippó

16 M Ft
3 szoba
100 m2