Metrodom

Eladó családi ház
Budapest, XX. kerület, Erzsébetfalva

+ 16 kép 1/19
89 000 000 Ft89 M Ft 425 837 Ft/m2
6 szoba
209 m²
építés éve:1983

Részletes adatok

Állapot: Felújítandó
Telekméret: 291 m2
Fűtés: Gázkazán
Parkolás: Kocsibeálló
Energetikai besorolás: Nem adta meg a hirdető

Az OTP Bank lakáshitel ajánlataFizetett hirdetés

+36 30 964
Mudraninec Éva
referens

Érdekel az OTP Bank kedvezményes lakáshitel ajánlata? *

* A kérdésre „Igen” válasz bejelölése esetén, az „Üzenet küldése” gombra kattintva kijelentem, hogy az OTP Bank Nyrt. Adatkezelési tájékoztatójának tartalmát megismertem és tudomásul vettem.

Eladó családi ház leírása

Befektetők, kivitelezők, figyelmébe ajánljuk!

Pesterzsébet legjobb kertvárosi részén kínálunk megvételre egy nettó 209 nm alapterületű, kétszintes, téglából épült, önálló családi házat 291 nm-es telken. Az ingatlan teljes mértékben felújítandó!

A ház földszinti része a 60-as években épült, a felsőszintet a 80-as évek végén építették rá, jelenleg 2 külön bejáratú lakásra van osztva.

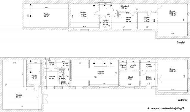
Beosztása:
földszint:
- előtér 5,8 nm,
- étkező 7 nm,
-konyha 3 nm,
-kamra 1,4 nm,
-fürdő 3,8 nm,
-szoba 22,6 nm,
-nappali 29,4 nm,
-fürdő 4,1 nm,
-előtér 1,5 nm,
- kamra 1,7 nm,
- konyha 5,8 nm,
- tároló 7,2 nm,
- garázs 36 nm,
-----------------------
129,4 nm.

Emelet:
-szoba 18,3 nm,
-szoba 4,9 nm,
-szoba 5,4 nm,
-közlekedő 12,3 nm,
-fürdő 1,5 nm,
-szoba 12,3 nm,
-helyiség 25 nm,
-------------------------
79,7 nm.

Amivel segítjük az Ön ingatlanvásárlását:
- ingyenes hitelügyintézés,
- jogi háttér,
- földhivatali ügyintézés,
- energetikai tanúsítvány,
- a vevő számára az ingatlanközvetítés ingyenes.

Irodánk 30 éves szakmai tapasztalattal áll ügyfelei rendelkezésére!

Várom szíves megkeresését! ...TOVÁBBI, TÖBBEZRES INGATLAN KÍNÁLAT: www.gdn-ingatlan.hu - GDN azonosító: 392613

Hirdetés feltöltve: 2026. 02. 13. Utoljára módosítva: 2026. 02. 14.

Az ingatlan elhelyezkedése

Cím: Budapest, XX. kerület, Erzsébetfalva

Eladó ingatlanok a környékről

XX. kerület
Eladó családi ház

Budapest, XX. kerület

79.9 M Ft
6 szoba
300 m²
XI. kerület, Madárhegy
Eladó téglalakás

Budapest, XI. kerület

299 M Ft
4 + 1 szoba
137 m²
XX. kerület, Gubacsipuszta
Eladó családi ház

Budapest, XX. kerület

120 M Ft
5 szoba
180 m²
XX. kerület
Eladó családi ház

Budapest, XX. kerület

89.9 M Ft
3 szoba
64 m²
XX. kerület
Eladó családi ház

Budapest, XX. kerület

178 M Ft
6 szoba
260 m²
XX. kerület, Mártírok útja közeli utca
Eladó családi ház

Budapest, XX. kerület

150 M Ft
6 szoba
160 m²
XX. kerület
Eladó családi ház

Budapest, XX. kerület

190 M Ft
5 szoba
480 m²
XX. kerület, Gubacsipuszta
Eladó családi ház

Budapest, XX. kerület

76 M Ft
2 + 1 szoba
80 m²
I. kerület, Budavár, Váralja
Eladó téglalakás

Budapest, I. kerület

249 M Ft
3 szoba
110 m²
XI. kerület, Madárhegy
Eladó téglalakás

Budapest, XI. kerület

319 M Ft
4 szoba
126 m²
IX. kerület, Ferencváros, Vaskapu utca 51-53
Eladó téglalakás

Budapest, IX. kerület

84.105 M Ft
2 szoba
43 m²
XI. kerület, Madárhegy
Eladó téglalakás

Budapest, XI. kerület

319 M Ft
4 + 1 szoba
156 m²
IX. kerület, Ferencváros, Vaskapu utca 51-53
Eladó téglalakás

Budapest, IX. kerület

99.645 M Ft
2 szoba
44 m²
XX. kerület
Eladó családi ház

Budapest, XX. kerület

178 M Ft
6 szoba
260 m²
III. kerület, Mocsárosdűlő, Kerék utca
Eladó panellakás

Budapest, III. kerület

87.9 M Ft
3 szoba
68 m²
IX. kerület, Ferencváros, Vaskapu utca 51-53
Eladó téglalakás

Budapest, IX. kerület

87.465 M Ft
2 szoba
38 m²
XI. kerület, Madárhegy
Eladó téglalakás

Budapest, XI. kerület

108.9 M Ft
2 szoba
50 m²
IX. kerület, Ferencváros, Vaskapu utca 51-53
Eladó téglalakás

Budapest, IX. kerület

76.125 M Ft
2 szoba
38 m²
IX. kerület, Ferencváros, Vaskapu utca 51-53
Eladó téglalakás

Budapest, IX. kerület

75.81 M Ft
1 szoba
36 m²
IX. kerület, Ferencváros, Vaskapu utca 51-53
Eladó téglalakás

Budapest, IX. kerület

107.73 M Ft
3 szoba
59 m²
XX. kerület
Eladó családi ház

Budapest, XX. kerület

84.9 M Ft
8 szoba
220 m²
XX. kerület
Eladó családi ház

Budapest, XX. kerület

32 M Ft
4 szoba
135 m²
XVIII. kerület
Eladó ikerház

Budapest, XVIII. kerület

120 M Ft
4 szoba
131 m²
IX. kerület, Ferencváros, Vaskapu utca 51-53
Eladó téglalakás

Budapest, IX. kerület

111.72 M Ft
3 szoba
59 m²

Falusi CSOK ingatlanok

Úri
Eladó családi ház

Úri

149 M Ft
5 szoba
279 m²
Berzence, Máryás utca
Eladó családi ház

Berzence

27.9 M Ft
3 szoba
94 m²
Belvárdgyula
Eladó családi ház

Belvárdgyula

27.9 M Ft
4 szoba
120 m²
Kocsér
Eladó családi ház

Kocsér

58.59 M Ft
4 szoba
92 m²
Zengővárkony
Eladó családi ház

Zengővárkony

28 M Ft
3 szoba
87 m²
Nagyszentjános
Eladó téglalakás

Nagyszentjános

74.9 M Ft
4 szoba
117 m²
Szigetcsép
Eladó családi ház

Szigetcsép

110 M Ft
3 szoba
137 m²
Győrság
Eladó családi ház

Győrság

89.9 M Ft
4 szoba
92 m²