NapForrás 20 - Buda

Eladó családi ház
Budapest, XVIII. kerület

+ 17 kép 1/20
114 900 000 Ft114.9 M Ft 809 155 Ft/m2
4 + 2 szoba
142 m²
építés éve:1970

Részletes adatok

Állapot: Átlagos
Telekméret: 560 m2
Fűtés: Gázkazán
Energetikai besorolás: Nem adta meg a hirdető

Az OTP Bank lakáshitel ajánlataFizetett hirdetés

+36 70 393
Rácz Ildikó Éva
OTP - Vágujhelyi Zsuzsanna

Érdekel az OTP Bank kedvezményes lakáshitel ajánlata? *

* A kérdésre „Igen” válasz bejelölése esetén, az „Üzenet küldése” gombra kattintva kijelentem, hogy az OTP Bank Nyrt. Adatkezelési tájékoztatójának tartalmát megismertem és tudomásul vettem.

Eladó családi ház leírása

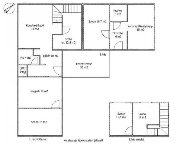
Befektetők, családosok, összeköltözők figyelem! Eladó két generáció számára is alkalmas, nettó 142 nm-es családi ház Budapest, XVIII. kerületében,Bókay telepen, a Zila kávéház közelében! A ház részben már felújított (villanyvezetékek, nyílászárók, tető, csatorna), két külön bejáratú önálló lakrészből áll, egy belső kétszintes nettó 100nm-es, és egy nettó 42 nm-es lakásból - külön-külön villanyórával, közös víz-, és gázórával. A nagyobb lakásban nappali és 3 +1/2 szoba, előtér, konyha-étkező, fürdőszoba, wc található, míg a kisebben a nappali-konyha-étkező mellett 1 hálószoba, tágas előtér, fürdőszoba és wc. Nyáron, a forró napsütésben egy kb. 20 nm-es fedett terasz ad árnyékot. Otthon Start Programra alkalmas, ingatlanjogilag rendezett, hitelezhető. Önálló hrsz-ú, 560 nm-es telek tartozik hozzá. Nagyszerű megoldás lehet összeköltözők vagy nagycsaládosok számára, de befektetési lehetőségnek is kiváló!
Lokáció szempontjából szintén kiváló: 2-3 perces sétára az 50-es villamos, a 93,93A, 236, 236A, 193E, 217, 182,182A, 183, 184, 950, A,577-es buszok megállói, melyekkel akár Kőbánya- Kispest vagy a Határ úti metrómegálló rövid idő alatt megközelíthető. A közelben - sétatávolságra - iskola, ovi, gimnázium, vásárlási és sportolási lehetőségek, önkormányzat, piac, orvosi rendelő...minden, ami komfortossá tehetia hétköznapokat!
Ügyfeleink számára teljes körű ügyintézéssel állunk rendelkezésre! Kínálatunkból választott ingatlan finanszírozásához kedvezményes hitelmegoldásokat kínálunk, illetve az adásvételi szerződés megkötéséhez megbízható ügyvédi közreműködést is tudunk biztosítani!
Ha hirdetésünk felkeltette érdeklődését, kérem hívjon bizalommal a hét bármely napján!
We can recommend the assistance of a reliable (English speaking) lawyer, if so requested and can also offer help at arranging the administrative matters related to the acquisition. If you wish to send an English language notification of your interest, please send a message thereof indicating your phone number (and/or e-mail address) so we can contact you without language difficulties.

Referencia szám: M320685

Hirdetés feltöltve: 2026. 04. 29.

Az ingatlan elhelyezkedése

Cím: Budapest, XVIII. kerület

Eladó ingatlanok a környékről

XVIII. kerület
Eladó családi ház

Budapest, XVIII. kerület

145.8 M Ft
4 szoba
130 m²
VII. kerület
Eladó téglalakás

Budapest, VII. kerület

79.9 M Ft
3 szoba
72 m²
XVIII. kerület
Eladó családi ház

Budapest, XVIII. kerület

260 M Ft
8 + 1 szoba
448 m²
XIX. kerület
Eladó panellakás

Budapest, XIX. kerület

63.5 M Ft
3 szoba
52 m²
XVIII. kerület
Eladó családi ház

Budapest, XVIII. kerület

49.9 M Ft
2 szoba
40 m²
XVIII. kerület
Eladó családi ház

Budapest, XVIII. kerület

330 M Ft
7 szoba
360 m²
XVIII. kerület, Szemeretelep, Szurmay tábornok utca
Eladó családi ház

Budapest, XVIII. kerület

160 M Ft
5 szoba
220 m²
XVIII. kerület
Eladó családi ház

Budapest, XVIII. kerület

330 M Ft
7 szoba
360 m²
XVIII. kerület
Eladó családi ház

Budapest, XVIII. kerület

168 M Ft
5 szoba
184 m²
VII. kerület
Eladó téglalakás

Budapest, VII. kerület

137 M Ft
3 szoba
71 m²
XVIII. kerület
Eladó családi ház

Budapest, XVIII. kerület

106 M Ft
3 szoba
81 m²
XVIII. kerület, Nagybani piac közelében, kertvárosi részen
Eladó családi ház

Budapest, XVIII. kerület

260 M Ft
8 + 2 szoba
600 m²
XVII. kerület
Eladó panellakás

Budapest, XVII. kerület

69.9 M Ft
4 szoba
73 m²
XVI. kerület
Eladó családi ház

Budapest, XVI. kerület

33.9 M Ft
2 szoba
45 m²
XIV. kerület
Eladó családi ház

Budapest, XIV. kerület

225 M Ft
7 szoba
229 m²
III. kerület
Eladó ikerház

Budapest, III. kerület

319 M Ft
5 szoba
175 m²
XVIII. kerület
Eladó családi ház

Budapest, XVIII. kerület

140 M Ft
6 szoba
193 m²
IX. kerület
Eladó téglalakás

Budapest, IX. kerület

155 M Ft
1 szoba
73 m²
XVIII. kerület
Eladó családi ház

Budapest, XVIII. kerület

105 M Ft
6 szoba
180 m²
XX. kerület
Eladó családi ház

Budapest, XX. kerület

99.9 M Ft
4 szoba
96 m²
III. kerület
Eladó téglalakás

Budapest, III. kerület

319 M Ft
5 szoba
175 m²
XVIII. kerület
Eladó családi ház

Budapest, XVIII. kerület

260 M Ft
8 + 1 szoba
448 m²
XVIII. kerület, Szent Imre kertváros, Üllői út
Eladó családi ház

Budapest, XVIII. kerület

170 M Ft
3 szoba
284 m²
XVIII. kerület, Ganztelep, Sió utca
Eladó családi ház

Budapest, XVIII. kerület

160 M Ft
3 + 1 szoba
156 m²

Falusi CSOK ingatlanok

Balatonkeresztúr, Kanizsai utca
Eladó ikerház

Balatonkeresztúr

32.9 M Ft
3 szoba
30 m²
Jászkarajenő
Eladó családi ház

Jászkarajenő

17.5 M Ft
2 + 1 szoba
47 m²
Balatonszárszó
Eladó családi ház

Balatonszárszó

30 M Ft
3 szoba
45 m²
Győrság
Eladó családi ház

Győrság

89.9 M Ft
4 szoba
92 m²
Tök
Eladó családi ház

Tök

20 M Ft
2 szoba
47 m²
Apaj
Eladó családi ház

Apaj

52.9 M Ft
3 szoba
70 m²
Fonyód
Eladó téglalakás

Fonyód

175 M Ft
3 szoba
79 m²
Öreglak
Eladó családi ház

Öreglak

110 M Ft
8 szoba
205 m²