Astora Art House

Eladó családi ház
Budapest, XVIII. kerület

+ 15 kép 1/18
145 000 000 Ft145 M Ft 1 306 306 Ft/m2
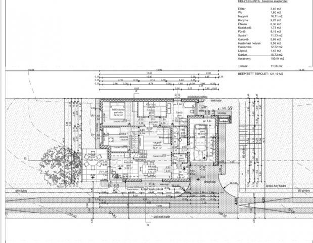
4 szoba
111 m²
építés éve:2025

Részletes adatok

Telekméret: 400 m2
Fűtés: Egyéb
Parkolás: Garázs
Energetikai besorolás: Nem adta meg a hirdető

Az OTP Bank lakáshitel ajánlataFizetett hirdetés

+36 70 603
Gombár Renáta
referens

Érdekel az OTP Bank kedvezményes lakáshitel ajánlata? *

* A kérdésre „Igen” válasz bejelölése esetén, az „Üzenet küldése” gombra kattintva kijelentem, hogy az OTP Bank Nyrt. Adatkezelési tájékoztatójának tartalmát megismertem és tudomásul vettem.

Eladó családi ház leírása

Almáskert Villa Park – Új építésű luxus családi házak a XVIII. kerület egyik legkedveltebb részén!

Fedezze fel Budapest egyik legnyugodtabb, családbarát övezetét az Almáskertben, ahol három különálló, új építésű, modern családi ház várja leendő tulajdonosait!

Mit kínálunk?
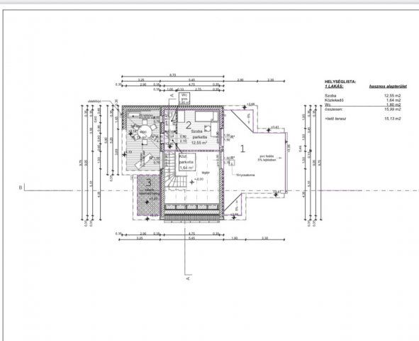
Önálló, belső kétszintes házak (földszint + emelet)
Nappali + 3 hálószoba
3 mellékhelyiség, kádas-zuhanyzós, dupla mosdós fürdőszoba
Tágas gardrób, tetőterasz, saját parkosított kert
Fűtött garázs elektromos, szekcionált kapuval

Minőség kompromisszumok nélkül!
Az otthonok a legkorszerűbb anyagokból készülnek:
25 cm-es extra hőszigetelő Ytong falazat
10 cm grafitos dryvit szigetelés
3 rétegű antracit nyílászárók, elektromos alumínium redőnyök
20 cm födémszigetelés, időtálló cserépfedés

Energiahatékony és jövőálló otthon:
Hőszivattyús fűtés és hűtés (H-tarifa)
Fan-coil és padlófűtés minden helyiségben
Előkészített napelemrendszer és elektromos autótöltő

Rugalmas kialakítás:
A burkolatok, szaniterek, beltéri ajtók egyedi igény szerint választhatók
A fürdőszobákat bútorozva adjuk át
Egyedi módosítások még kivitelezhetők az építkezés előrehaladásától függően

Ár: 145.000.000 Ft – kulcsrakész állapotban!

Babaváró, CSOK és kamattámogatott hitel igénybe vehető
Ügyvédi költséget az építtető/beruházó átvállalja
Építkezés látogatható előre egyeztetett időpontban

Ne maradjon le róla!
Hívjon bizalommal a hét bármely napján, és ismerje meg álmai otthonát személyesen! ...TOVÁBBI, TÖBBEZRES INGATLAN KÍNÁLAT: www.gdn-ingatlan.hu - GDN azonosító: 393955

Hirdetés feltöltve: 2026. 03. 22. Utoljára módosítva: 2026. 05. 10.

4 szobás családi házak ára Budapesten

Ebből az összehasonlításból megtudhatod, hogyan viszonyul a lakás ára a környékbeli családi házak átlagos árához. Ez nem azt jelenti, hogy ennyivel olcsóbb vagy drágább, mint amennyit a lakás ér, hanem hogy ennyivel tér el a környékbeli átlagtól.

Ennek a m² ára
XVIII. kerület m² ár
Budapest m² ár
1306 e Ft
979 e Ft -33%
1069 e Ft -22%
Ennek az ára
XVIII. kerület átlagár
Budapest átlagár
145 M Ft m Ft
138.7 m Ft -5%
148.4 m Ft 2%

Az ingatlan elhelyezkedése

Cím: Budapest, XVIII. kerület

Eladó ingatlanok a környékről

VII. kerület, Belső Erzsébetváros, Kis Diófa utca
Eladó téglalakás

Budapest, VII. kerület

108.5 M Ft
2 szoba
85 m²
IX. kerület, Ferencváros, Ráday utca
Eladó téglalakás

Budapest, IX. kerület

165 M Ft
3 szoba
78 m²
XVIII. kerület
Eladó családi ház

Budapest, XVIII. kerület

106 M Ft
3 szoba
81 m²
XVIII. kerület
Eladó családi ház

Budapest, XVIII. kerület

149.9 M Ft
8 + 1 szoba
270 m²
XIII. kerület, Angyalföld, Tahi utca
Eladó téglalakás

Budapest, XIII. kerület

59.6 M Ft
1 szoba
38 m²
VI. kerület, Külső Terézváros, Városligeti fasor
Eladó téglalakás

Budapest, VI. kerület

308 M Ft
3 szoba
190 m²
XVIII. kerület
Eladó családi ház

Budapest, XVIII. kerület

260 M Ft
8 + 1 szoba
448 m²
III. kerület
Eladó családi ház

Budapest, III. kerület

375 M Ft
3 szoba
165 m²
XVII. kerület
Eladó panellakás

Budapest, XVII. kerület

50 M Ft
3 szoba
58 m²
XVIII. kerület, Szemeretelep, Szurmay tábornok utca
Eladó családi ház

Budapest, XVIII. kerület

160 M Ft
5 szoba
220 m²
XIX. kerület
Eladó téglalakás

Budapest, XIX. kerület

33.9 M Ft
1 szoba
25 m²
XVIII. kerület
Eladó családi ház

Budapest, XVIII. kerület

249 M Ft
4 szoba
164 m²
VII. kerület
Eladó téglalakás

Budapest, VII. kerület

69.5 M Ft
1 + 1 szoba
45 m²
XVIII. kerület
Eladó családi ház

Budapest, XVIII. kerület

260 M Ft
8 + 1 szoba
448 m²
VI. kerület, Külső Terézváros, Városligeti fasor
Eladó téglalakás

Budapest, VI. kerület

185 M Ft
2 szoba
95 m²
XVIII. kerület
Eladó családi ház

Budapest, XVIII. kerület

260 M Ft
8 + 1 szoba
448 m²
XIII. kerület, Angyalföld, Csata utca
Eladó garázs

Budapest, XIII. kerület

10 M Ft
15 m²
XVIII. kerület
Eladó családi ház

Budapest, XVIII. kerület

179.9 M Ft
7 szoba
348 m²
XVIII. kerület
Eladó családi ház

Budapest, XVIII. kerület

220 M Ft
4 szoba
200 m²
XVIII. kerület, Szent Imre kertváros, Üllői út
Eladó családi ház

Budapest, XVIII. kerület

170 M Ft
3 szoba
284 m²
XIII. kerület
Eladó téglalakás

Budapest, XIII. kerület

142 M Ft
4 szoba
126 m²
VI. kerület, Külső Terézváros, Városligeti fasor
Eladó téglalakás

Budapest, VI. kerület

185 M Ft
2 szoba
95 m²
XVIII. kerület, Nagybani piac közelében, kertvárosi részen
Eladó családi ház

Budapest, XVIII. kerület

260 M Ft
8 + 2 szoba
600 m²
XVIII. kerület
Eladó családi ház

Budapest, XVIII. kerület

145.8 M Ft
4 szoba
130 m²

Falusi CSOK ingatlanok

Győrság
Eladó családi ház

Győrság

89.9 M Ft
4 szoba
92 m²
Zalaszentiván
Eladó ikerház

Zalaszentiván

54.99 M Ft
5 szoba
160 m²
Balatonszemes
Eladó téglalakás

Balatonszemes

125.2 M Ft
2 szoba
50 m²
Kunadacs
Eladó családi ház

Kunadacs

80 M Ft
4 szoba
148 m²
Sződ
Eladó családi ház

Sződ

116.9 M Ft
4 + 1 szoba
102 m²
Berzence
Eladó családi ház

Berzence

40 M Ft
5 szoba
233 m²
Márianosztra
Eladó családi ház

Márianosztra

38 M Ft
4 szoba
75 m²
Himesháza
Eladó családi ház

Himesháza

30 M Ft
3 szoba
92 m²