Oasis Residence

Eladó családi ház
Budapest, XVIII. kerület

+ 14 kép 1/17
78 000 000 Ft78 M Ft 709 091 Ft/m2
3 + 1 szoba
110 m2
építés éve:1980

Részletes adatok

Állapot: Átlagos
Telekméret: 412 m2
Fűtés: Elektromos
Energetikai besorolás: Nem adta meg a hirdető

Az OTP Bank lakáshitel ajánlataFizetett hirdetés

+36 70 744
Grünwald Norbert
Szigetszentmiklós OTP Ip

Érdekel az OTP Bank kedvezményes lakáshitel ajánlata? *

* A kérdésre „Igen” válasz bejelölése esetén, az „Üzenet küldése” gombra kattintva kijelentem, hogy az OTP Bank Nyrt. Adatkezelési tájékoztatójának tartalmát megismertem és tudomásul vettem.

Eladó családi ház leírása

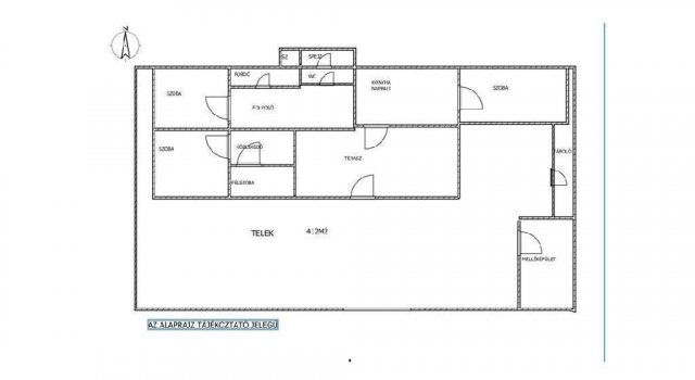
Eladó Budapest XVIII. kerületének kedvelt, családbarát részén, Pestszentlőrincen egy 110 m2-es, részlegesen felújított családi ház 412 m2-es telekkel.
Az ingatlan tágas és praktikus elrendezésű: három szoba + fél szoba, amerikai konyhás nappali, fürdőszoba, külön WC és spejz található benne. A 16 m2-es fedett terasz tökéletes helyszín közös családi pihenésekhez és kerti beszélgetésekhez.
A ház komfortjáról három hűtő-fűtő klíma gondoskodik, illetve H-tarifás besorolása miatt kedvező rezsiköltséget biztosít. A telken nyílt kocsibeálló áll rendelkezésre, így az autóval való beállás megoldott.
Elhelyezkedése kifejezetten előnyös: rövid sétával több buszjárat is elérhető, amelyek négy irányba biztosítanak gyors közlekedést , Pesterzsébet, Rákoskeresztúr, Kőbánya-Kispest és Ferihegy,Vecsés felé. A környék csendes, mégis központi, teljes infrastruktúrával: óvodák, iskolák, boltok, szolgáltatások könnyen megközelíthetők.
Ideális választás azoknak a családoknak, akik kényelmes, jó elhelyezkedésű, jól alakítható otthont keresnek Pestszentlőrinc szívében.

Hirdetés feltöltve: 2026. 01. 18.

4 szobás családi házak ára Budapesten

Ebből az összehasonlításból megtudhatod, hogyan viszonyul a lakás ára a környékbeli családi házak átlagos árához. Ez nem azt jelenti, hogy ennyivel olcsóbb vagy drágább, mint amennyit a lakás ér, hanem hogy ennyivel tér el a környékbeli átlagtól.

Ennek a m² ára
XVIII. kerület m² ár
Budapest m² ár
709 e Ft
987 e Ft 28%
1079 e Ft 34%
Ennek az ára
XVIII. kerület átlagár
Budapest átlagár
78 M Ft m Ft
137.1 m Ft 43%
154.1 m Ft 49%

Az ingatlan elhelyezkedése

Cím: Budapest, XVIII. kerület

Eladó ingatlanok a környékről

Eladó garázs
Eladó garázs

VIII. kerület

11.7 M Ft
18 m2
Eladó családi ház
Eladó családi ház

XVIII. kerület

105 M Ft
6 szoba
180 m2
Eladó panellakás
Eladó panellakás

XV. kerület

86.7 M Ft
3 szoba
70 m2
Eladó családi ház
Eladó családi ház

XVIII. kerület

140 M Ft
6 szoba
193 m2
Eladó téglalakás
Eladó téglalakás

II. kerület, Hársakalja, Apostol utca

135 M Ft
3 szoba
66 m2
Eladó téglalakás
Eladó téglalakás

XIV. kerület

85 M Ft
1 + 1 szoba
46 m2
Eladó családi ház
Eladó családi ház

XVIII. kerület, Szent Imre kertváros, Üllői út

170 M Ft
3 szoba
284 m2
Eladó családi ház
Eladó családi ház

XVIII. kerület, Szent Imre kertváros

105 M Ft
6 szoba
180 m2
Eladó családi ház
Eladó családi ház

XVIII. kerület, Bókay utca

489 M Ft
4 szoba
295 m2
Eladó panellakás
Eladó panellakás

XVII. kerület

72.9 M Ft
3 szoba
74 m2
Eladó családi ház
Eladó családi ház

XV. kerület

85 M Ft
3 szoba
80 m2
Eladó családi ház
Eladó családi ház

XVIII. kerület, Ganztelep

160 M Ft
3 + 1 szoba
156 m2
Eladó családi ház
Eladó családi ház

XVIII. kerület, Újpéteritelep, Ady Endre utca

125.99 M Ft
4 szoba
130 m2
Eladó téglalakás
Eladó téglalakás

XI. kerület

98.9 M Ft
2 szoba
40 m2
Eladó téglalakás
Eladó téglalakás

XI. kerület

104.9 M Ft
3 szoba
70 m2
Eladó családi ház
Eladó családi ház

XVIII. kerület, Lónyaytelep

215.84 M Ft
8 szoba
304 m2
Eladó családi ház
Eladó családi ház

XVIII. kerület

162 M Ft
5 szoba
195 m2
Eladó családi ház
Eladó családi ház

XVIII. kerület

289.9 M Ft
11 szoba
300 m2
Eladó panellakás
Eladó panellakás

XV. kerület

82.9 M Ft
3 szoba
66 m2
Eladó téglalakás
Eladó téglalakás

IX. kerület

57 M Ft
1 szoba
33 m2
Eladó panellakás
Eladó panellakás

XI. kerület

83 M Ft
3 szoba
65 m2
Eladó téglalakás
Eladó téglalakás

XV. kerület

86.9 M Ft
3 szoba
58 m2
Eladó családi ház
Eladó családi ház

XVIII. kerület

79.99 M Ft
4 szoba
88 m2
Eladó családi ház
Eladó családi ház

XVIII. kerület

220 M Ft
4 szoba
200 m2

Falusi CSOK ingatlanok

Eladó családi ház
Eladó családi ház

Parád

25 M Ft
2 szoba
80 m2
Eladó családi ház
Eladó családi ház

Kölked

42 M Ft
3 szoba
100 m2
Eladó családi ház
Eladó családi ház

Pánd

31.5 M Ft
4 szoba
74 m2
Eladó családi ház
Eladó családi ház

Véménd

81.9 M Ft
3 szoba
150 m2
Eladó családi ház
Eladó családi ház

Szarvaskend

26.9 M Ft
2 szoba
83 m2
Eladó családi ház
Eladó családi ház

Cece

23.5 M Ft
3 szoba
66 m2
Eladó családi ház
Eladó családi ház

Alattyán

45 M Ft
4 + 1 szoba
186 m2
Eladó családi ház
Eladó családi ház

Balatonfenyves

430 M Ft
4 szoba
274 m2