Eladó családi ház
Budapest, XVIII. kerület
Részletes adatok
Az OTP Bank lakáshitel ajánlataFizetett hirdetés
Induló törlesztőrészlet
101 262 Ft /hóTörlesztőrészlet a 13. hónaptól
129 106 Ft /hóInduló törlesztőrészlet
135 016 Ft /hóTörlesztőrészlet a 13. hónaptól
172 142 Ft /hóA tájékoztatás nem teljes körű és nem minősül ajánlattételnek. Az OTP Évnyerő Lakáshitelei 1 éves türelmi idős kölcsönök, amellyel az első 12 hónapban alacsonyabb a havi törlesztőrészlet. A tőke törlesztését a 13. hónaptól kell megkezdeni.
Eladó családi ház leírása
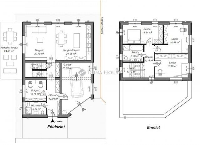
18. kerületben két szintes új építésű családi ház eladó!Budapest 18. kerület Kossuth Ferenc Telep városrészén, csendes mellékutcában, 162 nm-es új építésű családi ház hőszivattyús fűtéssel, 616 nm-es saját telken.A családi otthon magas műszaki tartalommal épül, várható befejezés: 2026. I. NEGYEDÉV.Megbízható építtető, a környéken is több referencia házzal rendelkezik.A földszinti szintre belépve tágas közlekedőből jutunk a 45 nm-es amerikai konyha nappaliba, mely a családi élet színtere lehet, ezenkívül, dolgozószoba, háztartási helyiség, tároló kerül kialakításra.A nappaliból nyílik majd egy 24 nm es fedett terasz.A földszinti szint 96 nm az emelti szint 64 nm-es.A garázs 25 nm-es alapterülettel fog rendelkezni.Az emeletre kényelmes lépcsőn jutunk fel, három teljes értékű szoba, fürdő szoba+wc várja új lakóit. A szobák méretei: 14,8 nm, 14,8 nm. 15,1 nm.Az építkezés olyan fázisban van, hogy még egyedi megoldások is kivitelezhetőek.Főbb műszaki tartalom:- 30 cm-es Porotherm főfalak és 10 cm-es Porotherm válaszfalak- 10 cm-es homlokzati szigetelés,- a padló 12 cm lépésálló hő és hangszigetelő anyagból és terv szerinti vastagságú aljzatbeton rétegből áll,- hőszivattyús fűtés, akár padlófűtéssel, akár radiátoros fűtéssel,- a hálószobában és a nappaliban klíma előkészítés készül,- a tető szigetelt lapostető, felár ellenében sátortető kérhető,- a leendő épület elektromos kiszolgálása, 3x16 A ellátással történik,- külső nyílászárók: 6 légkamrás ablakok, kívül belül fehér színű, műanyagból készülnek,- felár ellenében redőny ész szúnyogháló beépíthető.- beltéri ajtók 50.000 Ft / db árig- belső felületképzések: vakolat felületek kétszeri gletteléssel, és 2 réteg fehér falfestékkel kezelve kerülnek kialakításra, színes festés lehetséges,- hideg- és melegburkolatok 5.000 Ft / nm árig.Komoly érdeklődés esetén a MŰSZAKI TARTALOM MEGTEKINTHETŐ!Az infrastruktúra kivételes, séta távolságra bölcsőde, óvoda, általános iskola, játszótér, orvosi rendelő, posta, bevásárlási lehetőségek, pékségek.Közelben buszmegálló, gépkocsival az M0, M4, M5 pár perc alatt elérhető.A Duna House teljes kínálatával kapcsolatban forduljon hozzám bizalommal.Hitel ügyintézés garantáltan a legjobb feltételekkel és a leggyorsabban.Eladás és vétel teljes körű ügyintézése, ingyenes tanácsadás, értékbecslés, megbízható ügyvédi háttér biztosítása!Várom megtisztelő hívását a hét minden napján.
Hirdetés feltöltve: 2025. 10. 22.
5 szobás családi házak ára Budapesten
Ebből az összehasonlításból megtudhatod, hogyan viszonyul a lakás ára a környékbeli családi házak átlagos árához. Ez nem azt jelenti, hogy ennyivel olcsóbb vagy drágább, mint amennyit a lakás ér, hanem hogy ennyivel tér el a környékbeli átlagtól.
Az ingatlan elhelyezkedése
Cím: Budapest, XVIII. kerület
Eladó ingatlanok a környékről
