Eladó családi ház
Budapest, XVIII. kerület

+ 9 kép 1/12
165 000 000 Ft165 M Ft 1 018 519 Ft/m2
5 szoba
162 m2
építés éve:2025

Részletes adatok

Telekméret: 616 m2
Fűtés: Egyéb
Energetikai besorolás: Nem adta meg a hirdető

Az OTP Bank lakáshitel ajánlataFizetett hirdetés

3629619082
Fekete Zsófia Anna
Új-Lak Bázis Kft

Érdekel az OTP Bank kedvezményes lakáshitel ajánlata? *

* A kérdésre „Igen” válasz bejelölése esetén, az „Üzenet küldése” gombra kattintva kijelentem, hogy az OTP Bank Nyrt. Adatkezelési tájékoztatójának tartalmát megismertem és tudomásul vettem.

Eladó családi ház leírása

18. kerületben két szintes új építésű családi ház eladó!

Budapest 18. kerület Kossuth Ferenc Telep városrészén, csendes mellékutcában, 162 nm-es új építésű családi ház hőszivattyús fűtéssel, 616 nm-es saját telken.

A családi otthon magas műszaki tartalommal épül, várható befejezés: 2026. I. NEGYEDÉV.

Megbízható építtető, a környéken is több referencia házzal rendelkezik.

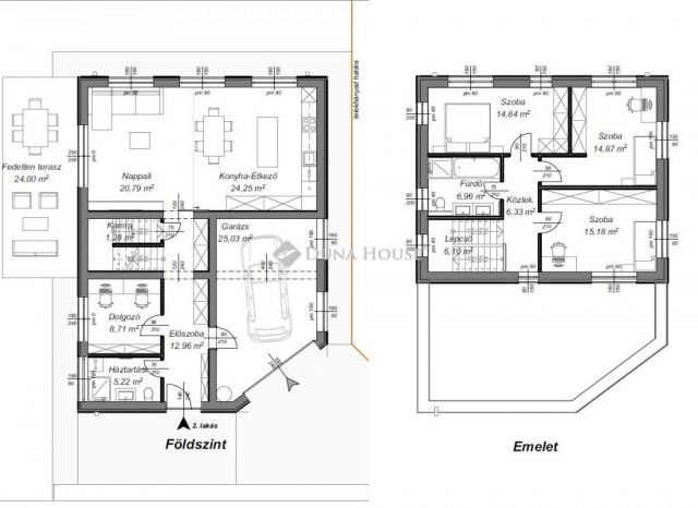
A földszinti szintre belépve tágas közlekedőből jutunk a 45 nm-es amerikai konyha nappaliba, mely a családi élet színtere lehet, ezenkívül, dolgozószoba, háztartási helyiség, tároló kerül kialakításra.

A nappaliból nyílik majd egy 24 nm es fedett terasz.

A földszinti szint 96 nm az emelti szint 64 nm-es.

A garázs 25 nm-es alapterülettel fog rendelkezni.

Az emeletre kényelmes lépcsőn jutunk fel, három teljes értékű szoba, fürdő szoba+wc várja új lakóit. A szobák méretei: 14,8 nm, 14,8 nm. 15,1 nm.

Az építkezés olyan fázisban van, hogy még egyedi megoldások is kivitelezhetőek.

Főbb műszaki tartalom:

- 30 cm-es Porotherm főfalak és 10 cm-es Porotherm válaszfalak

- 10 cm-es homlokzati szigetelés,

- a padló 12 cm lépésálló hő és hangszigetelő anyagból és terv szerinti vastagságú aljzatbeton rétegből áll,

- hőszivattyús fűtés, akár padlófűtéssel, akár radiátoros fűtéssel,

- a hálószobában és a nappaliban klíma előkészítés készül,

- a tető szigetelt lapostető, felár ellenében sátortető kérhető,

- a leendő épület elektromos kiszolgálása, 3x16 A ellátással történik,

- külső nyílászárók: 6 légkamrás ablakok, kívül belül fehér színű, műanyagból készülnek,

- felár ellenében redőny ész szúnyogháló beépíthető.

- beltéri ajtók 50.000 Ft / db árig

- belső felületképzések: vakolat felületek kétszeri gletteléssel, és 2 réteg fehér falfestékkel kezelve kerülnek kialakításra, színes festés lehetséges,

- hideg- és melegburkolatok 5.000 Ft / nm árig.

Komoly érdeklődés esetén a MŰSZAKI TARTALOM MEGTEKINTHETŐ!

Az infrastruktúra kivételes, séta távolságra bölcsőde, óvoda, általános iskola, játszótér, orvosi rendelő, posta, bevásárlási lehetőségek, pékségek.

Közelben buszmegálló, gépkocsival az M0, M4, M5 pár perc alatt elérhető.

A Duna House teljes kínálatával kapcsolatban forduljon hozzám bizalommal.

Hitel ügyintézés garantáltan a legjobb feltételekkel és a leggyorsabban.

Eladás és vétel teljes körű ügyintézése, ingyenes tanácsadás, értékbecslés, megbízható ügyvédi háttér biztosítása!

Várom megtisztelő hívását a hét minden napján.

Referencia szám: HZ026669

Hirdetés feltöltve: 2025. 10. 19.

5 szobás családi házak ára Budapesten

Ebből az összehasonlításból megtudhatod, hogyan viszonyul a lakás ára a környékbeli családi házak átlagos árához. Ez nem azt jelenti, hogy ennyivel olcsóbb vagy drágább, mint amennyit a lakás ér, hanem hogy ennyivel tér el a környékbeli átlagtól.

Ennek a m² ára
XVIII. kerület m² ár
Budapest m² ár
1019 e Ft
849 e Ft -20%
973 e Ft -5%
Ennek az ára
XVIII. kerület átlagár
Budapest átlagár
165 M Ft m Ft
173.4 m Ft 5%
250.4 m Ft 34%

Az ingatlan elhelyezkedése

Cím: Budapest, XVIII. kerület

Eladó ingatlanok a környékről

Eladó téglalakás
Eladó téglalakás

XVIII. kerület

93 M Ft
2 + 1 szoba
78 m2
Eladó téglalakás
Eladó téglalakás

VII. kerület

69.9 M Ft
1 szoba
38 m2
Eladó családi ház
Eladó családi ház

XVIII. kerület, Bókaytelep

139.9 M Ft
6 szoba
192 m2
Eladó családi ház
Eladó családi ház

XVIII. kerület, Lónyaytelep, Széchenyi István utca

94.9 M Ft
4 szoba
128 m2
Eladó téglalakás
Eladó téglalakás

IV. kerület, Megyer, Izzó utca

287.9 M Ft
3 szoba
90 m2
Eladó téglalakás
Eladó téglalakás

XIV. kerület

144.9 M Ft
3 szoba
80 m2
Eladó családi ház
Eladó családi ház

XVIII. kerület, Kossuth Ferenc telep, Brigád utca

79 M Ft
4 szoba
88 m2
Eladó családi ház
Eladó családi ház

XVIII. kerület, Ganztelep, Sió utca

160 M Ft
3 + 1 szoba
156 m2
Eladó téglalakás
Eladó téglalakás

IX. kerület

46.8 M Ft
1 szoba
23 m2
Eladó családi ház
Eladó családi ház

XVIII. kerület

79 M Ft
4 szoba
88 m2
Eladó panellakás
Eladó panellakás

IV. kerület

56 M Ft
1 szoba
37 m2
Eladó családi ház
Eladó családi ház

XVIII. kerület

140 M Ft
6 szoba
193 m2
Eladó téglalakás
Eladó téglalakás

XIII. kerület

79.99 M Ft
2 szoba
46 m2
Eladó családi ház
Eladó családi ház

XVIII. kerület, Liptáktelep, Darányi Ignác utca

169.9 M Ft
6 szoba
192 m2
Eladó téglalakás
Eladó téglalakás

XXI. kerület

29.9 M Ft
1 szoba
23 m2
Eladó családi ház
Eladó családi ház

XVIII. kerület

155 M Ft
8 szoba
278 m2
Eladó családi ház
Eladó családi ház

XVIII. kerület

368 M Ft
4 szoba
336 m2
Eladó családi ház
Eladó családi ház

XVIII. kerület, Szemeretelep, Szurmay tábornok utca

160 M Ft
5 szoba
220 m2
Eladó családi ház
Eladó családi ház

XVIII. kerület, Bókaytelep, Bókay utca

489 M Ft
4 szoba
295 m2
Eladó panellakás
Eladó panellakás

III. kerület

74 M Ft
2 szoba
51 m2
Eladó családi ház
Eladó családi ház

XVIII. kerület

162 M Ft
5 szoba
195 m2
Eladó családi ház
Eladó családi ház

XVIII. kerület, Szent Imre kertváros, Üllői út

170 M Ft
3 szoba
284 m2
Eladó családi ház
Eladó családi ház

XVIII. kerület, Erdőskert

245 M Ft
5 szoba
213 m2
Eladó téglalakás
Eladó téglalakás

III. kerület, Óbuda, Szél utca

81.99 M Ft
3 szoba
68 m2

Falusi CSOK ingatlanok

Eladó családi ház
Eladó családi ház

Nagyberki, Újváros u

20.9 M Ft
3 szoba
88 m2
Eladó családi ház
Eladó családi ház

Nagyrécse

19 M Ft
2 szoba
52 m2
Eladó családi ház
Eladó családi ház

Zsámbok, Szent László utca

38 M Ft
2 szoba
75 m2
Eladó családi ház
Eladó családi ház

Makád

18.5 M Ft
3 szoba
60 m2
Eladó családi ház
Eladó családi ház

Elek

35.49 M Ft
2 szoba
75 m2
Eladó családi ház
Eladó családi ház

Gáborján

5.5 M Ft
2 szoba
68 m2
Eladó családi ház
Eladó családi ház

Kétpó

14.9 M Ft
1 + 2 szoba
86 m2
Eladó családi ház
Eladó családi ház

Kamut

29.9 M Ft
3 szoba
100 m2