Avico Greentop

Eladó családi ház
Budapest, XVIII. kerület

1/2
159 900 000 Ft159.9 M Ft 975 000 Ft/m2
4 szoba
164 m2
építés éve:2026

Részletes adatok

Telekméret: 500 m2
Fűtés: Egyéb
Energetikai besorolás: Nem adta meg a hirdető

Az OTP Bank lakáshitel ajánlataFizetett hirdetés

+36 1 690
Hársmán Kamilla
Duna House - Szent Imre-kertváros

Érdekel az OTP Bank kedvezményes lakáshitel ajánlata? *

* A kérdésre „Igen” válasz bejelölése esetén, az „Üzenet küldése” gombra kattintva kijelentem, hogy az OTP Bank Nyrt. Adatkezelési tájékoztatójának tartalmát megismertem és tudomásul vettem.

Eladó családi ház leírása

18.kerület legkedveltebb részén Almáskertben

Almáskertben modern környezetben eladó új építésű ikerházfél.
A kivitelező sok éves múlttal és rengeteg elégedett ügyféllel rendelkezik, referenciák akár itt a lakóparkban is megtekinthetőek.

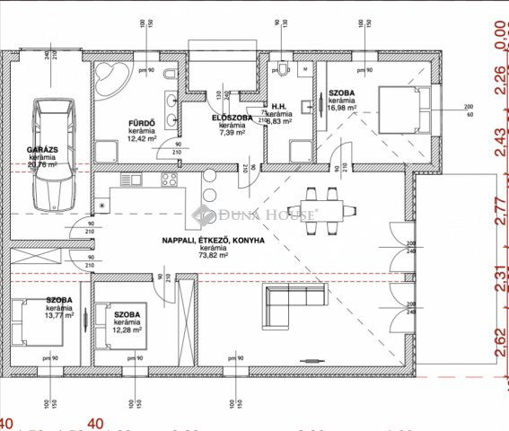
164,25 négyzetméter hasznos lakótérrel rendelkezik, mely egy 500 négyzetméteres telken fekszik. Nappali+3hálószobával rendelkezik, a szobák minimum 12 négyzetméteresek. A földszinten elhelyezkedő 73négyzetméteres nappali+amerikai konyha tágas életteret biztosít, melyből egy csodás privát teraszon keresztül juthatunk ki a saját privát kertünkbe.

Autóval garázsban és az udvaron is lehet parkolni.

Műszaki adatok:

-30-as Prototherm tégla falazat

-15 cm-es homlokzati szigetelés

-29 cm-es szigetelés az aljzat felől

-35 cm-es szigetelés a födém felől

-3 rétegű műanyag nyílászárók, fehér színnel

-a tető szerkezete fafödém cserépfedéssel

-elektromos garázskapu fehér színnel

-elektromos kertikapu

-Hőszivattyús fűtés, padlófűtéssel

-1db hűtő-fűtő klíma

-mosókonyha

-riasztó és kamerarendszer

-térkövezett autóbeálló

Burkolatok/beltéri ajtók/szaniterek még választhatóak.

A HÁZAK CSAK GARÁZZSAL ÉRINTKEZNEK!

A lakópark teljesen új modern környezet, összetartó közösség jellemzi. Közlekedést tekintve autóval a Gyorsforgalmi út, Üllői út, Gyömrői út az M0-ás, M5-ös és a 4-es út  mind-mind maximum 5 perc alatt megközelíthető.

Tömegközlekedés 3 perc sétára, ahonnan a buszok Kőbánya Kispest vasútállomásig, illetve Határ úti metrómegálló, Ferihegyi vasútállomás is megközelíthető. 10 perc busz távolságra Ferihegyi vasútállomás, melyről a Nyugati pályaudvarig közlekedhetünk. Séta távolságra: Gyógyszertár, Spar, Iskola, Óvoda, Posta

Felkeltette érdeklődését keressen bizalommal a hét bármely napján!

Hirdetés feltöltve: 2025. 10. 03. Utoljára módosítva: 2025. 11. 02.

4 szobás családi házak ára Budapesten

Ebből az összehasonlításból megtudhatod, hogyan viszonyul a lakás ára a környékbeli családi házak átlagos árához. Ez nem azt jelenti, hogy ennyivel olcsóbb vagy drágább, mint amennyit a lakás ér, hanem hogy ennyivel tér el a környékbeli átlagtól.

Ennek a m² ára
XVIII. kerület m² ár
Budapest m² ár
975 e Ft
956 e Ft -2%
1063 e Ft 8%
Ennek az ára
XVIII. kerület átlagár
Budapest átlagár
159.9 M Ft m Ft
137.6 m Ft -16%
153.4 m Ft -4%

Az ingatlan elhelyezkedése

Cím: Budapest, XVIII. kerület

Eladó ingatlanok a környékről

Eladó családi ház
Eladó családi ház

XVIII. kerület, Szent Imre kertváros, Üllői út

170 M Ft
3 szoba
284 m2
Eladó családi ház
Eladó családi ház

XVIII. kerület, Bókaytelep

158 M Ft
6 szoba
192 m2
Eladó téglalakás
Eladó téglalakás

VI. kerület

89.5 M Ft
2 szoba
57 m2
Eladó téglalakás
Eladó téglalakás

V. kerület, Belváros, Belgrád rakpart

78 M Ft
1 + 1 szoba
42 m2
Eladó családi ház
Eladó családi ház

XVIII. kerület

105 M Ft
6 szoba
180 m2
Eladó téglalakás
Eladó téglalakás

III. kerület, Óbudaisziget, Folyamőr utca

76.9 M Ft
1 szoba
25 m2
Eladó téglalakás
Eladó téglalakás

I. kerület, Krisztinaváros, Feszty Árpád utca

78.99 M Ft
1 szoba
28 m2
Eladó téglalakás
Eladó téglalakás

XIII. kerület, Angyalföld, Gidófalvy Lajos utca 4

83 M Ft
2 szoba
42 m2
Eladó családi ház
Eladó családi ház

XVIII. kerület, Kossuth Ferenc telep, Brigád utca

79.99 M Ft
4 szoba
88 m2
Eladó téglalakás
Eladó téglalakás

VIII. kerület, Palotanegyed, Rákóczi út

190 M Ft
5 szoba
121 m2
Eladó családi ház
Eladó családi ház

XVIII. kerület, Erdőskert

280 M Ft
5 szoba
213 m2
Eladó téglalakás
Eladó téglalakás

VIII. kerület, Józsefváros, Corvin Sétány 2

139.9 M Ft
3 szoba
59 m2
Eladó családi ház
Eladó családi ház

XVIII. kerület, Bókaytelep, Bókay utca

489 M Ft
4 szoba
295 m2
Eladó családi ház
Eladó családi ház

XVIII. kerület

94.9 M Ft
4 szoba
128 m2
Eladó családi ház
Eladó családi ház

XVIII. kerület, Lónyaytelep, Széchenyi István utca

94.9 M Ft
4 szoba
128 m2
Eladó téglalakás
Eladó téglalakás

VI. kerület, Külső Terézváros, Szív utca

119.5 M Ft
3 szoba
94 m2
Eladó családi ház
Eladó családi ház

XVIII. kerület

79.99 M Ft
4 szoba
88 m2
Eladó téglalakás
Eladó téglalakás

III. kerület, Óbuda, Szomolnok utca

89.9 M Ft
2 + 2 szoba
96 m2
Eladó téglalakás
Eladó téglalakás

VI. kerület

108 M Ft
2 szoba
69 m2
Eladó családi ház
Eladó családi ház

XVIII. kerület

289.9 M Ft
11 szoba
300 m2
Eladó téglalakás
Eladó téglalakás

VI. kerület, Diplomatanegyed

99 M Ft
3 szoba
61 m2
Eladó családi ház
Eladó családi ház

XVIII. kerület, Liptáktelep, Darányi Ignác utca

169.9 M Ft
6 szoba
192 m2
Eladó családi ház
Eladó családi ház

XVIII. kerület

155 M Ft
8 szoba
278 m2
Eladó családi ház
Eladó családi ház

XVIII. kerület, Szemeretelep, Szurmay tábornok utca

160 M Ft
5 szoba
220 m2

Falusi CSOK ingatlanok

Eladó családi ház
Eladó családi ház

Bócsa

68 M Ft
3 szoba
100 m2
Eladó családi ház
Eladó családi ház

Gersekarát, Dózsa György utca

6 M Ft
3 szoba
58 m2
Eladó családi ház
Eladó családi ház

Ónod, Barátság 9

31.999 M Ft
3 szoba
150 m2
Eladó családi ház
Eladó családi ház

Hegyhátsál

39.9 M Ft
3 szoba
122 m2
Eladó családi ház
Eladó családi ház

Mikepércs

59.99 M Ft
4 szoba
81 m2
Eladó téglalakás
Eladó téglalakás

Rétság

44.9 M Ft
2 szoba
55 m2
Eladó családi ház
Eladó családi ház

Iváncsa

73.9 M Ft
1 + 3 szoba
97 m2
Eladó ikerház
Eladó ikerház

Táborfalva

49.9 M Ft
4 szoba
54 m2