City Pearl

Eladó családi ház
Budapest, XVII. kerület

+ 17 kép 1/20
349 000 000 Ft349 M Ft 997 143 Ft/m2
7 szoba
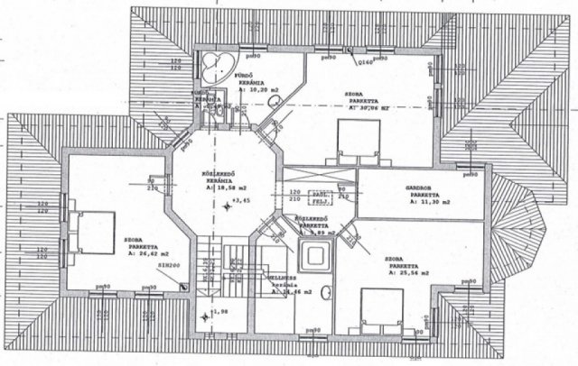
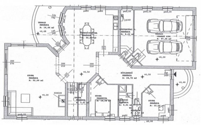
350 m²
építés éve:2008

Részletes adatok

Állapot: Újszerű
Telekméret: 1259 m2
Fűtés: Gázkazán
Parkolás: Garázs
Közmű: Víz, Gáz, Villany, Csatorna
Energetikai besorolás: B

Az OTP Bank lakáshitel ajánlataFizetett hirdetés

+36 70 682
Péter Lívia
Balla Ingatlan - XIV. kerület

Érdekel az OTP Bank kedvezményes lakáshitel ajánlata? *

* A kérdésre „Igen” válasz bejelölése esetén, az „Üzenet küldése” gombra kattintva kijelentem, hogy az OTP Bank Nyrt. Adatkezelési tájékoztatójának tartalmát megismertem és tudomásul vettem.

Eladó családi ház leírása

Mediterrán hangulat, tágas terek, nyugalom Rákoskeresztúron!
A XVII. kerület csendes, rendezett utcájában kínálunk megvételre egy 2008.-ban épült, modern kialakítású 350nm-es, 7 szobás családi házat egy 1259m2-es parkosított, gyönyörű telken.
A ház világos, nagyvonalú terekkel és nagy méretű szobákkal várja új tulajdonosát!
A luxust nem csak a remek kivitelezés, a kiváló minőségű alapanyagokból épített ház adja, hanem az álom extrák is:
-80nm-es csodálatos terasz
-6 személyes jakuzzi.
-Intim, Ősfás kert automata öntözőrendszerrel.
-Napelemrendszer.
-Dupla garázs.
-Klímák.
-Modern mediterrán hangulat!
Tágas, kényelmes otthon, rengeteg tárolási lehetőséggel.
Tökéletes választás, ha nyugalomra és minőségre vágysz!
A tulajdonos kisebb lakást, vagy nagyobb értékű autót is beszámít!
Amennyiben felkeltettem az érdeklődését az ingatlannal kapcsolatban, kérem keressen bizalommal.

Hirdetés feltöltve: 2026. 04. 16. Utoljára módosítva: 2026. 04. 28.

Az ingatlan elhelyezkedése

Cím: Budapest, XVII. kerület

Eladó ingatlanok a környékről

XI. kerület, Kőérberek, Kánai út 31
Eladó téglalakás

Budapest, XI. kerület

130.99 M Ft
3 szoba
68 m²
XI. kerület, Kőérberek, Kánai út 31
Eladó téglalakás

Budapest, XI. kerület

129.99 M Ft
3 szoba
60 m²
XI. kerület, Kőérberek, Kánai út 31
Eladó téglalakás

Budapest, XI. kerület

148.49 M Ft
3 szoba
69 m²
XVII. kerület
Eladó családi ház

Budapest, XVII. kerület

119.9 M Ft
5 szoba
150 m²
XI. kerület, Kőérberek, Kánai út 31
Eladó téglalakás

Budapest, XI. kerület

160.99 M Ft
3 szoba
74 m²
XVII. kerület
Eladó családi ház

Budapest, XVII. kerület

179.9 M Ft
10 szoba
317 m²
XVII. kerület
Eladó családi ház

Budapest, XVII. kerület

149.9 M Ft
6 szoba
168 m²
XVII. kerület, Rákoskeresztúr
Eladó családi ház

Budapest, XVII. kerület

162 M Ft
6 szoba
227 m²
XI. kerület, Kőérberek, Kánai út 31
Eladó téglalakás

Budapest, XI. kerület

179.99 M Ft
4 szoba
88 m²
XI. kerület, Kőérberek, Kánai út 31
Eladó téglalakás

Budapest, XI. kerület

130.99 M Ft
3 szoba
60 m²
XI. kerület, Kőérberek, Kánai út 31
Eladó téglalakás

Budapest, XI. kerület

254.99 M Ft
5 szoba
118 m²
XI. kerület, Kőérberek, Kánai út 31
Eladó téglalakás

Budapest, XI. kerület

246.99 M Ft
4 szoba
100 m²
XI. kerület, Kőérberek, Kánai út 31
Eladó téglalakás

Budapest, XI. kerület

101.99 M Ft
2 szoba
49 m²
XVII. kerület
Eladó családi ház

Budapest, XVII. kerület

350 M Ft
3 + 1 szoba
180 m²
XVII. kerület
Eladó családi ház

Budapest, XVII. kerület

256 M Ft
5 szoba
250 m²
XI. kerület, Kőérberek, Kánai út 31
Eladó téglalakás

Budapest, XI. kerület

156.49 M Ft
4 szoba
90 m²
XVII. kerület
Eladó családi ház

Budapest, XVII. kerület

350 M Ft
5 szoba
180 m²
XVII. kerület
Eladó családi ház

Budapest, XVII. kerület

94.9 M Ft
6 szoba
220 m²
XVII. kerület
Eladó családi ház

Budapest, XVII. kerület

94.9 M Ft
6 szoba
220 m²
XI. kerület, Kőérberek, Kánai út 31
Eladó téglalakás

Budapest, XI. kerület

117.49 M Ft
3 szoba
63 m²
XI. kerület, Kőérberek, Kánai út 31
Eladó téglalakás

Budapest, XI. kerület

96.49 M Ft
2 szoba
45 m²
XVII. kerület
Eladó családi ház

Budapest, XVII. kerület

120 M Ft
4 + 1 szoba
150 m²
XVII. kerület
Eladó családi ház

Budapest, XVII. kerület

180 M Ft
6 szoba
226 m²
XVII. kerület, Rákoskeresztúr, Budapest 17. kerület - kertváros
Eladó családi ház

Budapest, XVII. kerület

180 M Ft
5 szoba
155 m²

Falusi CSOK ingatlanok

Győrság
Eladó családi ház

Győrság

79.9 M Ft
4 szoba
92 m²
Jakabszállás
Eladó családi ház

Jakabszállás

179 M Ft
3 szoba
60 m²
Bogyoszló
Eladó családi ház

Bogyoszló

27.9 M Ft
3 szoba
120 m²
Kiszombor, Óbébai utca
Eladó családi ház

Kiszombor

32.9 M Ft
4 szoba
140 m²
Badacsonytomaj
Eladó családi ház

Badacsonytomaj

285 M Ft
4 szoba
230 m²
Újhartyán
Eladó családi ház

Újhartyán

99.9 M Ft
5 szoba
168 m²
Somlóvásárhely
Eladó családi ház

Somlóvásárhely

29.9 M Ft
3 + 1 szoba
93 m²
Kaposgyarmat
Eladó családi ház

Kaposgyarmat

695 M Ft
6 szoba
610 m²