NapForrás 20 - Buda

Eladó családi ház
Budapest, XVII. kerület

+ 11 kép 1/14
138 000 000 Ft138 M Ft 1 662 651 Ft/m2
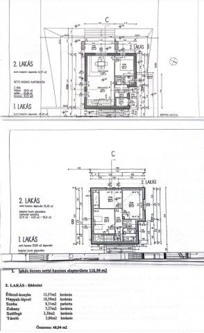
1 + 4 szoba
83 m²
építés éve:2018

Részletes adatok

Állapot: Újszerű
Telekméret: 613 m2
Fűtés: Gázkazán
Parkolás: Kocsibeálló
Komfort: Összkomfortos
Energetikai besorolás: C

Az OTP Bank lakáshitel ajánlataFizetett hirdetés

+36 30 491
Justus Lilla
referens

Érdekel az OTP Bank kedvezményes lakáshitel ajánlata? *

* A kérdésre „Igen” válasz bejelölése esetén, az „Üzenet küldése” gombra kattintva kijelentem, hogy az OTP Bank Nyrt. Adatkezelési tájékoztatójának tartalmát megismertem és tudomásul vettem.

Eladó családi ház leírása

Modern családi otthon nyugodt környezetben – eladó újszerű ház Rákoskerten!

Ha egy csendes, zöld környezetben lévő, mégis modern és kényelmes otthont keresel, akkor ezt a házat érdemes megnézned!

Budapest XVII. kerületének közkedvelt rákoskerti részén eladó egy 2018-ban épült, újszerű állapotú családi ház, amelyet azóta is gondosan karbantartanak. A ház harmonikus hangulatú, praktikus elosztású, és ideális választás családok számára.
Rendkívül jól átgondolt elrendezés!
A házba belépve egy barátságos előszoba fogad, ahonnan:
jobbra egy zuhanyzós fürdőszoba,
balra egy háztartási helyiség és kamra,
szemben pedig a világos, amerikai konyhás nappali található.
A nappaliból nyílik egy földszinti hálószoba, amely dolgozószobaként is igen hasznos lehet. Az étkező pedig közvetlen teraszkapcsolattal rendelkezik, így a kert és a belső tér tökéletesen összekapcsolódik.
Az emeleten további 3 külön nyíló hálószoba és egy kádas fürdőszoba kapott helyet, ami kényelmes életteret biztosít akár nagyobb családoknak is.

Műszaki tartalom:
 gázcirkó fűtés
 padlófűtés a földszinti hidegburkolatos helyiségekben
 radiátoros hőleadás a szobákban
 emeleti klíma a nyári komfortért
 videós kaputelefon
 riasztórendszer előkészítés

Hangulatos kert
A gondozott udvarban egy külön kialakított kerti sütögető rész várja a családi és baráti összejöveteleket – tökéletes hely egy nyári grillezéshez vagy esti beszélgetésekhez.

Miért jó választás?
csendes, családbarát környék
újszerű, modern állapot
praktikus elrendezés
hangulatos kert
hitelezhető ingatlan
A telek osztatlan közös, de fizikálisan szétválasztott, mindenki saját udvarral rendelkezik. Ügyvédi használati megosztás kész van.

Ez a ház tökéletes választás mindazoknak, akik a városi élet kényelmét szeretnék ötvözni a nyugodt, otthonos környezettel.
Amennyiben a megvásárláshoz hitelre van szüksége, bankfüggetlen hitelcentrumunk egyedi ajánlatokkal is térítésmentes áll ügyfeleink rendelkezésre az egész hitelfelvételi folyamat során. ...TOVÁBBI, TÖBBEZRES INGATLAN KÍNÁLAT: www.gdn-ingatlan.hu - GDN azonosító: 392029

Hirdetés feltöltve: 2026. 01. 25. Utoljára módosítva: 2026. 05. 15.

5 szobás családi házak ára Budapesten

Ebből az összehasonlításból megtudhatod, hogyan viszonyul a lakás ára a környékbeli családi házak átlagos árához. Ez nem azt jelenti, hogy ennyivel olcsóbb vagy drágább, mint amennyit a lakás ér, hanem hogy ennyivel tér el a környékbeli átlagtól.

Ennek a m² ára
XVII. kerület m² ár
Budapest m² ár
1663 e Ft
932 e Ft -78%
961 e Ft -73%
Ennek az ára
XVII. kerület átlagár
Budapest átlagár
138 M Ft m Ft
181.7 m Ft 24%
236.6 m Ft 42%

Az ingatlan elhelyezkedése

Cím: Budapest, XVII. kerület

Eladó ingatlanok a környékről

XVII. kerület, Rákoskeresztúr
Eladó családi ház

Budapest, XVII. kerület

162 M Ft
6 szoba
227 m²
XI. kerület, Kelenföld, Budafoki út 64/B
Eladó téglalakás

Budapest, XI. kerület

77.7 M Ft
1 szoba
32 m²
XVII. kerület
Eladó családi ház

Budapest, XVII. kerület

120 M Ft
4 + 1 szoba
150 m²
XI. kerület, Kelenföld, Budafoki út 64/B
Eladó téglalakás

Budapest, XI. kerület

236.25 M Ft
4 szoba
88 m²
XI. kerület, Kelenföld, Budafoki út 64/B
Eladó téglalakás

Budapest, XI. kerület

91.245 M Ft
2 szoba
39 m²
XI. kerület, Kelenföld, Budafoki út 64/B
Eladó téglalakás

Budapest, XI. kerület

229.74 M Ft
4 szoba
96 m²
XI. kerület, Kelenföld, Budafoki út 64/B
Eladó téglalakás

Budapest, XI. kerület

137.13 M Ft
3 szoba
62 m²
XVII. kerület
Eladó családi ház

Budapest, XVII. kerület

249 M Ft
9 szoba
373 m²
XI. kerület, Kelenföld, Budafoki út 64/B
Eladó téglalakás

Budapest, XI. kerület

99.645 M Ft
2 szoba
42 m²
XIII. kerület, Vizafogó, Sólyatér utca 15
Eladó téglalakás

Budapest, XIII. kerület

82.32 M Ft
1 szoba
36 m²
XVII. kerület
Eladó családi ház

Budapest, XVII. kerület

142.9 M Ft
7 szoba
217 m²
XVII. kerület
Eladó családi ház

Budapest, XVII. kerület

94.9 M Ft
6 szoba
220 m²
XIII. kerület, Vizafogó, Sólyatér utca 15
Eladó téglalakás

Budapest, XIII. kerület

80.22 M Ft
1 szoba
38 m²
XVII. kerület
Eladó családi ház

Budapest, XVII. kerület

250 M Ft
7 szoba
260 m²
XI. kerület, Kelenföld, Budafoki út 64/B
Eladó téglalakás

Budapest, XI. kerület

94.08 M Ft
2 szoba
45 m²
XVII. kerület
Eladó családi ház

Budapest, XVII. kerület

349.9 M Ft
6 szoba
420 m²
XI. kerület, Kelenföld, Budafoki út 64/B
Eladó téglalakás

Budapest, XI. kerület

97.125 M Ft
2 szoba
39 m²
XI. kerület, Kelenföld, Budafoki út 64/B
Eladó téglalakás

Budapest, XI. kerület

90.405 M Ft
2 szoba
40 m²
XI. kerület, Kelenföld, Budafoki út 64/B
Eladó téglalakás

Budapest, XI. kerület

330.645 M Ft
5 szoba
110 m²
XVII. kerület
Eladó családi ház

Budapest, XVII. kerület

179.9 M Ft
10 szoba
317 m²
XI. kerület, Kelenföld, Budafoki út 64/B
Eladó téglalakás

Budapest, XI. kerület

75.915 M Ft
1 szoba
33 m²
XVII. kerület
Eladó családi ház

Budapest, XVII. kerület

94.9 M Ft
6 szoba
220 m²
XIII. kerület, Vizafogó, Sólyatér utca 15
Eladó téglalakás

Budapest, XIII. kerület

97.125 M Ft
2 szoba
45 m²
XVII. kerület
Eladó családi ház

Budapest, XVII. kerület

279 M Ft
9 szoba
270 m²

Falusi CSOK ingatlanok

Nagybaracska
Eladó családi ház

Nagybaracska

35 M Ft
3 szoba
110 m²
Lajoskomárom
Eladó családi ház

Lajoskomárom

22.9 M Ft
2 szoba
66 m²
Demjén
Eladó családi ház

Demjén

108 M Ft
5 szoba
200 m²
Zsámbok
Eladó családi ház

Zsámbok

54.85 M Ft
3 szoba
120 m²
Egerbakta
Eladó családi ház

Egerbakta

43.9 M Ft
5 + 1 szoba
160 m²
Sződ
Eladó családi ház

Sződ

116 M Ft
5 szoba
136 m²
Ásványráró
Eladó családi ház

Ásványráró

42.5 M Ft
703 m²
69 m²
Csurgó
Eladó családi ház

Csurgó

29 M Ft
3 szoba
80 m²