Metrodom

Eladó családi ház
Budapest, XVII. kerület, Rákoskert

+ 17 kép 1/20
94 900 000 Ft94.9 M Ft 790 833 Ft/m2
5 szoba
120 m2
építés éve:1984

Részletes adatok

Telekméret: 583 m2
Fűtés: Gázkazán
Közmű: Gáz, Villany, Csatorna
Energetikai besorolás: Nem adta meg a hirdető
Zenga Premier

Friss hirdetések, amiket nem találsz meg más ingatlankereső portálon.

Fedezd fel elsőként a Zenga Premier címkés eladó ingatlanokat!

További részletek a zenga.hu-n

Az OTP Bank lakáshitel ajánlataFizetett hirdetés

+36 70 435
Sipos Zoltánné
referens

Érdekel az OTP Bank kedvezményes lakáshitel ajánlata? *

* A kérdésre „Igen” válasz bejelölése esetén, az „Üzenet küldése” gombra kattintva kijelentem, hogy az OTP Bank Nyrt. Adatkezelési tájékoztatójának tartalmát megismertem és tudomásul vettem.

Eladó családi ház leírása

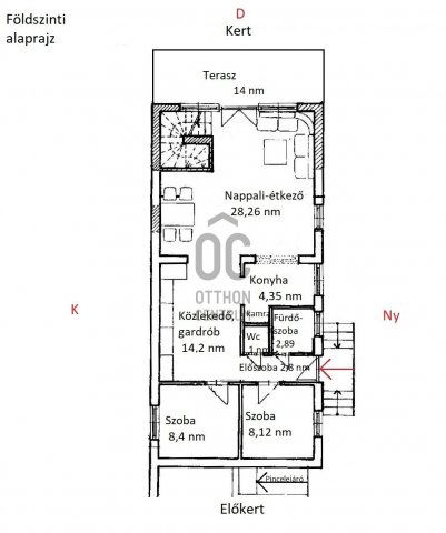
XVII. kerületben Rákoskerten csendes mellékutcában, kiváló közlekedés mellett kínálunk megvásárlásra egy önálló családi házat pincével, összközműves, déli tájolású 583 nm-es telekkel. A lakóépület földszintjén az előszobából nyílik két szoba, egy fürdőszoba, egy külön mellékhelyiség, egy nagyobb közlekedő-gardróbból juthatunk be a konyhába, továbbá a teraszon át kertkapcsolatos, déli tájolású napfényes nappali-étkezőbe. A terasz méretéből adódóan kiválóan alkalmas családi összejövetelekre, nyári ebédekhez.
A nappaliból nyílik a kényelmes lépcsőház, innen jutunk fel az emeletre. Itt egy nagy nappali (könnyedén zárható szobává alakítható), egy konyha, étkező-nappali, egy fürdőszoba és egy nagy szoba kapott helyet. Az erkélyről szép kilátás nyílik a kertre és a környékre. A fűtést és a használati meleg vizet turbós kombi cirkó biztosítja. Igény esetén kis átalakítással kétgenerációs ingatlant kaphatunk. A ház alatt egy pince is kialakításra került, tárolásra kiválóan alkalmas. A homlokzat hőszigetelt, a tetőt cserép fedi. Telken belül két autóval kényelmesen parkolhatunk. A környék csendes, kertes házakkal beépített, buszmegálló rövid sétával elérhető, iskola, óvoda, orvosi rendelő, gyógyszertár, művelődési ház, bevásárlási lehetőség szintén a közelben található. Az ingatlan üres, tehermentes, rövid időn belül birtokba vehető.

Hirdetés feltöltve: 2025. 11. 17.

5 szobás családi házak ára Budapesten

Ebből az összehasonlításból megtudhatod, hogyan viszonyul a lakás ára a környékbeli családi házak átlagos árához. Ez nem azt jelenti, hogy ennyivel olcsóbb vagy drágább, mint amennyit a lakás ér, hanem hogy ennyivel tér el a környékbeli átlagtól.

Ennek a m² ára
Rákoskert m² ár
XVII. kerület m² ár
Budapest m² ár
791 e Ft
812 e Ft 3%
818 e Ft 3%
972 e Ft 19%
Ennek az ára
Rákoskert átlagár
XVII. kerület átlagár
Budapest átlagár
94.9 M Ft m Ft
148.1 m Ft 36%
169 m Ft 44%
248 m Ft 62%

Az ingatlan elhelyezkedése

Cím: Budapest, XVII. kerület, Rákoskert

Eladó ingatlanok a környékről

Eladó családi ház
Eladó családi ház

XVII. kerület, Rákoskeresztúr

219 M Ft
6 szoba
305 m2
Eladó családi ház
Eladó családi ház

XVII. kerület

89.9 M Ft
6 szoba
240 m2
Eladó ikerház
Eladó ikerház

XVIII. kerület

130 M Ft
4 szoba
182 m2
Eladó családi ház
Eladó családi ház

XVII. kerület

399 M Ft
5 szoba
251 m2
Eladó ikerház
Eladó ikerház

XVIII. kerület

130 M Ft
4 szoba
182 m2
Eladó téglalakás
Eladó téglalakás

VIII. kerület

94.9 M Ft
3 szoba
80 m2
Eladó családi ház
Eladó családi ház

XVII. kerület, Rákoskeresztúr, Budapest 17. kerület - kertváros

180 M Ft
5 szoba
155 m2
Eladó családi ház
Eladó családi ház

XVII. kerület, Rákosliget, XXVII utca 4

145 M Ft
5 + 2 szoba
172 m2
Eladó családi ház
Eladó családi ház

XVII. kerület, Rákoscsaba

74 M Ft
3 szoba
75 m2
Eladó családi ház
Eladó családi ház

XVII. kerület, Rákoscsaba

180 M Ft
8 szoba
214 m2
Eladó családi ház
Eladó családi ház

XVII. kerület, Rákoshegy, Dobos István utca

350 M Ft
3 + 1 szoba
212 m2
Eladó téglalakás
Eladó téglalakás

IX. kerület

125.8 M Ft
2 szoba
54 m2
Eladó családi ház
Eladó családi ház

XVII. kerület, Rákoskeresztúr, Pesti út

595 M Ft
5 szoba
500 m2
Eladó panellakás
Eladó panellakás

XXI. kerület, Szabótelep

54.9 M Ft
3 szoba
55 m2
Eladó családi ház
Eladó családi ház

XVII. kerület, Rákoskeresztúr

399 M Ft
5 szoba
251 m2
Eladó téglalakás
Eladó téglalakás

X. kerület, Óhegy

66 M Ft
2 szoba
56 m2
Eladó téglalakás
Eladó téglalakás

XII. kerület

129 M Ft
3 szoba
64 m2
Eladó téglalakás
Eladó téglalakás

VI. kerület

61 M Ft
2 szoba
46 m2
Eladó családi ház
Eladó családi ház

XVII. kerület

279 M Ft
9 szoba
270 m2
Eladó családi ház
Eladó családi ház

XVII. kerület, Rákoshegy

350 M Ft
3 + 1 szoba
212 m2
Eladó családi ház
Eladó családi ház

XVII. kerület, Rákoshegy, Rákoskert utca

89.5 M Ft
3 + 1 szoba
110 m2
Eladó családi ház
Eladó családi ház

XVII. kerület, Rákoscsaba

180 M Ft
5 szoba
226 m2
Eladó családi ház
Eladó családi ház

XVII. kerület

56 M Ft
2 szoba
76 m2
Eladó családi ház
Eladó családi ház

XVII. kerület, Rákoshegy, Dobos István utca

350 M Ft
5 szoba
212 m2

Falusi CSOK ingatlanok

Eladó családi ház
Eladó családi ház

Háromfa, Kossuth

22.4 M Ft
66 m2
Eladó családi ház
Eladó családi ház

Bag

16.9 M Ft
6 szoba
160 m2
Eladó sorház
Eladó sorház

Tiszasziget, Sziget lakópark

33.9 M Ft
2 szoba
48 m2
Eladó családi ház
Eladó családi ház

Dunaszekcső

27.5 M Ft
3 szoba
128 m2
Eladó családi ház
Eladó családi ház

Kétpó

14.9 M Ft
1 + 2 szoba
86 m2
Eladó családi ház
Eladó családi ház

Zengővárkony

35 M Ft
3 szoba
87 m2
Eladó családi ház
Eladó családi ház

Magyarpolány

90 M Ft
2 szoba
70 m2
Eladó ikerház
Eladó ikerház

Besnyő

79.6 M Ft
5 szoba
117 m2