Eladó családi ház
Budapest, XVII. kerület 
Részletes adatok
Az OTP Bank lakáshitel ajánlataFizetett hirdetés
Induló törlesztőrészlet
101 262 Ft /hóTörlesztőrészlet a 13. hónaptól
129 106 Ft /hóInduló törlesztőrészlet
135 016 Ft /hóTörlesztőrészlet a 13. hónaptól
172 142 Ft /hóA tájékoztatás nem teljes körű és nem minősül ajánlattételnek. Az OTP Évnyerő Lakáshitelei 1 éves türelmi idős kölcsönök, amellyel az első 12 hónapban alacsonyabb a havi törlesztőrészlet. A tőke törlesztését a 13. hónaptól kell megkezdeni.
Eladó családi ház leírása
Eladó igényesen felújított, kétgenerációs családi ház Rákoskerten, termő gyümölcsfákkal hívogató tágas kerttel
Budapest XVII. kerületének legkeresettebb részén, Rákoskerten, aszfaltozott mellékutcában kínálok megvételre egy nettó 150 m² (bruttó 180 m²-es), akár kétgenerációs együttélésre is alkalmas, pincével és beépített tetőtérrel rendelkező családi házat, parkosított közel 680 m²-es kerttel.
Az ingatlan az 1970-es években téglából épült, majd 2020-tól folyamatos, teljes körű felújításon esett át.
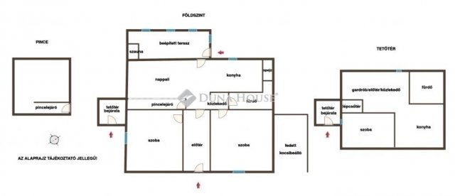
Kialakítás:
 Földszint: nappali, konyha, 3 szoba, fürdőszoba + WC, közlekedő, beépített terasz szaunával
 Beépített tetőtér: nappali, konyha, szoba, fürdőszoba + WC, közlekedő
 Kert: parkosított kert tárolókkal, kutya kennellel, fedett kocsibeállóval
 Pince + padlás: tárolási lehetőségek
Felújítás és felszereltség:
 Teljes tetőszerkezet és a hideg-meleg burkolatok cseréje
 10 cm külső hőszigetelés, tetőtér oldalán dupla gipszkartonos kialakítás és 25 cm, födémnél 30 cm szigetelés
 Víz-, elektromos- és szennyvízhálózat teljesen felújítva
 Új központi fűtésrendszer gázkazánnal, + kandalló
 Korszerű műanyag nyílászárók szúnyoghálóval ellátva
 Gépesített konyha, kamra
 Szintenként hűtő-fűtő klíma
Elhelyezkedés:
A környék infrastruktúrája kiváló:
 Néhány perc sétával elérhető iskola, óvoda, posta, orvosi rendelő és kisebb boltok
 BKK buszmegálló és Rákoskert vasútállomás néhány perc sétára található,
 Autóval 5 perc a maglódi Auchan bevásárlóközpont, az M0-s csomópontja
Ez a ház tökéletes választás azok számára, akik igényes, kétgenerációs otthont keresnek csendes, kertvárosi környezetben, de mégis kiváló közlekedési és infrastruktúra kapcsolattal. A ház minden részlete a minőséget, a kényelmet és a harmóniát szolgálja. Megegyezés alapján akár rövid határidővel költözhető.
Amennyiben felkeltettem érdeklődését, keressen bizalommal további információért a hét bármely napján!
A Duna House teljes kínálatával állok rendelkezésére!
Ingatlan eladás és vétel teljes körű ügyintézése, megbízható ügyvédi háttér biztosítása, ingyenes ingatlan tanácsadás, teljes körű és gyors bankfüggetlen hitelügyintézés, biztosítás, energetikai tanúsítvány akár hozott ingatlanra is az ország piacvezető ingatlanközvetítő hálózatának támogatásával!
Érd.: Janik Zsolt +36704279898
Referencia szám: HZ046088
Hirdetés feltöltve: 2025. 10. 10. Utoljára módosítva: 2025. 10. 31.
5 szobás családi házak ára Budapesten
Ebből az összehasonlításból megtudhatod, hogyan viszonyul a lakás ára a környékbeli családi házak átlagos árához. Ez nem azt jelenti, hogy ennyivel olcsóbb vagy drágább, mint amennyit a lakás ér, hanem hogy ennyivel tér el a környékbeli átlagtól.
Az ingatlan elhelyezkedése
Cím: Budapest, XVII. kerület
 
 
 
 
 
 
 
 
 
 
 
 
 
 
 
 
 
 
 
 
 
 
 
 
 
 
 
 
 
 
 
 
 
 
