Astora Márvány8

Eladó családi ház
Budapest, XVI. kerület, Sashalom

+ 10 kép 1/13
319 000 000 Ft319 M Ft 1 281 124 Ft/m2
7 szoba
249 m2
építés éve:2025

Részletes adatok

Telekméret: 617 m2
Fűtés: Egyéb
Parkolás: Garázs
Energetikai besorolás: Nem adta meg a hirdető

Az OTP Bank lakáshitel ajánlataFizetett hirdetés

+36 30 445
Csóka Annamária
referens

Érdekel az OTP Bank kedvezményes lakáshitel ajánlata? *

* A kérdésre „Igen” válasz bejelölése esetén, az „Üzenet küldése” gombra kattintva kijelentem, hogy az OTP Bank Nyrt. Adatkezelési tájékoztatójának tartalmát megismertem és tudomásul vettem.

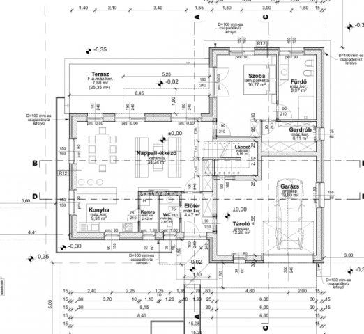
Eladó családi ház leírása

Új építésű, két szintes családi ház eladó Sashalom legszebb részén – prémium kialakítás, engedélyezett paraméterek szerint!

Budapest XVI. kerületében, Sashalom egyik legkedveltebb, csendes, kertvárosias részén kínáljuk eladásra ezt a korszerű, új építésű családi házat, amely egy 617 m²-es telken helyezkedik el, az Lke-1/XVI/SZ4 övezeti besorolásnak teljes mértékben megfelelően.

Főbb paraméterek:

Telek területe: 617 m²

Megengedett beépíthetőség: 25% (154,25 m²)

Tényleges beépítettség: 24,99% (154,20 m²)

Zöldfelület: 373,36 m² (60,51%)

Épületmagasság: 4,99 m (megengedett: max. 5 m)

Összes hasznos alapterület: 224,08 m²

Összes terasz és erkély: 25,35 m²

Helyiségek elosztása:
Földszint – 131,36 m² (lakótér + garázs + tároló + fedett terasz):

Tágas nappali-étkező: 34,24 m²

Külön konyha: 9,91 m²

Szoba: 16,77 m²

Előtér, WC, kamra, gardrób, fürdő, lépcső

Garázs + tároló: 32,08 m²

Fedett terasz: 7,80 m²

Nyitott terasz: 17,55 m²

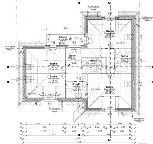
Tetőtér – 92,72 m²:

4 hálószoba (13–21 m², bruttó: akár 28 m²)

2 fürdőszoba

Közlekedő / előtér

Erkély: 7,80 m²

További előnyök:

Új építés – modern műszaki tartalommal, kiváló elrendezéssel

Kertvárosi környezet – nyugodt, családbarát utcában

Saját garázs + több tárolóhely

Tágas, világos terek, dupla komfort

Ideális nagycsaládosoknak vagy többgenerációs otthonnak is!

Ügyfeleink részére BANKFÜGGETLEN hitelügyintéző kollégáink szívesen nyújtanak segítséget, hitellel vagy akár CSOK-kal kapcsolatban is!

A hirdetésben feltüntetett adatok és információk csak tájékoztató jellegűek, jogi kötelezettséggel nem bíró jognyilatkozatnak minősülnek, mely nem tekinthető ajánlat tételnek és nem járnak az eladóra nézve kötelező ajánlati kötöttséggel.

Amennyiben felkeltettem az érdeklődését vagy bármely további kérdése lenne, keressen bizalommal.

Akár hétvégén is!

CSA ...TOVÁBBI, TÖBBEZRES INGATLAN KÍNÁLAT: www.gdn-ingatlan.hu - GDN azonosító: 388342

Hirdetés feltöltve: 2025. 10. 15. Utoljára módosítva: 2026. 01. 13.

Az ingatlan elhelyezkedése

Cím: Budapest, XVI. kerület, Sashalom

Eladó ingatlanok a környékről

Eladó téglalakás
Eladó téglalakás

VI. kerület, Külső Terézváros, Andrássy út 83-85

410 M Ft
2 szoba
109 m2
Eladó téglalakás
Eladó téglalakás

XIV. kerület, Alsórákos, Erzsébet királyné útja 108-110

130.5 M Ft
3 szoba
71 m2
Eladó családi ház
Eladó családi ház

XVI. kerület, Csömöri út

94.99 M Ft
3 szoba
134 m2
Eladó családi ház
Eladó családi ház

XVI. kerület

247 M Ft
5 szoba
138 m2
Eladó családi ház
Eladó családi ház

XVI. kerület, Mátyásföld, Csinszka utca

380 M Ft
5 szoba
313 m2
Eladó téglalakás
Eladó téglalakás

XIV. kerület, Alsórákos, Bartl János utca 46149

124.2 M Ft
3 szoba
65 m2
Eladó családi ház
Eladó családi ház

XVI. kerület

90 M Ft
3 szoba
84 m2
Eladó téglalakás
Eladó téglalakás

XIV. kerület, Alsórákos, Bartl János utca 46149

121.2 M Ft
3 szoba
64 m2
Eladó családi ház
Eladó családi ház

XVI. kerület, Mátyásföld

150 M Ft
7 szoba
500 m2
Eladó családi ház
Eladó családi ház

XVI. kerület, Sashalom

239 M Ft
5 szoba
151 m2
Eladó téglalakás
Eladó téglalakás

XV. kerület, Rákospalota, Hubay Jenő tér

86.9 M Ft
2 szoba
48 m2
Eladó családi ház
Eladó családi ház

XVI. kerület, Mátyásföld-Petőfikert

79.9 M Ft
3 szoba
85 m2
Eladó téglalakás
Eladó téglalakás

II. kerület, Kurucles, Hárshegyi út 34

800 M Ft
3 szoba
142 m2
Eladó téglalakás
Eladó téglalakás

XIV. kerület, Alsórákos, Erzsébet királyné útja 108-110

89.25 M Ft
2 szoba
52 m2
Eladó ikerház
Eladó ikerház

XXIII. kerület

39.9 M Ft
2 szoba
35 m2
Eladó téglalakás
Eladó téglalakás

XIV. kerület, Alsórákos, Erzsébet királyné útja 108-110

103.73 M Ft
3 szoba
65 m2
Eladó téglalakás
Eladó téglalakás

XIV. kerület, Alsórákos, Erzsébet királyné útja 108-110

189 M Ft
4 szoba
107 m2
Eladó családi ház
Eladó családi ház

XVI. kerület, Sashalom

257 M Ft
5 + 1 szoba
208 m2
Eladó családi ház
Eladó családi ház

XVI. kerület

360 M Ft
5 + 1 szoba
316 m2
Eladó téglalakás
Eladó téglalakás

XIV. kerület, Alsórákos, Erzsébet királyné útja 108-110

139.7 M Ft
3 szoba
71 m2
Eladó téglalakás
Eladó téglalakás

XIV. kerület, Alsórákos, Bartl János utca 46149

123.9 M Ft
3 szoba
65 m2
Eladó téglalakás
Eladó téglalakás

XIV. kerület, Alsórákos, Erzsébet királyné útja 108-110

103.93 M Ft
3 szoba
65 m2
Eladó családi ház
Eladó családi ház

XVI. kerület, Rákosszentmihály

360 M Ft
5 + 1 szoba
316 m2

Falusi CSOK ingatlanok

Eladó családi ház
Eladó családi ház

Táborfalva

49 M Ft
3 szoba
77 m2
Eladó családi ház
Eladó családi ház

Kenyeri

21.8 M Ft
2 szoba
75 m2
Eladó családi ház
Eladó családi ház

Juta

68.9 M Ft
4 szoba
174 m2
Eladó családi ház
Eladó családi ház

Úri

260 M Ft
7 szoba
300 m2
Eladó családi ház
Eladó családi ház

Sarud

17 M Ft
3 szoba
94 m2
Eladó családi ház
Eladó családi ház

Kétpó

14.9 M Ft
1 + 2 szoba
86 m2
Eladó családi ház
Eladó családi ház

Nagyhegyes

45.7 M Ft
2 szoba
55 m2
Eladó családi ház
Eladó családi ház

Devecser

40.9 M Ft
3 szoba
75 m2