River Life

Eladó családi ház
Budapest, XIX. kerület

+ 9 kép 1/12
109 000 000 Ft109 M Ft 579 787 Ft/m2
5 szoba
188 m2
építés éve:1970

Részletes adatok

Állapot: Átlagos
Telekméret: 349 m2
Fűtés: Elektromos
Parkolás: Garázs
Közmű: Víz, Gáz, Villany, Csatorna
Energetikai besorolás: Nem adta meg a hirdető

Az OTP Bank lakáshitel ajánlataFizetett hirdetés

+36 70 931
Rencsevics Mária
Balla Ingatlan - XIX., XX. és XXIII. kerület

Érdekel az OTP Bank kedvezményes lakáshitel ajánlata? *

* A kérdésre „Igen” válasz bejelölése esetén, az „Üzenet küldése” gombra kattintva kijelentem, hogy az OTP Bank Nyrt. Adatkezelési tájékoztatójának tartalmát megismertem és tudomásul vettem.

Eladó családi ház leírása

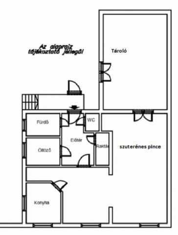
Nagy családnak, összeköltözőknek vagy vállalkozóknak kínálom ezt a kétszintes kertes, jó állapotú házat Kispest központi részén, családi házas környezetben. A 300 nm-es telken a lakóépületen kívül egy kétállásos garázs is található.

A FÖLDSZINT az udvar szintjén található, ugyanakkor az utca felé csak kis ablakai vannak, teljesen felújítandó, jelenleg raktárnak használt nagy épületrész, ami vállalkozás kialakításra is alkalmas.

AZ EMELET-et a tulajdonos felújította: A 3 szobás, külön bejáratú lakórészben a villanyvezetékeketkicserélték, új fürdőszobát alakítottak ki. A belső falak lebontásával egy tágas amerikai konyhás nappalit valósítottak meg, szép új burkolattal. Emellett két külön bejáratú tágas, világos szoba kényelmes életteret biztosít a családnak. Az otthon melegét klímák a meleg vizet villanybojler biztosítja.

A közlekedés remek: 42-es villamos, 268-as busz, S1 vonat megállói a közelben. A Köki vagy a Határ úti metrómegálló ( M3) 15 perc alatt elérhető.

A környéken a parkolás ingyenes.

Várom megtisztelő hívását, akár hétvégén is.

Hirdetés feltöltve: 2026. 01. 19.

5 szobás családi házak ára Budapesten

Ebből az összehasonlításból megtudhatod, hogyan viszonyul a lakás ára a környékbeli családi házak átlagos árához. Ez nem azt jelenti, hogy ennyivel olcsóbb vagy drágább, mint amennyit a lakás ér, hanem hogy ennyivel tér el a környékbeli átlagtól.

Ennek a m² ára
XIX. kerület m² ár
Budapest m² ár
580 e Ft
903 e Ft 36%
977 e Ft 41%
Ennek az ára
XIX. kerület átlagár
Budapest átlagár
109 M Ft m Ft
143.1 m Ft 24%
243 m Ft 55%

Az ingatlan elhelyezkedése

Cím: Budapest, XIX. kerület

Eladó ingatlanok a környékről

Eladó családi ház
Eladó családi ház

XXII. kerület, Budafok, Baross utca

222 M Ft
6 + 1 szoba
200 m2
Eladó családi ház
Eladó családi ház

XIX. kerület, Kispest

45 M Ft
2 szoba
80 m2
Eladó családi ház
Eladó családi ház

XIX. kerület, Felső-Kispesten

182 M Ft
6 szoba
170 m2
Eladó téglalakás
Eladó téglalakás

VII. kerület, Belső Erzsébetváros, Erzsébet körút

89.9 M Ft
1 + 1 szoba
71 m2
Eladó téglalakás
Eladó téglalakás

VIII. kerület

59.204 M Ft
1 szoba
32 m2
Eladó családi ház
Eladó családi ház

XIX. kerület

92 M Ft
5 szoba
140 m2
Eladó téglalakás
Eladó téglalakás

VII. kerület, Belső Erzsébetváros, Erzsébet körút

160 M Ft
3 szoba
88 m2
Eladó téglalakás
Eladó téglalakás

XIII. kerület, Angyalföld, Fiastyúk utca

39.9 M Ft
1 + 1 szoba
34 m2
Eladó téglalakás
Eladó téglalakás

XVIII. kerület

93 M Ft
3 szoba
71 m2
Eladó téglalakás
Eladó téglalakás

VI. kerület, Külső Terézváros, Szófia utca

112.9 M Ft
4 szoba
103 m2
Eladó téglalakás
Eladó téglalakás

VIII. kerület, Palotanegyed, Rákóczi út

185 M Ft
5 szoba
121 m2
Eladó családi ház
Eladó családi ház

XIX. kerület

34.9 M Ft
1 szoba
38 m2
Eladó családi ház
Eladó családi ház

XIX. kerület

44.99 M Ft
4 szoba
75 m2
Eladó családi ház
Eladó családi ház

XIX. kerület

99 M Ft
5 szoba
150 m2
Eladó családi ház
Eladó családi ház

XIX. kerület

45 M Ft
2 szoba
80 m2
Eladó családi ház
Eladó családi ház

XIX. kerület

89.9 M Ft
4 szoba
152 m2
Eladó családi ház
Eladó családi ház

XIX. kerület

199.8 M Ft
5 szoba
182 m2
Eladó téglalakás
Eladó téglalakás

XI. kerület, Gellérthegy, Gyula utca

130 M Ft
2 szoba
56 m2
Eladó téglalakás
Eladó téglalakás

IV. kerület, Újpest, Kassai utca

84.9 M Ft
2 + 1 szoba
71 m2
Eladó családi ház
Eladó családi ház

XVII. kerület

119.9 M Ft
3 szoba
81 m2
Eladó téglalakás
Eladó téglalakás

VIII. kerület

45.633 M Ft
1 szoba
28 m2
Eladó családi ház
Eladó családi ház

XIX. kerület, Shopmark közeli út

101 M Ft
4 szoba
110 m2
Eladó téglalakás
Eladó téglalakás

VII. kerület

69.9 M Ft
2 szoba
60 m2
Eladó családi ház
Eladó családi ház

XIX. kerület

139.9 M Ft
5 szoba
180 m2

Falusi CSOK ingatlanok

Eladó ikerház
Eladó ikerház

Bodajk

64.9 M Ft
5 szoba
108 m2
Eladó családi ház
Eladó családi ház

Tésenfa, Kossuth utca 23/a

5.55 M Ft
1 + 1 szoba
109 m2
Eladó családi ház
Eladó családi ház

Véménd

59 M Ft
2 szoba
200 m2
Eladó családi ház
Eladó családi ház

Acsalag

47 M Ft
3 szoba
140 m2
Eladó családi ház
Eladó családi ház

Szakmár

12.9 M Ft
3 + 1 szoba
90 m2
Eladó családi ház
Eladó családi ház

Sükösd

40 M Ft
3 szoba
112 m2
Eladó családi ház
Eladó családi ház

Szólád

99.9 M Ft
6 + 1 szoba
245 m2
Eladó családi ház
Eladó családi ház

Dombrád

8 M Ft
2 szoba
85 m2