Pesti Házak

Eladó családi ház
Budapest, XIX. kerület, Jókai utca

+ 17 kép 1/20
129 900 000 Ft129.9 M Ft 1 584 146 Ft/m2
3 szoba
82 m2
építés éve:1940

Részletes adatok

Állapot: Átlagos
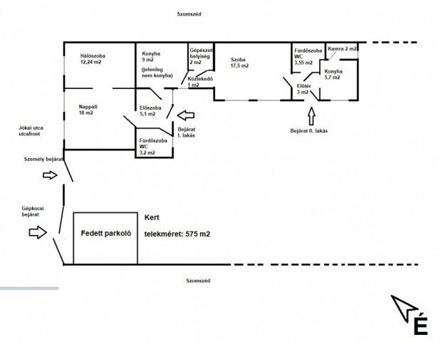
Telekméret: 575 m2
Fűtés: Gázkazán
Parkolás: Kocsibeálló
Közmű: Víz, Gáz, Villany, Csatorna
Energetikai besorolás: Nem adta meg a hirdető

Az OTP Bank lakáshitel ajánlataFizetett hirdetés

+36 70 383
Szimeth Norbert
Balla Ingatlan - XVIII. kerület, Gyál, Üllő, Vecsés, Péteri

Érdekel az OTP Bank kedvezményes lakáshitel ajánlata? *

* A kérdésre „Igen” válasz bejelölése esetén, az „Üzenet küldése” gombra kattintva kijelentem, hogy az OTP Bank Nyrt. Adatkezelési tájékoztatójának tartalmát megismertem és tudomásul vettem.

Eladó családi ház leírása

Eladó földszintes családi ház Kispest Óvárosában - csendes mellékutcában, kiváló közlekedéssel
Kispest Óváros kerületrészében, a Jókai utcában kínálunk megvételre egy földszintes, téglafalazatú családi házat, amely élhető, kisvárosi környezetben, forgalommentes mellékutcában helyezkedik el. A környék hangulata barátságos, kertvárosias: rendezett házak, zöld kertek és nyugodt utcák jellemzik, miközben a főváros közelsége minden kényelmet biztosít.
Telek és kert
• Telek mérete: 575 m², 15 m széles utcafronttal
• Beépíthetőség: 30%
• Gépjárművel bejárható a telek végéig
• Fedett gépkocsi-beálló: belső szélessége 330 cm, belső magassága 250 cm
• Különálló tároló: 8 m², elektromos közművel, 250 cm belmagassággal
• Kerti kút: ásott, betongyűrűs, bőséges vízhozammal, ideális öntözéshez tavasszal és nyáron
Ház és lakrészek
Az ingatlan a földhivatali nyilvántartás szerint kétlakásos, külön bejárattal. Jelenleg a lakrészek össze vannak nyitva, de igény szerint visszaállíthatók. A terhelhető, szigetelt födém lehetőséget ad tetőtér-beépítésre.
• Nagyobb lakrész:
◦ 50,5 m², kétszobás
◦ Belmagasság: 315 cm
◦ Szobák az utcafront (nyugati oldal) felé néznek
◦ Szobák egymásba nyílók, de külön bejárat kialakítható
◦ Légkondicionáló: hűtő-fűtő típusú
• Kisebb lakrész:
◦ 31,5 m², egyszobás
◦ Belmagasság: 245 cm
◦ 90-es években épült, betonfödémes
Fűtés és energiaellátás
• Fűtés és melegvíz: napkollektoros rendszer + kondenzációs gázkazán
• Kiegészítő fűtés: fatüzelésű cserépkályha a kétszobás lakrészben
• Gazdaságos üzemeltetés: gázfogyasztás havi átlagban 14.000 Ft alatt tartható
• Elektromos betáplálás: 3×16A nappali, 1×25A vezérelt (éjszakai) áram
• Internet: optikai kábel (Telekom)
Közlekedés és környezet
A ház elhelyezkedése fővárosi viszonylatban kiemelkedően jó közlekedést biztosít:
• Villamos: 42-es
• Busz: 68-as, 268-as
• Metró: M3 (Határ út, KÖKI) 10 percen belül elérhető
• Parkolás: Kispesten közterületen ingyenes
A környék csendes, családbarát, ugyanakkor minden fontos szolgáltatás - bevásárlási lehetőségek, iskola, óvoda, orvosi rendelő - rövid sétával vagy néhány perces utazással elérhető. A kertvárosi nyugalom és a fővárosi infrastruktúra ritka kombinációját kínálja ez az ingatlan.
Ez a ház ideális választás lehet családoknak, akik szeretnének nyugodt környezetben élni, de nem akarnak lemondani a főváros közelségéről és a kiváló közlekedési kapcsolatról. A kétlakásos kialakítás, a tetőtér-beépítés lehetősége és a gazdaságos fűtési rendszer hosszú távon is értékálló befektetést jelent.

A képek között látványtervek is szerepelnek.

Hirdetés feltöltve: 2025. 12. 08. Utoljára módosítva: 2025. 12. 09.

3 szobás családi házak ára Budapesten

Ebből az összehasonlításból megtudhatod, hogyan viszonyul a lakás ára a környékbeli családi házak átlagos árához. Ez nem azt jelenti, hogy ennyivel olcsóbb vagy drágább, mint amennyit a lakás ér, hanem hogy ennyivel tér el a környékbeli átlagtól.

Ennek a m² ára
XIX. kerület m² ár
Budapest m² ár
1584 e Ft
946 e Ft -67%
1119 e Ft -42%
Ennek az ára
XIX. kerület átlagár
Budapest átlagár
129.9 M Ft m Ft
96 m Ft -35%
107.3 m Ft -21%

Az ingatlan elhelyezkedése

Cím: Budapest, XIX. kerület, Jókai utca

Eladó ingatlanok a környékről

Eladó téglalakás
Eladó téglalakás

X. kerület

49.9 M Ft
1 szoba
43 m2
Eladó családi ház
Eladó családi ház

XIX. kerület

34.9 M Ft
1 szoba
38 m2
Eladó családi ház
Eladó családi ház

XIX. kerület

139.9 M Ft
5 szoba
180 m2
Eladó téglalakás
Eladó téglalakás

XIII. kerület, Újlipótváros, Pannónia

107 M Ft
2 szoba
42 m2
Eladó családi ház
Eladó családi ház

XX. kerület, Tátra téi piacnál utca

27 M Ft
1 szoba
28 m2
Eladó téglalakás
Eladó téglalakás

XVIII. kerület, Ganzkertváros

87.5 M Ft
4 szoba
76 m2
Eladó családi ház
Eladó családi ház

XIX. kerület

210 M Ft
4 szoba
400 m2
Eladó családi ház
Eladó családi ház

XIX. kerület

45 M Ft
2 szoba
80 m2
Eladó családi ház
Eladó családi ház

XIX. kerület

199.8 M Ft
5 szoba
182 m2
Eladó családi ház
Eladó családi ház

XIX. kerület

99 M Ft
5 szoba
150 m2
Eladó családi ház
Eladó családi ház

XIX. kerület

139.9 M Ft
5 szoba
180 m2
Eladó téglalakás
Eladó téglalakás

XXII. kerület, Budafok, Rózsakert utca

74.9 M Ft
1 szoba
35 m2
Eladó téglalakás
Eladó téglalakás

XVIII. kerület

87.5 M Ft
4 szoba
76 m2
Eladó családi ház
Eladó családi ház

XIX. kerület

45 M Ft
2 szoba
80 m2
Eladó családi ház
Eladó családi ház

XIX. kerület, Shopmark közeli út

101 M Ft
4 szoba
110 m2
Eladó családi ház
Eladó családi ház

XIX. kerület

34.9 M Ft
1 szoba
38 m2
Eladó ipari ingatlan
Eladó ipari ingatlan

XXII. kerület

16 M Ft
70 m2
Eladó téglalakás
Eladó téglalakás

XIII. kerület, Angyalföld

79.9 M Ft
2 szoba
55 m2
Eladó családi ház
Eladó családi ház

XIX. kerület

850 M Ft
6 szoba
360 m2
Eladó családi ház
Eladó családi ház

XXII. kerület, Budafok

185 M Ft
7 szoba
180 m2
Eladó családi ház
Eladó családi ház

XIX. kerület, Kispest

45 M Ft
2 szoba
80 m2
Eladó téglalakás
Eladó téglalakás

XVI. kerület

85 M Ft
3 szoba
67 m2
Eladó családi ház
Eladó családi ház

XIX. kerület, Kispest

84.9 M Ft
3 szoba
100 m2
Eladó téglalakás
Eladó téglalakás

X. kerület, Óhegy

49.9 M Ft
1 szoba
43 m2

Falusi CSOK ingatlanok

Eladó családi ház
Eladó családi ház

Sümegcsehi

119 M Ft
5 szoba
237 m2
Eladó családi ház
Eladó családi ház

Háromfa, Kossuth

22.4 M Ft
139 m2
Eladó családi ház
Eladó családi ház

Mályi

84.9 M Ft
4 szoba
100 m2
Eladó családi ház
Eladó családi ház

Poroszló

46 M Ft
3 szoba
110 m2
Eladó családi ház
Eladó családi ház

Doboz

11.99 M Ft
2 + 1 szoba
89 m2
Eladó családi ház
Eladó családi ház

Balatonfenyves

430 M Ft
4 szoba
274 m2
Eladó ikerház
Eladó ikerház

Balatonakali

165 M Ft
4 szoba
138 m2
Eladó családi ház
Eladó családi ház

Darnózseli

79.9 M Ft
4 szoba
104 m2