Oasis Residence

Eladó családi ház
Budapest, XIX. kerület

+ 10 kép 1/13
63 000 000 Ft63 M Ft 450 000 Ft/m2
3 + 1 szoba
140 m2
építés éve:1990

Részletes adatok

Állapot: Felújítandó
Telekméret: 250 m2
Fűtés: Gázkazán
Energetikai besorolás: Nem adta meg a hirdető

Az OTP Bank lakáshitel ajánlataFizetett hirdetés

+36 30 942
Szekeres Tünde
OTPIP I. kerület Zsolt utcai iroda

Érdekel az OTP Bank kedvezményes lakáshitel ajánlata? *

* A kérdésre „Igen” válasz bejelölése esetén, az „Üzenet küldése” gombra kattintva kijelentem, hogy az OTP Bank Nyrt. Adatkezelési tájékoztatójának tartalmát megismertem és tudomásul vettem.

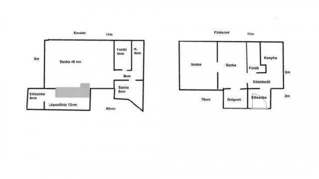
Eladó családi ház leírása

***Kizárólag Nálunk!*** Nagyszerű befektetési lehetőség és Családosok számára kiváló vétel! Két lakás, egy áráért! Budapest, XIX. kerület, Kispest legjobb, kertvárosi részén, a Nádasdy - Fő utcánál kínálunk eladásra egy kétszintes, kétgenerációs, teljeskörűen felújítandó, 140 nm alapterületű, hátsó házrészt, a hozzá tartozó, saját, 250 nm telekrésszel. Megosztási szerződés készült.
Az első szomszéd idősebb, kedves házaspár, igény szerint egyben is eladó!

Referencia szám: M306777

Hirdetés feltöltve: 2025. 11. 13. Utoljára módosítva: 2025. 11. 13.

4 szobás családi házak ára Budapesten

Ebből az összehasonlításból megtudhatod, hogyan viszonyul a lakás ára a környékbeli családi házak átlagos árához. Ez nem azt jelenti, hogy ennyivel olcsóbb vagy drágább, mint amennyit a lakás ér, hanem hogy ennyivel tér el a környékbeli átlagtól.

Ennek a m² ára
XIX. kerület m² ár
Budapest m² ár
450 e Ft
922 e Ft 51%
1023 e Ft 56%
Ennek az ára
XIX. kerület átlagár
Budapest átlagár
63 M Ft m Ft
101.9 m Ft 38%
151.5 m Ft 58%

Az ingatlan elhelyezkedése

Cím: Budapest, XIX. kerület

Eladó ingatlanok a környékről

Eladó családi ház
Eladó családi ház

XIX. kerület, Kispest

139.9 M Ft
2 szoba
170 m2
Eladó családi ház
Eladó családi ház

XIX. kerület

45 M Ft
2 szoba
80 m2
Eladó téglalakás
Eladó téglalakás

VI. kerület, Külső Terézváros, Szív utca

119.5 M Ft
3 szoba
94 m2
Eladó téglalakás
Eladó téglalakás

VII. kerület, Belső Erzsébetváros, Erzsébet körút

160 M Ft
3 szoba
88 m2
Eladó családi ház
Eladó családi ház

XIX. kerület, Shopmark közeli út

101 M Ft
4 szoba
110 m2
Eladó téglalakás
Eladó téglalakás

VIII. kerület, Palotanegyed, Rákóczi út

190 M Ft
5 szoba
121 m2
Eladó családi ház
Eladó családi ház

XIX. kerület

99 M Ft
5 szoba
150 m2
Eladó téglalakás
Eladó téglalakás

V. kerület, Belváros, Kossuth utca

79.54 M Ft
2 szoba
48 m2
Eladó téglalakás
Eladó téglalakás

VI. kerület, Külső Terézváros, Szófia utca

119.9 M Ft
4 szoba
103 m2
Eladó családi ház
Eladó családi ház

XIX. kerület

160 M Ft
6 szoba
432 m2
Eladó téglalakás
Eladó téglalakás

XI. kerület, Kelenföld, Alíz utca 6A

160 M Ft
4 szoba
72 m2
Eladó családi ház
Eladó családi ház

XIX. kerület

210 M Ft
4 szoba
400 m2
Eladó téglalakás
Eladó téglalakás

VII. kerület, Belső Erzsébetváros, Rózsa utca

170 M Ft
5 szoba
124 m2
Eladó családi ház
Eladó családi ház

XIX. kerület

34.9 M Ft
1 szoba
38 m2
Eladó téglalakás
Eladó téglalakás

I. kerület, Krisztinaváros, Kosciuszkó Tádé utca

48 M Ft
1 szoba
30 m2
Eladó családi ház
Eladó családi ház

XIX. kerület

149.9 M Ft
5 szoba
180 m2
Eladó téglalakás
Eladó téglalakás

XIII. kerület

52.9 M Ft
1 szoba
36 m2
Eladó téglalakás
Eladó téglalakás

VII. kerület, Belső Erzsébetváros, Erzsébet körút

89.9 M Ft
1 + 1 szoba
71 m2
Eladó téglalakás
Eladó téglalakás

III. kerület, Rómaifürdő, Királyok útja

148 M Ft
3 szoba
65 m2
Eladó családi ház
Eladó családi ház

XIX. kerület, Felső-Kispesten

120 M Ft
6 szoba
170 m2
Eladó családi ház
Eladó családi ház

XXII. kerület, Budafok, Baross utca

199 M Ft
6 + 1 szoba
200 m2
Eladó családi ház
Eladó családi ház

XIX. kerület

149.9 M Ft
5 szoba
180 m2
Eladó családi ház
Eladó családi ház

XIX. kerület, Kispest

84.9 M Ft
3 szoba
100 m2
Eladó téglalakás
Eladó téglalakás

III. kerület, Óbuda, Szomolnok utca

89.9 M Ft
2 + 2 szoba
96 m2

Falusi CSOK ingatlanok

Eladó családi ház
Eladó családi ház

Ságvár

54.9 M Ft
3 szoba
87 m2
Eladó családi ház
Eladó családi ház

Szeremle

18 M Ft
2 szoba
87 m2
Eladó családi ház
Eladó családi ház

Galgagyörk

69.9 M Ft
3 szoba
110 m2
Eladó családi ház
Eladó családi ház

Tápiószőlős

17 M Ft
2 szoba
60 m2
Eladó családi ház
Eladó családi ház

Adásztevel

8.9 M Ft
2 szoba
63 m2
Eladó ikerház
Eladó ikerház

Bodajk

69.9 M Ft
5 szoba
108 m2
Eladó családi ház
Eladó családi ház

Fenyőfő

79 M Ft
2 szoba
150 m2
Eladó téglalakás
Eladó téglalakás

Balatonszemes

244.5 M Ft
3 szoba
107 m2