Astora Márvány8

Eladó családi ház
Budapest, XI. kerület, Laska utca

+ 17 kép 1/20
119 000 000 Ft119 M Ft 1 133 333 Ft/m2
3 szoba
105 m2
építés éve:1980

Részletes adatok

Állapot: Újszerű
Telekméret: 1356 m2
Fűtés: Elektromos
Parkolás: Garázs
Közmű: Villany
Energetikai besorolás: Nem adta meg a hirdető

Az OTP Bank lakáshitel ajánlataFizetett hirdetés

+36 70 383
Szimeth Norbert
Balla Ingatlan - XVIII. kerület, Gyál, Üllő, Vecsés, Péteri

Érdekel az OTP Bank kedvezményes lakáshitel ajánlata? *

* A kérdésre „Igen” válasz bejelölése esetén, az „Üzenet küldése” gombra kattintva kijelentem, hogy az OTP Bank Nyrt. Adatkezelési tájékoztatójának tartalmát megismertem és tudomásul vettem.

Eladó családi ház leírása

Körpanorámás, két szintes lakóház Kamaraerdő szívében, ahol a csend és a természet valódi otthont teremt
Budapest XI. kerületének egyik legcsendesebb, átmenő forgalomtól mentes utcájában, Kamaraerdő üdülőövezetében kínálunk megvételre egy különleges hangulatú, két szintes, erkélyes lakóházat. A 1356 m²-es, déli fekvésű, parkosított kerttel rendelkező ingatlan valódi menedék a természet szerelmeseinek: gyümölcsfák, örökzöldek, virágok és barátságos szomszédok teszik teljessé az idilli környezetet.
Az ingatlan zártkerti besorolású, de lakóházként funkcionál, és minden komfortot biztosít, amit egy modern otthontól elvárhatunk.

Napfényes terek, körpanorámás felső szint
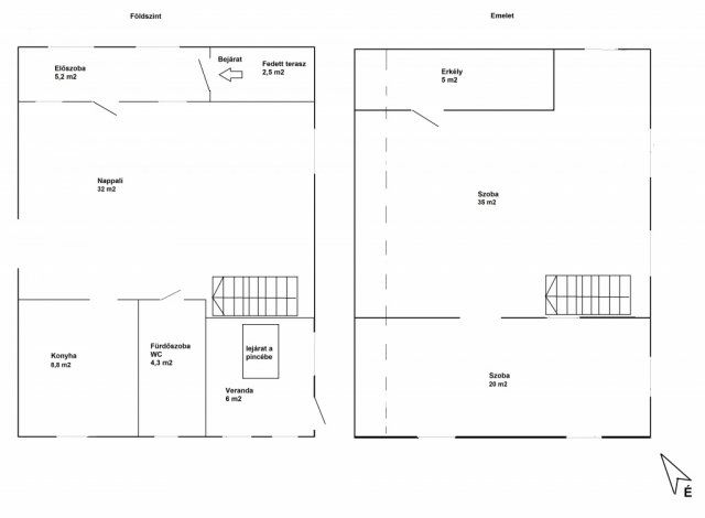
Az épület az 1980-as években épült szendvicsbeton technológiával, amely ma is korszerűnek számít. Az 1990-es években bővítették, majd 2020 és 2025 között teljes körű felújításon esett át. A 105 m²-es lakóterület két szinten oszlik meg:
• A földszinten egy 2,2 m²-es teraszon keresztül jutunk be az előszobába, ahonnan egy közel 32 m²-es nappali-étkezőbe érkezünk. Itt található a konyha és a fürdőszoba is.
• Az emeletre a nappali sarkából induló lépcső vezet. Itt egy tágas, 30 m²-es szoba és egy 20 m²-es hálószoba található. A nagyobbik szoba a ház legvilágosabb pontja, egész nap besüt a nap, és innen nyílik az 5 m²-es erkély is, ahonnan körpanoráma tárul elénk. A szoba mérete és geometriája lehetővé teszi két kisebb hálószoba kialakítását is.
A ház alatt egy 6 m²-es pince is található, amely tárolásra vagy akár borospinceként is hasznosítható.

Korszerű gépészet, alacsony fenntartási költségek
A ház 25 cm vastag szigeteléssel rendelkezik, így energetikailag rendkívül hatékony. A fűtést és hűtést jelenleg két inverteres klíma biztosítja, de a radiátorokkal kiépített központi fűtés is elő van készítve. Bár gáz közmű nincs a telken, gáztartállyal vagy palackkal is üzemeltethető a rendszer. A nappaliban egy kiváló állapotú, használaton kívüli kémény is rendelkezésre áll, így kandalló beépítése is lehetséges.
Az elektromos betáplálás 1×25A, amely minden háztartási funkcióhoz elegendő kapacitást biztosít, a villamos biztonságilag felülvizsgált, kitűnő állapotban lévő elektromos hálózat biztonságot ad az ingatlant használóknak.
A szennyvízelvezetés modernizált, a vízellátást egy 50 méter mély, iható, tiszta vizű fúrt kút biztosítja. A teljes víz- és csatornarendszer önellátásra és fenntarthatóságra lett kialakítva.
Rezsiköltség: Az elektromos áram havi átlagban 19.000 Ft, amely minden funkciót (fűtés, hűtés, főzés, világítás) kiszolgál. Internet: T-Home. Egyéb rezsiköltség a szemétszállítás 2100 Ft/hó költsége, ezeken kívül más nincs.

Melléképületek és kert
• 25 m²-es garázs elektromos árammal, akár két autó számára is elegendő
• 28 m²-es melléképület víz-, csatorna- és áramcsatlakozással, zuhanyzós fürdőszobával és WC-vel, vendégháznak, műhelynek is ideális
• 2 db zárható tároló a kertben
A kert mérete és kialakítása lehetőséget ad saját termesztésre, pihenésre, vagy akár kisállattartásra is.

Természetközeli, mégis jól kapcsolódó
Az ingatlan elhelyezkedése ideális: 5 perc sétára az erdő, ahol túraösvények, madárdal és friss levegő vár. Kelenföld autóval 6–7 perc, busszal 10–13 perc alatt elérhető. A balatoni és régi 7-es út 3 perc autóval, gyalogosan 7–8 perc kényelmes séta. Tömegközlekedés: BKV (101E, 101B, 150, 150B, 141, 58, 158, 941 éjszakai), Volánbusz (722, 727, 710), a megálló kb. 600 méterre található.

Ez az ingatlan azoknak szól, akik nem csupán házat keresnek, hanem életminőséget. Egy helyet, ahol a természet közelsége, a csend és a tágas tér valódi értéket képvisel. A ház kizárólag készpénzes vevők számára elérhető, ha Ön az új tulajdonos, örömmel mutatjuk meg, milyen érzés lehet itt élni.

A képek között látványtervek is láthatók!

Hirdetés feltöltve: 2025. 10. 24. Utoljára módosítva: 2025. 12. 31.

3 szobás családi házak ára Budapesten

Ebből az összehasonlításból megtudhatod, hogyan viszonyul a lakás ára a környékbeli családi házak átlagos árához. Ez nem azt jelenti, hogy ennyivel olcsóbb vagy drágább, mint amennyit a lakás ér, hanem hogy ennyivel tér el a környékbeli átlagtól.

Ennek a m² ára
XI. kerület m² ár
Budapest m² ár
1133 e Ft
2571 e Ft 56%
1123 e Ft -1%
Ennek az ára
XI. kerület átlagár
Budapest átlagár
119 M Ft m Ft
285.1 m Ft 58%
107.6 m Ft -11%

Az ingatlan elhelyezkedése

Cím: Budapest, XI. kerület, Laska utca

Eladó ingatlanok a környékről

Eladó családi ház
Eladó családi ház

XI. kerület

490 M Ft
16 szoba
520 m2
Eladó családi ház
Eladó családi ház

XI. kerület

146 M Ft
4 szoba
135 m2
Eladó családi ház
Eladó családi ház

XI. kerület, Lágymányos

990 M Ft
3 szoba
120 m2
Eladó családi ház
Eladó családi ház

XI. kerület, Sashegy, Dayka Gábor utca

370 M Ft
5 + 1 szoba
352 m2
Eladó családi ház
Eladó családi ház

XI. kerület

320 M Ft
7 szoba
152 m2
Eladó családi ház
Eladó családi ház

XI. kerület

370 M Ft
5 + 1 szoba
352 m2
Eladó családi ház
Eladó családi ház

XI. kerület

429 M Ft
8 szoba
440 m2
Eladó családi ház
Eladó családi ház

XI. kerület

370 M Ft
7 szoba
352 m2
Eladó családi ház
Eladó családi ház

XI. kerület, Kelenföld

389 M Ft
7 szoba
307 m2
Eladó családi ház
Eladó családi ház

XI. kerület

490 M Ft
16 szoba
520 m2
Eladó téglalakás
Eladó téglalakás

XX. kerület

39 M Ft
2 szoba
49 m2
Eladó téglalakás
Eladó téglalakás

XIV. kerület, Kiszugló, Kövér Lajos utca

168 M Ft
3 + 1 szoba
84 m2
Eladó családi ház
Eladó családi ház

XI. kerület

429 M Ft
7 szoba
400 m2
Eladó téglalakás
Eladó téglalakás

VI. kerület, Külső Terézváros, Szív utca

119.5 M Ft
3 szoba
94 m2
Eladó családi ház
Eladó családi ház

XI. kerület, Madárhegy

385 M Ft
4 + 1 szoba
227 m2
Eladó téglalakás
Eladó téglalakás

XVIII. kerület

58 M Ft
2 szoba
54 m2
Eladó családi ház
Eladó családi ház

XI. kerület

490 M Ft
16 szoba
520 m2
Eladó családi ház
Eladó családi ház

XI. kerület

146 M Ft
4 szoba
135 m2
Eladó téglalakás
Eladó téglalakás

VI. kerület, Külső Terézváros, Rippl Rónai utca

75.9 M Ft
2 szoba
62 m2
Eladó téglalakás
Eladó téglalakás

VII. kerület, Belső Erzsébetváros, Rózsa utca

170 M Ft
5 szoba
124 m2
Eladó téglalakás
Eladó téglalakás

XIV. kerület

81.9 M Ft
1 szoba
32 m2
Eladó téglalakás
Eladó téglalakás

III. kerület, Óbuda, Szomolnok utca

89.9 M Ft
2 + 2 szoba
96 m2
Eladó családi ház
Eladó családi ház

XI. kerület, Nádorkert

490 M Ft
25 szoba
520 m2
Eladó családi ház
Eladó családi ház

XI. kerület, Kelenföld

389 M Ft
7 szoba
307 m2

Falusi CSOK ingatlanok

Eladó családi ház
Eladó családi ház

Győrság

475 M Ft
13 szoba
1115 m2
Eladó családi ház
Eladó családi ház

Bakonyszentkirály

99.99 M Ft
5 szoba
126 m2
Eladó családi ház
Eladó családi ház

Hunya

10.99 M Ft
3 szoba
80 m2
Eladó családi ház
Eladó családi ház

Tápiógyörgye

44.9 M Ft
3 + 1 szoba
120 m2
Eladó családi ház
Eladó családi ház

Tokodaltáró

95 M Ft
7 szoba
220 m2
Eladó családi ház
Eladó családi ház

Tarján

31.5 M Ft
3 szoba
120 m2
Eladó családi ház
Eladó családi ház

Fajsz

25 M Ft
3 szoba
95 m2
Eladó ikerház
Eladó ikerház

Seregélyes

39.9 M Ft
4 szoba
150 m2