NapForrás 20 - Buda

Eladó családi ház
Budapest, X. kerület

+ 7 kép 1/10
195 000 000 Ft195 M Ft 1 167 665 Ft/m2
3 + 1 szoba
167 m²
építés éve:2026

Részletes adatok

Telekméret: 409 m2
Fűtés: Egyéb
Energetikai besorolás: A++

Az OTP Bank lakáshitel ajánlataFizetett hirdetés

+36 30 428
Lengyel József
referens

Érdekel az OTP Bank kedvezményes lakáshitel ajánlata? *

* A kérdésre „Igen” válasz bejelölése esetén, az „Üzenet küldése” gombra kattintva kijelentem, hogy az OTP Bank Nyrt. Adatkezelési tájékoztatójának tartalmát megismertem és tudomásul vettem.

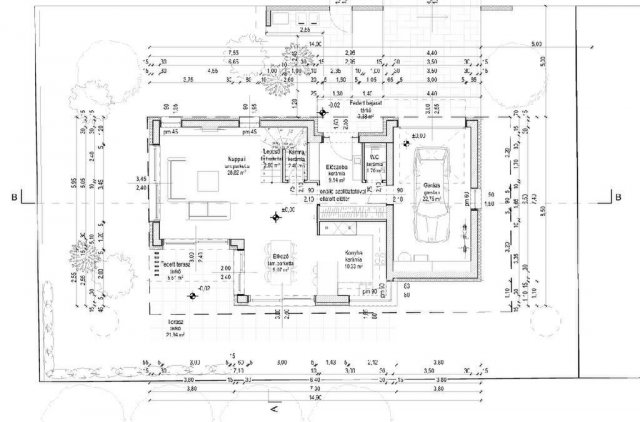
Eladó családi ház leírása

Eladó Kőbányán a 10. kerületben, új építésű , 167 nm alapterületű családi ház. A ház megfelel a családbarát kedvezményeknek és a kedvező hitel lehetőségeknek. A házhoz garázs is készül, kertkapcsolattal és terasszal. A ház teljes mértékben családbarát kialakítású, ahogy az alaprajzokból is kitűnik. Az alsó szinten amerikai konyhás, tágas terű nappalival és étkezővel a család komfort érzetének megfelelően. A felső szinten 2 gyerekszoba és külön hálószoba a családi nyugalom érdekében. Az ingatlan az egyik legmodernebb hőszivattyús rendszerrel épül a gazdaságos energia ellátás céljából. A házban a beépített bútor külön megbeszélés kérdése. A nappaliban lesz fan-coil és az emeleten mennyezet hűtés-fűtés kerül kialakításra. Padlófűtés az egész házban lesz mindenhol. A garázs temperált fűtést kap, de a belső falon lesz 5 cm szigetelés. Szellőztető rendszer csak a garázs és az előszobában kerül kiépítésre, nem kap az ingatlan külön légtechnikát. A kivitelező 2026. év végére tervezi befejezni az egész ingatlan átadását. A családi ház a valóságban úgy fog kinézni, mint a látványterveken. A részletes műszaki és egyéb feltételeket a kivitelező a helyszíni megtekintés során részletesen elmondja. Jöjjön el és szeressen bele ebbe a családbarát ingatlanba! Az OTP Ingatlanpont teljes körű ügyintézéssel áll az eladók és a vevők rendelkezésére. A kínálatunkból választott ingatlan finanszírozásához kedvezményes hitelkonstrukciókat kínálunk. További információkért keressen bizalommal!

Referencia szám: M325481

Hirdetés feltöltve: 2026. 04. 02. Utoljára módosítva: 2026. 04. 03.

4 szobás családi házak ára Budapesten

Ebből az összehasonlításból megtudhatod, hogyan viszonyul a lakás ára a környékbeli családi házak átlagos árához. Ez nem azt jelenti, hogy ennyivel olcsóbb vagy drágább, mint amennyit a lakás ér, hanem hogy ennyivel tér el a környékbeli átlagtól.

Ennek a m² ára
X. kerület m² ár
Budapest m² ár
1168 e Ft
1191 e Ft 2%
1086 e Ft -8%
Ennek az ára
X. kerület átlagár
Budapest átlagár
195 M Ft m Ft
146.7 m Ft -33%
152.7 m Ft -28%

Az ingatlan elhelyezkedése

Cím: Budapest, X. kerület

Eladó ingatlanok a környékről

X. kerület
Eladó családi ház

Budapest, X. kerület

265 M Ft
7 szoba
198 m²
X. kerület
Eladó családi ház

Budapest, X. kerület

265 M Ft
7 szoba
198 m²
X. kerület
Eladó családi ház

Budapest, X. kerület

145 M Ft
1 + 2 szoba
74 m²
XVIII. kerület
Eladó családi ház

Budapest, XVIII. kerület

84.9 M Ft
3 szoba
64 m²
X. kerület
Eladó családi ház

Budapest, X. kerület

249 M Ft
6 + 1 szoba
186 m²
XVIII. kerület
Eladó családi ház

Budapest, XVIII. kerület

89.9 M Ft
3 szoba
78 m²
X. kerület
Eladó családi ház

Budapest, X. kerület

480 M Ft
4 szoba
180 m²
X. kerület, Felsőrákos, Dömsödi utca
Eladó családi ház

Budapest, X. kerület

150 M Ft
2 szoba
150 m²
XVIII. kerület
Eladó családi ház

Budapest, XVIII. kerület

199 M Ft
4 szoba
186 m²
XVIII. kerület
Eladó ikerház

Budapest, XVIII. kerület

124.9 M Ft
4 szoba
180 m²
X. kerület
Eladó családi ház

Budapest, X. kerület

170 M Ft
4 szoba
175 m²
XVI. kerület
Eladó panellakás

Budapest, XVI. kerület

71 M Ft
2 szoba
55 m²
X. kerület
Eladó családi ház

Budapest, X. kerület

265 M Ft
7 szoba
160 m²
XVI. kerület
Eladó családi ház

Budapest, XVI. kerület

117.999 M Ft
4 szoba
140 m²
XIII. kerület
Eladó téglalakás

Budapest, XIII. kerület

96.15 M Ft
2 szoba
45 m²
X. kerület, Gépmadár utca
Eladó panellakás

Budapest, X. kerület

58.6 M Ft
1 + 1 szoba
35 m²
XVII. kerület, Rákoskeresztúr, Köröstói utca
Eladó téglalakás

Budapest, XVII. kerület

92 M Ft
3 szoba
76 m²
XV. kerület
Eladó panellakás

Budapest, XV. kerület

72.3 M Ft
3 szoba
64 m²
X. kerület, Újhegy, Mádi utca
Eladó családi ház

Budapest, X. kerület

265 M Ft
7 szoba
198 m²
XVII. kerület
Eladó családi ház

Budapest, XVII. kerület

69.9 M Ft
4 szoba
100 m²
XI. kerület, Lágymányos, Bartók Béla út
Eladó panellakás

Budapest, XI. kerület

84.9 M Ft
2 szoba
59 m²
XVII. kerület
Eladó családi ház

Budapest, XVII. kerület

73.9 M Ft
3 szoba
110 m²
X. kerület
Eladó családi ház

Budapest, X. kerület

249 M Ft
6 + 1 szoba
186 m²
X. kerület
Eladó családi ház

Budapest, X. kerület

149.9 M Ft
5 szoba
119 m²

Falusi CSOK ingatlanok

Ceglédbercel
Eladó családi ház

Ceglédbercel

79.9 M Ft
5 szoba
140 m²
Szarvaskő
Eladó családi ház

Szarvaskő

49.5 M Ft
5 szoba
160 m²
Kocsér
Eladó családi ház

Kocsér

17.9 M Ft
1 + 2 szoba
73 m²
Nagykarácsony
Eladó családi ház

Nagykarácsony

34.9 M Ft
3 szoba
112 m²
Vásárosdombó
Eladó családi ház

Vásárosdombó

14.99 M Ft
2 szoba
69 m²
Ceglédbercel
Eladó családi ház

Ceglédbercel

79.9 M Ft
5 szoba
140 m²
Gyöngyössolymos
Eladó családi ház

Gyöngyössolymos

57.99 M Ft
4 szoba
160 m²
Nemesszentandrás
Eladó családi ház

Nemesszentandrás

25 M Ft
2 szoba
92 m²