City Pearl

Eladó családi ház
Budapest, X. kerület

+ 9 kép 1/12
134 900 000 Ft134.9 M Ft 1 105 738 Ft/m2
4 szoba
122 m²
építés éve:2026

Részletes adatok

Telekméret: 205 m2
Fűtés: Egyéb
Energetikai besorolás: A

Az OTP Bank lakáshitel ajánlataFizetett hirdetés

+36 1 690
Zsebő Miklós
referens

Érdekel az OTP Bank kedvezményes lakáshitel ajánlata? *

* A kérdésre „Igen” válasz bejelölése esetén, az „Üzenet küldése” gombra kattintva kijelentem, hogy az OTP Bank Nyrt. Adatkezelési tájékoztatójának tartalmát megismertem és tudomásul vettem.

Eladó családi ház leírása

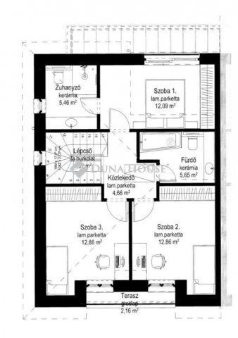
Modern, kétszintes újépítésű ikerház! Budapest X. kerület egyik legnyugodtabb területén, egy csendes mellékutcában, gyönyörű és minőségi családi otthon épül!Az ingatlan a mai kor műszaki elvárásai szerint kerül felépítésre. Prémium minőségű gépészet és kiváló minőségű anyagok felhasználásával. A telek adta lehetőségek a leg optimálisabban került kihasználásra, az ikerház felépítésére. Belső terei megtervezésekor első számú szempont volt a XXI. századi modern kialakítás, a kényelmes és egyben praktikus tér elrendezés.Az ingatlanhoz tartozik egy 231 m2-es kert, amely tökéletes egy nagyobb család számára is. A kert privát és nem látni be rá, megfelelő intimitást nyújt.A csendes elhelyezkedés egyben egy remek infrastruktúrát jelent. A környéken minden megtalálható amire az embernek szüksége lehet, illetve a belváros is rendkívül gyorsan megközelíthető, autóval, és tömegközlekedéssel is.A ház helységei két szinten oszlanak meg, a hasznos alapterület 122 m2.Az otthon szíve a, közel 33 m2-es amerikai konyhás nappali, ami terasz kapcsolatos, ezen a szinten még zuhanyzó+wc, háztartási helyiség kerül kialakításra.Tartozik az ingatlanhoz egy fedett garázs is, ahova bőven be lehet parkolni egy nagyméretű autóval is, illetve a holmik tárolására is tökéletes.A felső szinten további 3 db teljes értékű szoba várja új tulajdonosait, a lakók kényelmét még két db fürdőszoba szolgálja.A vételár tartalmazza:- beépített gépesített konyabútort,- a teljes kertépítést,- a beépített gardróbszekrényeket.MŰSZAKI TARTALOM:- Főfalak: 30 cm POROTHERM 30 N+F vázkerámia falazóblokk falazat ragasztva,- Válaszfalak: 10 cm vtg. kerámia válaszfallapból, speciális ragasztóval, - Koszorúk: monolit vasbeton szerkezet, külső oldalán 5 cm plusz kiegészítő hőszigeteléssel,- Födém: monolit vasbeton födém készül, statikai méretezés szerint, emelet felett fa fedélszék ,- Tető: hagyományos ácsszerkezetű magastető készül 25 fokos hajlásszöggel, dobozolt eresz kialakítással, Terrán Zenit Max Carbon szürke színben cserépfedéssel.- Műanyag nyílászárók fenyő színben, 3 rétegű hőszigetelő üvegezéssel és több pontonzáródó biztonsági bejárati ajtóval.- Burkolatok: hálószobákban laminált parketta melegburkolat, vizes helyiségeben kerámia-, és csempeburkolat készül. Kültéren a gépkocsi behajtó és járdák térkő burkolatúak.- Homlokzati hőszigetelés expandált polisztirol hőszigetelő lemez 15 cm vtg-ban- Lábazati hőszigetelés extrudált polisztirol hőszigetelő lemez 12 cm vtg-ban- Koszorú külső hőszigetelés expandált polisztirol hőszigetelő lemez 5 cm vtg-ban- Hőszigetelés padlóban expandált polisztirol hőszigetelő lemez 10 cm vtg-ban- Födém feletti hőszigetelés EPS hőszigetelés, 20 cm vtg-ban,- hőszivattyús fűtés, mennyezeti fűtés, hútés.EXTRÁK:- OKOS RENDSZER,- elektromos redőnyök,- kamera és riasztó rendszer kiépítés,- videó kaputelefon,- elektromos kapu,- öntöző rendszer,- elektromos autótöltő kiépítés,- Wpc kerítés,- 3 rétegű üvegek,- rejtett világítások,- udvar világítások,- légtechnika.Teljes átláthatóság az építkezés során digitálisan, kényelmesen, biztonságosan!Az építkezés nálunk nem csak szakmai precizitásról szól, hanem valódi átláthatóságról is. A PlanRadar digitális projektkövető rendszerének köszönhetően Ön, mint leendő tulajdonos: Valós időben nyomon követheti az építkezés minden lépését akár mobilról is. Kéthetente részletes jelentést kap az aktuális állapotról, fotókkal, dokumentumokkal. A projekt végén digitálisan megkapja az összes hivatalos dokumentumot, beleértve a garanciákat, tervrajzokat, átadási jegyzőkönyveket mindezt egyetlen, biztonságos platformon.FINANSZÍROZÁS: Hitelre megvásárolható, vevőink részére díjmentes hitel közvetítés, minden magyarországi bankból. Állami támogatások felvehetőek rá!Átadás: 2026. III. NEGYEDÉVNe hagyja ki ezt a páratlan lehetőséget! Egy ilyen prémium ingatlan ritkán kerül piacra, és most Ön előtt áll a lehetőség, hogy a város egyik legvonzóbb helyén éljen. Tökéletes választás a modern, kényelmes és biztonságos életstílust keresők számára!Várom megtisztelő hívását a hét minden napján!

Referencia szám: HZ085582-ZE

Hirdetés feltöltve: 2026. 04. 01. Utoljára módosítva: 2026. 05. 14.

4 szobás családi házak ára Budapesten

Ebből az összehasonlításból megtudhatod, hogyan viszonyul a lakás ára a környékbeli családi házak átlagos árához. Ez nem azt jelenti, hogy ennyivel olcsóbb vagy drágább, mint amennyit a lakás ér, hanem hogy ennyivel tér el a környékbeli átlagtól.

Ennek a m² ára
X. kerület m² ár
Budapest m² ár
1106 e Ft
1108 e Ft 0%
1069 e Ft -3%
Ennek az ára
X. kerület átlagár
Budapest átlagár
134.9 M Ft m Ft
140.4 m Ft 4%
148.4 m Ft 9%

Az ingatlan elhelyezkedése

Cím: Budapest, X. kerület

Eladó ingatlanok a környékről

X. kerület, Újhegy, Mádi utca
Eladó családi ház

Budapest, X. kerület

265 M Ft
7 szoba
198 m²
XVII. kerület
Eladó családi ház

Budapest, XVII. kerület

210 M Ft
6 szoba
197 m²
XVII. kerület
Eladó családi ház

Budapest, XVII. kerület

129 M Ft
6 szoba
140 m²
XIII. kerület
Eladó téglalakás

Budapest, XIII. kerület

96.9 M Ft
3 szoba
54 m²
XI. kerület
Eladó téglalakás

Budapest, XI. kerület

70 M Ft
2 szoba
37 m²
XVII. kerület
Eladó családi ház

Budapest, XVII. kerület

148 M Ft
4 szoba
186 m²
X. kerület
Eladó családi ház

Budapest, X. kerület

92 M Ft
5 szoba
52 m²
X. kerület
Eladó családi ház

Budapest, X. kerület

170 M Ft
4 szoba
175 m²
X. kerület
Eladó családi ház

Budapest, X. kerület

394.99 M Ft
11 szoba
400 m²
XXII. kerület
Eladó családi ház

Budapest, XXII. kerület

180 M Ft
8 szoba
230 m²
X. kerület
Eladó családi ház

Budapest, X. kerület

265 M Ft
7 szoba
198 m²
X. kerület
Eladó családi ház

Budapest, X. kerület

170 M Ft
4 szoba
175 m²
X. kerület
Eladó családi ház

Budapest, X. kerület

134.9 M Ft
4 szoba
122 m²
XVII. kerület
Eladó családi ház

Budapest, XVII. kerület

139.9 M Ft
6 szoba
197 m²
X. kerület
Eladó családi ház

Budapest, X. kerület

394.99 M Ft
11 szoba
400 m²
X. kerület
Eladó családi ház

Budapest, X. kerület

480 M Ft
4 szoba
180 m²
XVIII. kerület
Eladó családi ház

Budapest, XVIII. kerület

240 M Ft
5 szoba
205 m²
X. kerület
Eladó családi ház

Budapest, X. kerület

265 M Ft
7 szoba
160 m²
VIII. kerület
Eladó téglalakás

Budapest, VIII. kerület

79.9 M Ft
3 szoba
73 m²
XVIII. kerület
Eladó családi ház

Budapest, XVIII. kerület

194 M Ft
5 szoba
170 m²
XVIII. kerület
Eladó családi ház

Budapest, XVIII. kerület

153 M Ft
4 szoba
140 m²
XVII. kerület
Eladó családi ház

Budapest, XVII. kerület

199 M Ft
6 szoba
178 m²
XVII. kerület
Eladó családi ház

Budapest, XVII. kerület

264.99 M Ft
5 szoba
211 m²
X. kerület
Eladó családi ház

Budapest, X. kerület

129.9 M Ft
4 szoba
122 m²

Falusi CSOK ingatlanok

Sződ
Eladó családi ház

Sződ

102.9 M Ft
4 szoba
92 m²
Kánya
Eladó családi ház

Kánya

5.5 M Ft
3 szoba
70 m²
Hahót
Eladó családi ház

Hahót

48 M Ft
4 + 1 szoba
110 m²
Bakonycsernye
Eladó családi ház

Bakonycsernye

39 M Ft
3 szoba
350 m²
Hegyeshalom, Margaréta utca 12
Eladó téglalakás

Hegyeshalom

46.91 M Ft
2 szoba
43 m²
Vértesboglár, Dózsa utca
Eladó családi ház

Vértesboglár

99 M Ft
4 szoba
110 m²
Balatonszemes, Ady E. utca 6
Eladó téglalakás

Balatonszemes

108.9 M Ft
2 + 1 szoba
63 m²
Karád, Kodály utca
Eladó családi ház

Karád

24.5 M Ft
3 szoba
75 m²