NapForrás 20 - Buda

Eladó családi ház
Budapest, X. kerület

+ 9 kép 1/12
134 900 000 Ft134.9 M Ft 1 105 738 Ft/m2
4 szoba
122 m²
építés éve:2026

Részletes adatok

Telekméret: 205 m2
Fűtés: Egyéb
Energetikai besorolás: Nem adta meg a hirdető

Az OTP Bank lakáshitel ajánlataFizetett hirdetés

+36 70 421
Zámbó Beatrix
referens

Érdekel az OTP Bank kedvezményes lakáshitel ajánlata? *

* A kérdésre „Igen” válasz bejelölése esetén, az „Üzenet küldése” gombra kattintva kijelentem, hogy az OTP Bank Nyrt. Adatkezelési tájékoztatójának tartalmát megismertem és tudomásul vettem.

Eladó családi ház leírása

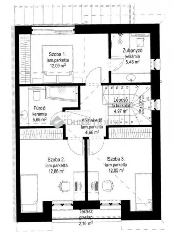
Modern, kétszintes újépítésű ikerház! Budapest X. kerület egyik legnyugodtabb területén, egy csendes mellékutcában, gyönyörű és minőségi családi otthon épül!Az ingatlan a mai kor műszaki elvárásai szerint kerül felépítésre. Prémium minőségű gépészet és kiváló minőségű anyagok felhasználásával. A telek adta lehetőségek a leg optimálisabban került kihasználásra, az ikerház felépítésére. Belső terei megtervezésekor első számú szempont volt a XXI. századi modern kialakítás, a kényelmes és egyben praktikus tér elrendezés.Az ingatlanhoz tartozik egy 231 m2-es kert, amely tökéletes egy nagyobb család számára is. A kert privát és nem látni be rá, megfelelő intimitást nyújt.A csendes elhelyezkedés egyben egy remek infrastruktúrát jelent. A környéken minden megtalálható amire az embernek szüksége lehet, illetve a belváros is rendkívül gyorsan megközelíthető, autóval, és tömegközlekedéssel is.A ház helységei két szinten oszlanak meg, a hasznos alapterület 122 m2.Az otthon szíve a, közel 33 m2-es amerikai konyhás nappali, ami terasz kapcsolatos, ezen a szinten még zuhanyzó+wc, háztartási helyiség kerül kialakításra.Tartozik az ingatlanhoz egy fedett garázs is, ahova bőven be lehet parkolni egy nagyméretű autóval is, illetve a holmik tárolására is tökéletes.A felső szinten további 3 db teljes értékű szoba várja új tulajdonosait, a lakók kényelmét még két db fürdőszoba szolgálja.A vételár tartalmazza:- beépített gépesített konyabútort,- a teljes kertépítést,- a beépített gardróbszekrényeket.MŰSZAKI TARTALOM:- Főfalak: 30 cm POROTHERM 30 N+F vázkerámia falazóblokk falazat ragasztva,- Válaszfalak: 10 cm vtg. kerámia válaszfallapból, speciális ragasztóval, - Koszorúk: monolit vasbeton szerkezet, külső oldalán 5 cm plusz kiegészítő hőszigeteléssel,- Födém: monolit vasbeton födém készül, statikai méretezés szerint, emelet felett fa fedélszék ,- Tető: hagyományos ácsszerkezetű magastető készül 25 fokos hajlásszöggel, dobozolt eresz kialakítással, Terrán Zenit Max Carbon szürke színben cserépfedéssel.- Műanyag nyílászárók fenyő színben, 3 rétegű hőszigetelő üvegezéssel és több pontonzáródó biztonsági bejárati ajtóval.- Burkolatok: hálószobákban laminált parketta melegburkolat, vizes helyiségeben kerámia-, és csempeburkolat készül. Kültéren a gépkocsi behajtó és járdák térkő burkolatúak.- Homlokzati hőszigetelés expandált polisztirol hőszigetelő lemez 15 cm vtg-ban- Lábazati hőszigetelés extrudált polisztirol hőszigetelő lemez 12 cm vtg-ban- Koszorú külső hőszigetelés expandált polisztirol hőszigetelő lemez 5 cm vtg-ban- Hőszigetelés padlóban expandált polisztirol hőszigetelő lemez 10 cm vtg-ban- Födém feletti hőszigetelés EPS hőszigetelés, 20 cm vtg-ban,- hőszivattyús fűtés, mennyezeti fűtés, hútés.EXTRÁK:- OKOS RENDSZER,- elektromos redőnyök,- kamera és riasztó rendszer kiépítés,- videó kaputelefon,- elektromos kapu,- öntöző rendszer,- elektromos autótöltő kiépítés,- Wpc kerítés,- 3 rétegű üvegek,- rejtett világítások,- udvar világítások,- légtechnika.Teljes átláthatóság az építkezés során digitálisan, kényelmesen, biztonságosan!Az építkezés nálunk nem csak szakmai precizitásról szól, hanem valódi átláthatóságról is. A PlanRadar digitális projektkövető rendszerének köszönhetően Ön, mint leendő tulajdonos: Valós időben nyomon követheti az építkezés minden lépését akár mobilról is. Kéthetente részletes jelentést kap az aktuális állapotról, fotókkal, dokumentumokkal. A projekt végén digitálisan megkapja az összes hivatalos dokumentumot, beleértve a garanciákat, tervrajzokat, átadási jegyzőkönyveket mindezt egyetlen, biztonságos platformon.FINANSZÍROZÁS: Hitelre megvásárolható, vevőink részére díjmentes hitel közvetítés, minden magyarországi bankból. Állami támogatások felvehetőek rá!Átadás: 2026. III. NEGYEDÉVNe hagyja ki ezt a páratlan lehetőséget! Egy ilyen prémium ingatlan ritkán kerül piacra, és most Ön előtt áll a lehetőség, hogy a város egyik legvonzóbb helyén éljen. Tökéletes választás a modern, kényelmes és biztonságos életstílust keresők számára!Várom megtisztelő hívását a hét minden napján!

Referencia szám: HZ086270-ZE

Hirdetés feltöltve: 2026. 04. 01. Utoljára módosítva: 2026. 04. 23.

4 szobás családi házak ára Budapesten

Ebből az összehasonlításból megtudhatod, hogyan viszonyul a lakás ára a környékbeli családi házak átlagos árához. Ez nem azt jelenti, hogy ennyivel olcsóbb vagy drágább, mint amennyit a lakás ér, hanem hogy ennyivel tér el a környékbeli átlagtól.

Ennek a m² ára
X. kerület m² ár
Budapest m² ár
1106 e Ft
1112 e Ft 1%
1065 e Ft -4%
Ennek az ára
X. kerület átlagár
Budapest átlagár
134.9 M Ft m Ft
141.8 m Ft 5%
149.1 m Ft 10%

Az ingatlan elhelyezkedése

Cím: Budapest, X. kerület

Eladó ingatlanok a környékről

X. kerület
Eladó családi ház

Budapest, X. kerület

149.9 M Ft
5 szoba
119 m²
X. kerület
Eladó családi ház

Budapest, X. kerület

149.9 M Ft
5 szoba
119 m²
X. kerület
Eladó családi ház

Budapest, X. kerület

170 M Ft
4 szoba
175 m²
VII. kerület
Eladó téglalakás

Budapest, VII. kerület

57.9 M Ft
1 szoba
29 m²
X. kerület
Eladó családi ház

Budapest, X. kerület

145 M Ft
1 + 2 szoba
74 m²
X. kerület
Eladó családi ház

Budapest, X. kerület

265 M Ft
7 szoba
160 m²
XV. kerület
Eladó panellakás

Budapest, XV. kerület

63.5 M Ft
2 szoba
53 m²
X. kerület
Eladó családi ház

Budapest, X. kerület

480 M Ft
4 szoba
180 m²
XIII. kerület, Angyalföld, Dévai utca Lőportár 17
Eladó téglalakás

Budapest, XIII. kerület

71.205 M Ft
1 szoba
32 m²
X. kerület
Eladó családi ház

Budapest, X. kerület

239 M Ft
7 szoba
245 m²
XIII. kerület, Angyalföld, Dévai utca Lőportár 17
Eladó téglalakás

Budapest, XIII. kerület

85.811 M Ft
2 szoba
42 m²
XIII. kerület, Angyalföld, Dévai utca Lőportár 17
Eladó téglalakás

Budapest, XIII. kerület

89.84 M Ft
2 szoba
43 m²
XIII. kerület, Angyalföld, Dévai utca Lőportár 17
Eladó téglalakás

Budapest, XIII. kerület

88.836 M Ft
2 szoba
43 m²
XII. kerület
Eladó téglalakás

Budapest, XII. kerület

70 M Ft
2 szoba
32 m²
XVIII. kerület
Eladó panellakás

Budapest, XVIII. kerület

57.5 M Ft
3 szoba
59 m²
XIII. kerület, Angyalföld, Dévai utca Lőportár 17
Eladó téglalakás

Budapest, XIII. kerület

69.483 M Ft
1 szoba
32 m²
XIII. kerület, Angyalföld, Dévai utca Lőportár 17
Eladó téglalakás

Budapest, XIII. kerület

88.861 M Ft
2 szoba
42 m²
XIII. kerület, Angyalföld, Dévai utca Lőportár 17
Eladó téglalakás

Budapest, XIII. kerület

87.287 M Ft
2 szoba
42 m²
X. kerület, Újhegy, Mádi utca
Eladó családi ház

Budapest, X. kerület

265 M Ft
7 szoba
198 m²
X. kerület
Eladó családi ház

Budapest, X. kerület

265 M Ft
7 szoba
198 m²
X. kerület
Eladó családi ház

Budapest, X. kerület

129.9 M Ft
3 szoba
170 m²
XIII. kerület, Angyalföld, Dévai utca Lőportár 17
Eladó téglalakás

Budapest, XIII. kerület

83.73 M Ft
2 szoba
40 m²
X. kerület
Eladó családi ház

Budapest, X. kerület

334.99 M Ft
11 szoba
400 m²
X. kerület
Eladó családi ház

Budapest, X. kerület

145 M Ft
1 + 2 szoba
74 m²

Falusi CSOK ingatlanok

Nyírtura
Eladó családi ház

Nyírtura

99 M Ft
4 szoba
280 m²
Mezőkeresztes
Eladó ikerház

Mezőkeresztes

13.5 M Ft
2 + 1 szoba
70 m²
Sződ
Eladó családi ház

Sződ

102.9 M Ft
4 szoba
92 m²
Nagyszénás, Bajcsy-Zsilinszky utca 60
Eladó családi ház

Nagyszénás

11.7 M Ft
1 + 1 szoba
128 m²
Mályi
Eladó családi ház

Mályi

105 M Ft
6 szoba
267 m²
Badacsonytördemic
Eladó családi ház

Badacsonytördemic

90 M Ft
3 szoba
130 m²
Galgamácsa
Eladó családi ház

Galgamácsa

79.9 M Ft
4 szoba
110 m²
Szalaszend
Eladó családi ház

Szalaszend

21.9 M Ft
2257 m²
70 m²