Seven Pearl

Eladó családi ház
Budapest, X. kerület

+ 7 kép 1/10
190 000 000 Ft190 M Ft 1 137 725 Ft/m2
3 + 1 szoba
167 m²
építés éve:2026

Részletes adatok

Telekméret: 409 m2
Fűtés: Egyéb
Energetikai besorolás: A+++

Az OTP Bank lakáshitel ajánlataFizetett hirdetés

+36 30 321
Shir Khani Nasser
Otp Ingatlanpont Falk Miksa

Érdekel az OTP Bank kedvezményes lakáshitel ajánlata? *

* A kérdésre „Igen” válasz bejelölése esetén, az „Üzenet küldése” gombra kattintva kijelentem, hogy az OTP Bank Nyrt. Adatkezelési tájékoztatójának tartalmát megismertem és tudomásul vettem.

Eladó családi ház leírása

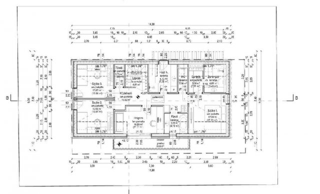
Eladó Kőbányán a 10. kerületben, új építésű , 167 nm alapterületű családi ház. A ház megfelel a családbarát kedvezményeknek és a kedvező hitel lehetőségeknek. A házhoz garázs is készül, kertkapcsolattal és terasszal. A ház teljes mértékben családbarát kialakítású, ahogy az alaprajzokból is kitűnik. Az alsó szinten amerikai konyhás, tágas terű nappalival és étkezővel a család komfort érzetének megfelelően. A felső szinten 2 gyerekszoba és külön hálószoba a családi nyugalom érdekében. Az ingatlan az egyik legmodernebb hőszivattyús rendszerrel épül a gazdaságos energia ellátás céljából. A házban a beépített bútor külön megbeszélés kérdése. A nappaliban lesz fan-coil és az emeleten mennyezet hűtés-fűtés kerül kialakításra. Padlófűtés az egész házban lesz mindenhol. A garázs temperált fűtést kap, de a belső falon lesz 5 cm szigetelés. Szellőztető rendszer csak a garázs és az előszobában kerül kiépítésre, nem kap az ingatlan külön légtechnikát. A kivitelező 2026. év végére tervezi befejezni az egész ingatlan átadását. A családi ház a valóságban úgy fog kinézni, mint a látványterveken. A részletes műszaki és egyéb feltételeket a kivitelező a helyszíni megtekintés során részletesen elmondja. Jöjjön el és szeressen bele ebbe a családbarát ingatlanba! Az OTP Ingatlanpont teljes körű ügyintézéssel áll az eladók és a vevők rendelkezésére. A kínálatunkból választott ingatlan finanszírozásához kedvezményes hitelkonstrukciókat kínálunk. További információkért keressen bizalommal!

Referencia szám: M325482

Hirdetés feltöltve: 2026. 04. 01. Utoljára módosítva: 2026. 04. 23.

4 szobás családi házak ára Budapesten

Ebből az összehasonlításból megtudhatod, hogyan viszonyul a lakás ára a környékbeli családi házak átlagos árához. Ez nem azt jelenti, hogy ennyivel olcsóbb vagy drágább, mint amennyit a lakás ér, hanem hogy ennyivel tér el a környékbeli átlagtól.

Ennek a m² ára
X. kerület m² ár
Budapest m² ár
1138 e Ft
1112 e Ft -2%
1065 e Ft -7%
Ennek az ára
X. kerület átlagár
Budapest átlagár
190 M Ft m Ft
141.8 m Ft -34%
149.1 m Ft -27%

Az ingatlan elhelyezkedése

Cím: Budapest, X. kerület

Eladó ingatlanok a környékről

X. kerület
Eladó családi ház

Budapest, X. kerület

145 M Ft
1 + 2 szoba
74 m²
VII. kerület
Eladó téglalakás

Budapest, VII. kerület

74.9 M Ft
3 szoba
75 m²
X. kerület
Eladó családi ház

Budapest, X. kerület

265 M Ft
7 szoba
198 m²
X. kerület
Eladó családi ház

Budapest, X. kerület

129.9 M Ft
3 szoba
170 m²
XIV. kerület
Eladó téglalakás

Budapest, XIV. kerület

71.9 M Ft
1 + 1 szoba
42 m²
XXIII. kerület
Eladó téglalakás

Budapest, XXIII. kerület

47.951 M Ft
2 szoba
40 m²
X. kerület
Eladó családi ház

Budapest, X. kerület

170 M Ft
4 szoba
175 m²
VIII. kerület
Eladó téglalakás

Budapest, VIII. kerület

59.9 M Ft
1 szoba
38 m²
X. kerület
Eladó családi ház

Budapest, X. kerület

249 M Ft
6 + 1 szoba
186 m²
X. kerület
Eladó családi ház

Budapest, X. kerület

265 M Ft
7 szoba
198 m²
XV. kerület
Eladó panellakás

Budapest, XV. kerület

63.5 M Ft
2 szoba
53 m²
X. kerület
Eladó családi ház

Budapest, X. kerület

75.9 M Ft
4 szoba
100 m²
X. kerület
Eladó családi ház

Budapest, X. kerület

149.9 M Ft
5 szoba
119 m²
X. kerület
Eladó családi ház

Budapest, X. kerület

239 M Ft
7 szoba
245 m²
XIII. kerület
Eladó téglalakás

Budapest, XIII. kerület

59.9 M Ft
2 szoba
40 m²
X. kerület
Eladó családi ház

Budapest, X. kerület

334.99 M Ft
11 szoba
400 m²
VIII. kerület
Eladó téglalakás

Budapest, VIII. kerület

51.9 M Ft
1 + 1 szoba
32 m²
IX. kerület, Ferencváros, Ferenc körút
Eladó téglalakás

Budapest, IX. kerület

89.9 M Ft
3 szoba
84 m²
VIII. kerület
Eladó téglalakás

Budapest, VIII. kerület

108.5 M Ft
3 szoba
99 m²
X. kerület
Eladó családi ház

Budapest, X. kerület

334.99 M Ft
11 szoba
400 m²
XIII. kerület
Eladó téglalakás

Budapest, XIII. kerület

15 M Ft
1 + 1 szoba
24 m²
XIII. kerület
Eladó téglalakás

Budapest, XIII. kerület

92.9 M Ft
2 + 1 szoba
76 m²
X. kerület, Felsőrákos, Dömsödi utca
Eladó családi ház

Budapest, X. kerület

150 M Ft
2 szoba
150 m²
X. kerület
Eladó családi ház

Budapest, X. kerület

170 M Ft
4 szoba
175 m²

Falusi CSOK ingatlanok

Hegyeshalom, Margaréta utca 12
Eladó téglalakás

Hegyeshalom

46.91 M Ft
2 szoba
43 m²
Mencshely
Eladó családi ház

Mencshely

99 M Ft
3 szoba
126 m²
Németkér
Eladó családi ház

Németkér

149.9 M Ft
2 szoba
540 m²
Villány
Eladó családi ház

Villány

31 M Ft
1 szoba
35 m²
Recsk
Eladó családi ház

Recsk

40 M Ft
3 + 1 szoba
110 m²
Ceglédbercel
Eladó családi ház

Ceglédbercel

95 M Ft
6 szoba
220 m²
Mád
Eladó családi ház

Mád

48 M Ft
3 szoba
181 m²
Baks
Eladó családi ház

Baks

18.9 M Ft
3 szoba
118 m²