Astora Márvány8

Eladó családi ház
Budapest, X. kerület

+ 9 kép 1/12
134 900 000 Ft134.9 M Ft 1 105 738 Ft/m2
4 szoba
122 m²
építés éve:2026

Részletes adatok

Telekméret: 205 m2
Fűtés: Egyéb
Komfort: Duplakomfortos
Energetikai besorolás: Nem adta meg a hirdető

Az OTP Bank lakáshitel ajánlataFizetett hirdetés

+36 1 690
Szabó-Lévai Annamária
Duna House Kispest

Érdekel az OTP Bank kedvezményes lakáshitel ajánlata? *

* A kérdésre „Igen” válasz bejelölése esetén, az „Üzenet küldése” gombra kattintva kijelentem, hogy az OTP Bank Nyrt. Adatkezelési tájékoztatójának tartalmát megismertem és tudomásul vettem.

Eladó családi ház leírása

Modern, kétszintes újépítésű ikerház!

Budapest X. kerület egyik legnyugodtabb területén, egy csendes mellékutcában, gyönyörű és minőségi családi otthon épül!

Az ingatlan a mai kor műszaki elvárásai szerint kerül felépítésre. Prémium minőségű gépészet és kiváló minőségű anyagok felhasználásával.

A telek adta lehetőségek a leg optimálisabban került kihasználásra, az ikerház felépítésére.

Belső terei megtervezésekor első számú szempont volt a XXI. századi modern kialakítás, a kényelmes és egyben praktikus tér elrendezés.

Az ingatlanhoz tartozik egy 231 m2-es kert, amely tökéletes egy nagyobb család számára is. A kert privát és nem látni be rá, megfelelő intimitást nyújt.

A csendes elhelyezkedés egyben egy remek infrastruktúrát jelent. A környéken minden megtalálható amire az embernek szüksége lehet, illetve a belváros is rendkívül gyorsan megközelíthető, autóval, és tömegközlekedéssel is.

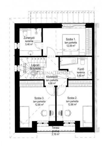
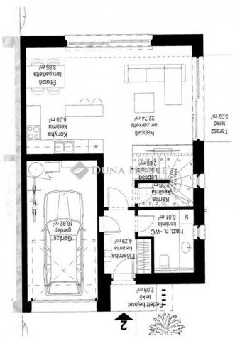
A ház helységei két szinten oszlanak meg, a hasznos alapterület 122 m2.

Az otthon szíve a, közel 33 m2-es amerikai konyhás nappali, ami terasz kapcsolatos, ezen a szinten még zuhanyzó+wc, háztartási helyiség kerül kialakításra.

Tartozik az ingatlanhoz egy fedett garázs is, ahova bőven be lehet parkolni egy nagyméretű autóval is, illetve a holmik tárolására is tökéletes.

A felső szinten további 3 db teljes értékű szoba várja új tulajdonosait, a lakók kényelmét még két db fürdőszoba szolgálja.

A vételár tartalmazza:

- beépített gépesített konyabútort,

- a teljes kertépítést,

- a beépített gardróbszekrényeket.

MŰSZAKI TARTALOM:

- Főfalak: 30 cm POROTHERM 30 N+F vázkerámia falazóblokk falazat ragasztva,

- Válaszfalak: 10 cm vtg. kerámia válaszfallapból, speciális ragasztóval,

- Koszorúk: monolit vasbeton szerkezet, külső oldalán 5 cm plusz kiegészítő hőszigeteléssel,

- Födém: monolit vasbeton födém készül, statikai méretezés szerint, emelet felett fa fedélszék ,

- Tető: hagyományos ácsszerkezetű magastető készül 25 fokos hajlásszöggel, dobozolt eresz kialakítással, Terrán Zenit Max Carbon szürke színben cserépfedéssel.

- Műanyag nyílászárók fenyő színben, 3 rétegű hőszigetelő üvegezéssel és több ponton

záródó biztonsági bejárati ajtóval.

- Burkolatok: hálószobákban laminált parketta melegburkolat, vizes helyiségeben kerámia-, és csempeburkolat készül. Kültéren a gépkocsi behajtó és járdák térkő burkolatúak.

- Homlokzati hőszigetelés expandált polisztirol hőszigetelő lemez 15 cm vtg-ban

- Lábazati hőszigetelés extrudált polisztirol hőszigetelő lemez 12 cm vtg-ban

- Koszorú külső hőszigetelés expandált polisztirol hőszigetelő lemez 5 cm vtg-ban

- Hőszigetelés padlóban expandált polisztirol hőszigetelő lemez 10 cm vtg-ban

- Födém feletti hőszigetelés EPS hőszigetelés, 20 cm vtg-ban,

- hőszivattyús fűtés, mennyezeti fűtés, hútés.

EXTRÁK:

- OKOS RENDSZER,

- elektromos redőnyök,

- kamera és riasztó rendszer kiépítés,

- videó kaputelefon,

- elektromos kapu,

- öntöző rendszer,

- elektromos autótöltő kiépítés,

- Wpc kerítés,

- 3 rétegű üvegek,

- rejtett világítások,

- udvar világítások,

- légtechnika.

Teljes átláthatóság az építkezés során digitálisan, kényelmesen, biztonságosan!

Az építkezés nálunk nem csak szakmai precizitásról szól, hanem valódi átláthatóságról is. A PlanRadar digitális projektkövető rendszerének köszönhetően Ön, mint leendő tulajdonos:

Valós időben nyomon követheti az építkezés minden lépését akár mobilról is.

Kéthetente részletes jelentést kap az aktuális állapotról, fotókkal, dokumentumokkal.

A projekt végén digitálisan megkapja az összes hivatalos dokumentumot, beleértve a garanciákat, tervrajzokat, átadási jegyzőkönyveket mindezt egyetlen, biztonságos platformon.

FINANSZÍROZÁS: Hitelre megvásárolható, vevőink részére díjmentes hitel közvetítés, minden magyarországi bankból. Állami támogatások felvehetőek rá!

Átadás: 2026. III. NEGYEDÉV

Ne hagyja ki ezt a páratlan lehetőséget! Egy ilyen prémium ingatlan ritkán kerül piacra, és most Ön előtt áll a lehetőség, hogy a város egyik legvonzóbb helyén éljen. Tökéletes választás a modern, kényelmes és biztonságos életstílust keresők számára!

Várom megtisztelő hívását a hét minden napján!

Az energetikai tanúsítvány készítése folyamatban van, amint rendelkezésre áll, úgy azzal a hirdetés frissítésre kerül.

Irányár: 134900000 Ft
Érd.: Szabó-Lévai Annamária, +36 70 307 7503

Referencia szám: HZ085582-ZE

Hirdetés feltöltve: 2025. 11. 25. Utoljára módosítva: 2026. 05. 16.

4 szobás családi házak ára Budapesten

Ebből az összehasonlításból megtudhatod, hogyan viszonyul a lakás ára a környékbeli családi házak átlagos árához. Ez nem azt jelenti, hogy ennyivel olcsóbb vagy drágább, mint amennyit a lakás ér, hanem hogy ennyivel tér el a környékbeli átlagtól.

Ennek a m² ára
X. kerület m² ár
Budapest m² ár
1106 e Ft
1111 e Ft 0%
1070 e Ft -3%
Ennek az ára
X. kerület átlagár
Budapest átlagár
134.9 M Ft m Ft
137.2 m Ft 2%
149.8 m Ft 10%

Az ingatlan elhelyezkedése

Cím: Budapest, X. kerület

Eladó ingatlanok a környékről

XV. kerület
Eladó téglalakás

Budapest, XV. kerület

74.9 M Ft
3 szoba
74 m²
XIII. kerület
Eladó téglalakás

Budapest, XIII. kerület

88 M Ft
2 szoba
43 m²
X. kerület
Eladó családi ház

Budapest, X. kerület

265 M Ft
7 szoba
198 m²
XVIII. kerület, Bókaytelep, Üllői út
Eladó iroda

Budapest, XVIII. kerület

0.22 M Ft
1 szoba
65 m²
X. kerület
Eladó családi ház

Budapest, X. kerület

134.9 M Ft
4 szoba
122 m²
X. kerület
Eladó családi ház

Budapest, X. kerület

149.9 M Ft
5 szoba
119 m²
XV. kerület
Eladó panellakás

Budapest, XV. kerület

64.9 M Ft
1 + 2 szoba
53 m²
XIII. kerület
Eladó téglalakás

Budapest, XIII. kerület

129.9 M Ft
3 szoba
96 m²
X. kerület
Eladó családi ház

Budapest, X. kerület

124.9 M Ft
3 szoba
170 m²
X. kerület
Eladó családi ház

Budapest, X. kerület

265 M Ft
7 szoba
198 m²
XV. kerület
Eladó panellakás

Budapest, XV. kerület

63 M Ft
2 szoba
47 m²
XVIII. kerület
Eladó téglalakás

Budapest, XVIII. kerület

69.9 M Ft
2 szoba
57 m²
IX. kerület, Ferencváros, Vaskapu u. 22
Eladó garázs

Budapest, IX. kerület

0.02 M Ft
14 m²
XX. kerület
Eladó téglalakás

Budapest, XX. kerület

29.9 M Ft
1 szoba
26 m²
X. kerület
Eladó családi ház

Budapest, X. kerület

394.99 M Ft
11 szoba
400 m²
VI. kerület, Külső Terézváros, Teréz körút
Eladó téglalakás

Budapest, VI. kerület

126 M Ft
3 szoba
77 m²
XIV. kerület
Eladó téglalakás

Budapest, XIV. kerület

77.9 M Ft
3 szoba
74 m²
III. kerület, Ürömhegy, Budapest III. kerület - Ürömhegy
Eladó téglalakás

Budapest, III. kerület

165 M Ft
3 szoba
95 m²
X. kerület
Eladó családi ház

Budapest, X. kerület

149.9 M Ft
5 szoba
119 m²
XIII. kerület
Eladó téglalakás

Budapest, XIII. kerület

56.5 M Ft
2 + 1 szoba
79 m²
X. kerület
Eladó panellakás

Budapest, X. kerület

52.9 M Ft
2 szoba
41 m²
VI. kerület
Eladó téglalakás

Budapest, VI. kerület

94.99 M Ft
3 szoba
75 m²
X. kerület
Eladó családi ház

Budapest, X. kerület

170 M Ft
4 szoba
175 m²
XIV. kerület
Eladó téglalakás

Budapest, XIV. kerület

79.99 M Ft
2 szoba
73 m²

Falusi CSOK ingatlanok

Bag
Eladó ikerház

Bag

86.5 M Ft
3 szoba
68 m²
Tóalmás
Eladó családi ház

Tóalmás

38.9 M Ft
3 szoba
62 m²
Parád
Eladó családi ház

Parád

55.9 M Ft
3 szoba
100 m²
Seregélyes
Eladó téglalakás

Seregélyes

54 M Ft
2 szoba
47 m²
Bakonyszentkirály
Eladó családi ház

Bakonyszentkirály

99.99 M Ft
5 szoba
126 m²
Balatonszemes
Eladó téglalakás

Balatonszemes

123.3 M Ft
2 szoba
0 m²
Rétság
Eladó téglalakás

Rétság

34.9 M Ft
2 szoba
55 m²
Sárosd
Eladó családi ház

Sárosd

21.9 M Ft
3 szoba
86 m²