NapForrás 20 - Buda

Eladó családi ház
Budapest, X. kerület

+ 9 kép 1/12
149 900 000 Ft149.9 M Ft 1 228 689 Ft/m2
4 szoba
122 m²
építés éve:2026

Részletes adatok

Telekméret: 231 m2
Fűtés: Egyéb
Energetikai besorolás: Nem adta meg a hirdető

Az OTP Bank lakáshitel ajánlataFizetett hirdetés

+36 1 690
Zámbó Beatrix
Duna House - Szent Imre-kertváros

Érdekel az OTP Bank kedvezményes lakáshitel ajánlata? *

* A kérdésre „Igen” válasz bejelölése esetén, az „Üzenet küldése” gombra kattintva kijelentem, hogy az OTP Bank Nyrt. Adatkezelési tájékoztatójának tartalmát megismertem és tudomásul vettem.

Eladó családi ház leírása

Modern, kétszintes újépítésű ikerház!

Budapest X.  kerület egyik legnyugodtabb területén, egy csendes mellékutcában, gyönyörű és minőségi családi otthon épül!

Az ingatlan a mai kor műszaki elvárásai szerint kerül felépítésre. Prémium minőségű gépészet és kiváló minőségű anyagok felhasználásával.

A telek adta lehetőségek a leg optimálisabban került kihasználásra, az ikerház felépítésére.

Belső terei megtervezésekor első számú szempont volt a XXI. századi modern kialakítás, a kényelmes és egyben praktikus tér elrendezés.

Az ingatlanhoz tartozik egy 231 m2-es kert, amely tökéletes egy nagyobb család számára is. A kert privát és nem látni be rá, megfelelő intimitást nyújt.

A csendes elhelyezkedés egyben egy remek infrastruktúrát jelent. A környéken minden megtalálható amire az embernek szüksége lehet, illetve a belváros is rendkívül gyorsan megközelíthető, autóval, és tömegközlekedéssel is.

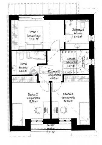
A ház helységei két szinten oszlanak meg, a hasznos alapterület 122 m2.

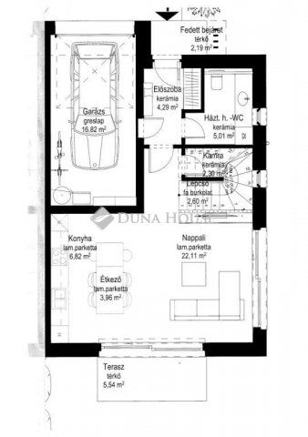
Az otthon szíve a, közel 33 m2-es amerikai konyhás nappali, ami terasz kapcsolatos, ezen a szinten még zuhanyzó+wc, háztartási helyiség kerül kialakításra.

Tartozik az ingatlanhoz egy fedett garázs is, ahova bőven be lehet parkolni egy nagyméretű autóval is, illetve a holmik tárolására is tökéletes.

A felső szinten további 3 db teljes értékű szoba várja új tulajdonosait, a lakók kényelmét még két db fürdőszoba szolgálja.

FELÁR ELLENÉBEN, a vállalkozó vállalja:

-    beépített gépesített konyabútort,

-    a teljes kertépítést,

-    a beépített gardróbszekrényeket.

MŰSZAKI TARTALOM:

-     Főfalak: 30 cm POROTHERM 30 N+F vázkerámia falazóblokk falazat ragasztva,

-     Válaszfalak: 10 cm vtg. kerámia válaszfallapból, speciális ragasztóval,

-    Koszorúk: monolit vasbeton szerkezet, külső oldalán 5 cm plusz kiegészítő hőszigeteléssel,

-    Födém: monolit vasbeton födém készül, statikai méretezés szerint, emelet felett fa fedélszék ,

-    Tető: hagyományos ácsszerkezetű magastető készül 25 fokos hajlásszöggel, dobozolt eresz kialakítással, Terrán Zenit Max Carbon szürke színben cserépfedéssel.

-    Műanyag nyílászárók fenyő színben, 3 rétegű hőszigetelő üvegezéssel és több ponton

záródó biztonsági bejárati ajtóval.

-    Burkolatok: hálószobákban laminált parketta melegburkolat, vizes helyiségeben kerámia-, és csempeburkolat készül. Kültéren a gépkocsi behajtó és járdák térkő burkolatúak.

-    Homlokzati hőszigetelés  expandált polisztirol hőszigetelő lemez 15 cm vtg-ban

-    Lábazati hőszigetelés extrudált polisztirol hőszigetelő lemez 12 cm vtg-ban

-    Koszorú külső hőszigetelés expandált polisztirol hőszigetelő lemez 5 cm vtg-ban

-    Hőszigetelés padlóban expandált polisztirol hőszigetelő lemez 10 cm vtg-ban

-    Födém feletti hőszigetelés EPS hőszigetelés, 20 cm vtg-ban,

-    hőszivattyús fűtés, mennyezeti fűtés, hútés.

EXTRÁK:

-    OKOS RENDSZER,

-    elektromos redőnyök,

-    kamera és riasztó rendszer kiépítés,

-    videó kaputelefon,

-    elektromos kapu,

-    öntöző rendszer,

-    elektromos autótöltő kiépítés,

-    Wpc kerítés,

-    3 rétegű üvegek,

-    rejtett világítások,

-    udvar világítások,

-    légtechnika.

Teljes átláthatóság az építkezés során digitálisan, kényelmesen, biztonságosan!

Az építkezés nálunk nem csak szakmai precizitásról szól, hanem valódi átláthatóságról is. A PlanRadar digitális projektkövető rendszerének köszönhetően Ön, mint leendő tulajdonos:

    Valós időben nyomon követheti az építkezés minden lépését akár mobilról is.

    Kéthetente részletes jelentést kap az aktuális állapotról, fotókkal, dokumentumokkal.

    A projekt végén digitálisan megkapja az összes hivatalos dokumentumot, beleértve a garanciákat, tervrajzokat, átadási jegyzőkönyveket mindezt egyetlen, biztonságos platformon.

FINANSZÍROZÁS: Hitelre megvásárolható, vevőink részére díjmentes hitel közvetítés, minden magyarországi bankból. Állami támogatások felvehetőek rá!

Átadás: 2026. III. NEGYEDÉV

Ne hagyja ki ezt a páratlan lehetőséget! Egy ilyen prémium ingatlan ritkán kerül piacra, és most Ön előtt áll a lehetőség, hogy a város egyik legvonzóbb helyén éljen. Tökéletes választás a modern, kényelmes és biztonságos életstílust keresők számára!

Várom megtisztelő hívását a hét minden napján!

Hirdetés feltöltve: 2025. 11. 17. Utoljára módosítva: 2026. 01. 13.

4 szobás családi házak ára Budapesten

Ebből az összehasonlításból megtudhatod, hogyan viszonyul a lakás ára a környékbeli családi házak átlagos árához. Ez nem azt jelenti, hogy ennyivel olcsóbb vagy drágább, mint amennyit a lakás ér, hanem hogy ennyivel tér el a környékbeli átlagtól.

Ennek a m² ára
X. kerület m² ár
Budapest m² ár
1229 e Ft
1210 e Ft -2%
1090 e Ft -13%
Ennek az ára
X. kerület átlagár
Budapest átlagár
149.9 M Ft m Ft
151.7 m Ft 1%
155.2 m Ft 3%

Az ingatlan elhelyezkedése

Cím: Budapest, X. kerület

Eladó ingatlanok a környékről

IX. kerület
Eladó téglalakás

Budapest, IX. kerület

74 M Ft
1 + 1 szoba
37 m²
VI. kerület
Eladó téglalakás

Budapest, VI. kerület

98.5 M Ft
2 szoba
36 m²
X. kerület, Óhegy
Eladó családi ház

Budapest, X. kerület

160 M Ft
7 szoba
204 m²
XVII. kerület
Eladó téglalakás

Budapest, XVII. kerület

77 M Ft
3 szoba
61 m²
X. kerület, Felsőrákos
Eladó családi ház

Budapest, X. kerület

480 M Ft
4 szoba
180 m²
X. kerület
Eladó családi ház

Budapest, X. kerület

160 M Ft
6 szoba
204 m²
XXIII. kerület
Eladó családi ház

Budapest, XXIII. kerület

85.9 M Ft
2 szoba
85 m²
X. kerület, Népliget, Üllői út
Eladó téglalakás

Budapest, X. kerület

63 M Ft
2 szoba
54 m²
XVIII. kerület
Eladó ikerház

Budapest, XVIII. kerület

94 M Ft
3 szoba
103 m²
X. kerület, Felsőrákos, Dömsödi utca
Eladó családi ház

Budapest, X. kerület

150 M Ft
2 szoba
150 m²
XX. kerület, Pacsirtatelep, Kuruc utca 6
Eladó téglalakás

Budapest, XX. kerület

74 M Ft
2 szoba
58 m²
X. kerület, Újhegy
Eladó családi ház

Budapest, X. kerület

199 M Ft
4 szoba
180 m²
XVIII. kerület
Eladó családi ház

Budapest, XVIII. kerület

419 M Ft
5 + 2 szoba
390 m²
XXI. kerület
Eladó panellakás

Budapest, XXI. kerület

72 M Ft
3 szoba
61 m²
X. kerület, Felsőrákos
Eladó családi ház

Budapest, X. kerület

334.99 M Ft
11 szoba
400 m²
X. kerület
Eladó családi ház

Budapest, X. kerület

145 M Ft
1 + 2 szoba
74 m²
X. kerület
Eladó családi ház

Budapest, X. kerület

160 M Ft
6 szoba
204 m²
XIV. kerület, Alsórákos, Vezér utca 174
Eladó téglalakás

Budapest, XIV. kerület

82.5 M Ft
2 + 1 szoba
55 m²
VII. kerület
Eladó téglalakás

Budapest, VII. kerület

67.5 M Ft
1 szoba
42 m²
X. kerület, Újhegy
Eladó családi ház

Budapest, X. kerület

199.9 M Ft
3 szoba
160 m²
VIII. kerület
Eladó téglalakás

Budapest, VIII. kerület

81.5 M Ft
3 szoba
72 m²
X. kerület
Eladó családi ház

Budapest, X. kerület

125 M Ft
3 + 1 szoba
100 m²
X. kerület
Eladó családi ház

Budapest, X. kerület

145 M Ft
1 + 2 szoba
74 m²
XVIII. kerület
Eladó téglalakás

Budapest, XVIII. kerület

93.5 M Ft
3 szoba
71 m²

Falusi CSOK ingatlanok

Háromfa, Kossuth
Eladó családi ház

Háromfa

22.4 M Ft
1247 m²
139 m²
Nyírtura
Eladó családi ház

Nyírtura

99 M Ft
4 szoba
280 m²
Verseg
Eladó családi ház

Verseg

38 M Ft
3 szoba
83 m²
Kenyeri
Eladó családi ház

Kenyeri

21.8 M Ft
2 szoba
75 m²
Kaposgyarmat
Eladó családi ház

Kaposgyarmat

695 M Ft
6 szoba
610 m²
Villány
Eladó családi ház

Villány

27 M Ft
7 szoba
131 m²
Adásztevel
Eladó családi ház

Adásztevel

8.9 M Ft
2 szoba
63 m²
Hercegszántó
Eladó családi ház

Hercegszántó

7 M Ft
3 szoba
120 m²