NapForrás 20 - Buda

Eladó családi ház
Budapest, II. kerület, Hársakalja

+ 17 kép 1/20
259 000 000 Ft259 M Ft 1 918 519 Ft/m2
5 szoba
135 m²
építés éve:1920

Részletes adatok

Telekméret: 674 m2
Fűtés: Gázkazán
Energetikai besorolás: Nem adta meg a hirdető

Az OTP Bank lakáshitel ajánlataFizetett hirdetés

+36 70 458
Potoczki László
referens

Érdekel az OTP Bank kedvezményes lakáshitel ajánlata? *

* A kérdésre „Igen” válasz bejelölése esetén, az „Üzenet küldése” gombra kattintva kijelentem, hogy az OTP Bank Nyrt. Adatkezelési tájékoztatójának tartalmát megismertem és tudomásul vettem.

Eladó családi ház leírása

RITKA LEHETŐSÉG, SZÁZADFORDULÓS, FELÚJÍTOTT VILLA HIDEGKÚTON, ERDŐSZÉLÉN!
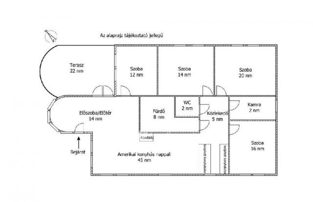
Eladásra kínálunk Budapest II/A. kerületének egyik legexkluzívabb, legzöldebb részén, Hársakalján, egy igazi építészeti ékkövet! Ez a 135 nm-es, századfordulós stílusban épült, 2022-ben modernizált villa tökéletes harmóniát teremt a klasszikus elegancia és a mai kor kényelme között, amely egy 674 négyzetméteres, parkosított telken helyezkedik el, egy csendes, erdőszéli zsákutcában.

Az ingatlanban négy tágas szoba, valamint egy amerikai konyhás nappali található, ahol egy gyönyörű kandalló gondoskodik az otthonos, meghitt hangulatról. A ház fűtését korszerű kombi gázkazán biztosítja radiátoros hőleadással, a nyári komfortot pedig légkondicionáló berendezések szolgálják.

Az épületet utoljára 2022-ben korszerűsítették, ennek köszönhetően kívül-belül kiváló állapotnak örvend, hőszigetelt, energiahatékony.

A házhoz tartozik egy kétállásos garázs, egy száraz pince, valamint egy beépített, gondozott medence is, amely a hatalmas terasz és a gyönyörű kert mellett tökéletes lehetőséget kínál a pihenésre és kikapcsolódásra.

Az ingatlan elhelyezkedése is elsőrangú, hiszen pár perc sétára található a legközelebbi buszmegálló, ahol éjszakai járat is közlekedik, a közelben pedig számos bevásárlási lehetőség, gyógyszertár, rendelő, iskola, óvoda és bölcsőde könnyíti meg a mindennapokat. A Hűvösvölgyi végállomás pedig 5 perc sétára található.
Ez a villa nem csupán egy otthon, hanem egy életérzés, ahol a természet közelsége, a nyugalom és a kifinomult elegancia találkozik.

Referencia szám: M323139

Hirdetés feltöltve: 2026. 02. 23. Utoljára módosítva: 2026. 03. 15.

5 szobás családi házak ára Budapesten

Ebből az összehasonlításból megtudhatod, hogyan viszonyul a lakás ára a környékbeli családi házak átlagos árához. Ez nem azt jelenti, hogy ennyivel olcsóbb vagy drágább, mint amennyit a lakás ér, hanem hogy ennyivel tér el a környékbeli átlagtól.

Ennek a m² ára
Hársakalja m² ár
II. kerület m² ár
Budapest m² ár
1919 e Ft
1221 e Ft -57%
1275 e Ft -50%
964 e Ft -99%
Ennek az ára
Hársakalja átlagár
II. kerület átlagár
Budapest átlagár
259 M Ft m Ft
403.5 m Ft 36%
391.9 m Ft 34%
243.6 m Ft -6%

Az ingatlan elhelyezkedése

Cím: Budapest, II. kerület, Hársakalja

Eladó ingatlanok a környékről

II. kerület, Rózsadomb
Eladó családi ház

Budapest, II. kerület

1500 M Ft
14 + 1 szoba
875 m²
XIV. kerület
Eladó téglalakás

Budapest, XIV. kerület

61.5 M Ft
1 szoba
41 m²
II. kerület, Remetekertváros, Kertváros utca
Eladó családi ház

Budapest, II. kerület

240 M Ft
9 szoba
286 m²
XVII. kerület
Eladó panellakás

Budapest, XVII. kerület

69.9 M Ft
4 szoba
73 m²
XVIII. kerület, Újpéteritelep
Eladó családi ház

Budapest, XVIII. kerület

89.98 M Ft
3 szoba
105 m²
XVI. kerület
Eladó téglalakás

Budapest, XVI. kerület

69.9 M Ft
2 + 1 szoba
40 m²
IX. kerület, Ferencváros, Vágóhíd utca
Eladó téglalakás

Budapest, IX. kerület

199.9 M Ft
4 szoba
102 m²
II. kerület
Eladó családi ház

Budapest, II. kerület

495 M Ft
5 szoba
193 m²
II. kerület
Eladó családi ház

Budapest, II. kerület

248 M Ft
5 szoba
169 m²
II. kerület
Eladó családi ház

Budapest, II. kerület

495 M Ft
6 szoba
416 m²
XV. kerület, Rákospalota
Eladó panellakás

Budapest, XV. kerület

56 M Ft
2 szoba
48 m²
XVI. kerület
Eladó családi ház

Budapest, XVI. kerület

124.9 M Ft
3 szoba
71 m²
XVII. kerület, Rákoscsaba
Eladó családi ház

Budapest, XVII. kerület

80 M Ft
4 szoba
108 m²
XI. kerület, Kelenföld
Eladó téglalakás

Budapest, XI. kerület

109.9 M Ft
2 szoba
65 m²
VIII. kerület, Józsefváros
Eladó téglalakás

Budapest, VIII. kerület

129.9 M Ft
4 szoba
93 m²
II. kerület, Törökvész
Eladó családi ház

Budapest, II. kerület

1800 M Ft
7 + 2 szoba
550 m²
II. kerület
Eladó családi ház

Budapest, II. kerület

1800 M Ft
9 szoba
550 m²
XVIII. kerület
Eladó családi ház

Budapest, XVIII. kerület

79.99 M Ft
4 szoba
88 m²
XVII. kerület
Eladó családi ház

Budapest, XVII. kerület

199 M Ft
6 szoba
240 m²
XVIII. kerület
Eladó panellakás

Budapest, XVIII. kerület

62.9 M Ft
3 szoba
59 m²
II. kerület
Eladó családi ház

Budapest, II. kerület

1500 M Ft
8 szoba
500 m²
XVI. kerület
Eladó családi ház

Budapest, XVI. kerület

124.9 M Ft
3 szoba
71 m²
II. kerület
Eladó családi ház

Budapest, II. kerület

449 M Ft
730 m²
350 m²
II. kerület
Eladó családi ház

Budapest, II. kerület

199 M Ft
8 szoba
286 m²

Falusi CSOK ingatlanok

Kemeneshőgyész
Eladó családi ház

Kemeneshőgyész

8 M Ft
2 szoba
60 m²
Csömend
Eladó családi ház

Csömend

29.8 M Ft
2 szoba
96 m²
Vásárosdombó
Eladó családi ház

Vásárosdombó

14.99 M Ft
2 szoba
69 m²
Újszilvás
Eladó családi ház

Újszilvás

25.9 M Ft
3 szoba
73 m²
Úri
Eladó családi ház

Úri

260 M Ft
7 szoba
300 m²
Törtel
Eladó családi ház

Törtel

5.9 M Ft
2 szoba
45 m²
Tápióbicske
Eladó családi ház

Tápióbicske

17.4 M Ft
2 szoba
84 m²
Szilsárkány
Eladó családi ház

Szilsárkány

39.99 M Ft
3 szoba
110 m²