Oasis Residence

Eladó családi ház
Budapest, II. kerület, Hársakalja

+ 17 kép 1/20
259 000 000 Ft259 M Ft 1 918 519 Ft/m2
5 szoba
135 m²
építés éve:1920

Részletes adatok

Állapot: Átlagos
Telekméret: 674 m2
Fűtés: Gázkazán
Parkolás: Garázs
Energetikai besorolás: Nem adta meg a hirdető

Az OTP Bank lakáshitel ajánlataFizetett hirdetés

+36 30 580
Heuszler Annamária
referens

Érdekel az OTP Bank kedvezményes lakáshitel ajánlata? *

* A kérdésre „Igen” válasz bejelölése esetén, az „Üzenet küldése” gombra kattintva kijelentem, hogy az OTP Bank Nyrt. Adatkezelési tájékoztatójának tartalmát megismertem és tudomásul vettem.

Eladó családi ház leírása

RITKA LEHETŐSÉG, SZÁZADFORDULÓS, FELÚJÍTOTT VILLA HIDEGKÚTON, ERDŐSZÉLÉN!
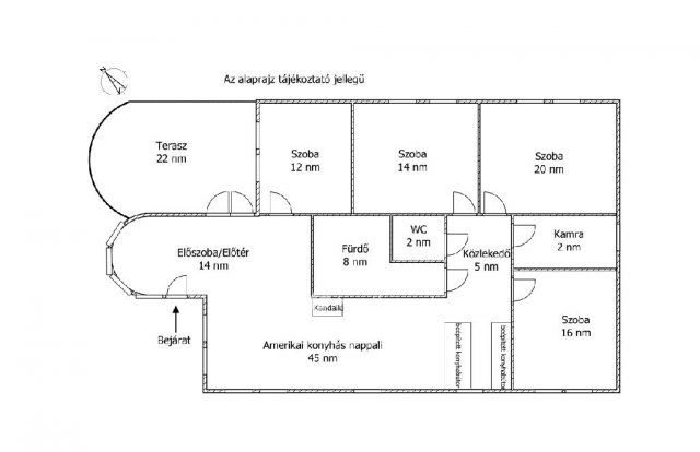
Eladásra kínálunk Budapest II/A. kerületének egyik legexkluzívabb, legzöldebb részén, Hársakalján, egy igazi építészeti ékkövet! Ez a 135 nm-es, századfordulós stílusban épült, 2022-ben modernizált villa tökéletes harmóniát teremt a klasszikus elegancia és a mai kor kényelme között, amely egy 674 négyzetméteres, parkosított telken helyezkedik el, egy csendes, erdőszéli zsákutcában.

Az ingatlanban négy tágas szoba, valamint egy amerikai konyhás nappali található, ahol egy gyönyörű kandalló gondoskodik az otthonos, meghitt hangulatról. A ház fűtését korszerű kombi gázkazán biztosítja radiátoros hőleadással, a nyári komfortot pedig légkondicionáló berendezések szolgálják.

Az épületet utoljára 2022-ben korszerűsítették, ennek köszönhetően kívül-belül kiváló állapotnak örvend, hőszigetelt, energiahatékony.

A házhoz tartozik egy kétállásos garázs, egy száraz pince, valamint egy beépített, gondozott medence is, amely a hatalmas terasz és a gyönyörű kert mellett tökéletes lehetőséget kínál a pihenésre és kikapcsolódásra.

Az ingatlan elhelyezkedése is elsőrangú, hiszen pár perc sétára található a legközelebbi buszmegálló, ahol éjszakai járat is közlekedik, a közelben pedig számos bevásárlási lehetőség, gyógyszertár, rendelő, iskola, óvoda és bölcsőde könnyíti meg a mindennapokat. A Hűvösvölgyi végállomás pedig 5 perc sétára található.
Ez a villa nem csupán egy otthon, hanem egy életérzés, ahol a természet közelsége, a nyugalom és a kifinomult elegancia találkozik.

Hirdetés feltöltve: 2026. 02. 22. Utoljára módosítva: 2026. 02. 22.

5 szobás családi házak ára Budapesten

Ebből az összehasonlításból megtudhatod, hogyan viszonyul a lakás ára a környékbeli családi házak átlagos árához. Ez nem azt jelenti, hogy ennyivel olcsóbb vagy drágább, mint amennyit a lakás ér, hanem hogy ennyivel tér el a környékbeli átlagtól.

Ennek a m² ára
Hársakalja m² ár
II. kerület m² ár
Budapest m² ár
1919 e Ft
1221 e Ft -57%
1275 e Ft -50%
964 e Ft -99%
Ennek az ára
Hársakalja átlagár
II. kerület átlagár
Budapest átlagár
259 M Ft m Ft
403.5 m Ft 36%
391.9 m Ft 34%
243.6 m Ft -6%

Az ingatlan elhelyezkedése

Cím: Budapest, II. kerület, Hársakalja

Eladó ingatlanok a környékről

II. kerület, Rózsadomb
Eladó családi ház

Budapest, II. kerület

1500 M Ft
14 + 1 szoba
875 m²
XVIII. kerület
Eladó panellakás

Budapest, XVIII. kerület

62.9 M Ft
3 szoba
59 m²
II. kerület, Szépvölgy
Eladó családi ház

Budapest, II. kerület

3300 M Ft
8 szoba
1100 m²
XVIII. kerület
Eladó téglalakás

Budapest, XVIII. kerület

67.9 M Ft
3 szoba
56 m²
VII. kerület, Külső Erzsébetváros, Lövölde tér
Eladó téglalakás

Budapest, VII. kerület

165 M Ft
4 szoba
107 m²
II. kerület, Pasarét
Eladó családi ház

Budapest, II. kerület

1650 M Ft
17 szoba
1200 m²
II. kerület
Eladó családi ház

Budapest, II. kerület

495 M Ft
6 szoba
416 m²
XIII. kerület, Újlipótváros
Eladó téglalakás

Budapest, XIII. kerület

36 M Ft
1 szoba
20 m²
XVII. kerület
Eladó panellakás

Budapest, XVII. kerület

75.9 M Ft
3 szoba
58 m²
XVII. kerület
Eladó családi ház

Budapest, XVII. kerület

199 M Ft
6 szoba
240 m²
II. kerület, Adyliget
Eladó családi ház

Budapest, II. kerület

455 M Ft
5 + 1 szoba
300 m²
XIV. kerület
Eladó téglalakás

Budapest, XIV. kerület

61.5 M Ft
1 szoba
41 m²
XVI. kerület
Eladó családi ház

Budapest, XVI. kerület

124.9 M Ft
3 szoba
71 m²
XVIII. kerület
Eladó családi ház

Budapest, XVIII. kerület

79.99 M Ft
4 szoba
88 m²
II. kerület
Eladó családi ház

Budapest, II. kerület

275 M Ft
8 szoba
392 m²
XVII. kerület
Eladó panellakás

Budapest, XVII. kerület

69.9 M Ft
4 szoba
73 m²
II. kerület
Eladó családi ház

Budapest, II. kerület

449 M Ft
730 m²
350 m²
VIII. kerület, Józsefváros
Eladó téglalakás

Budapest, VIII. kerület

129.9 M Ft
4 szoba
93 m²
IX. kerület, Ferencváros, Vágóhíd utca
Eladó téglalakás

Budapest, IX. kerület

199.9 M Ft
4 szoba
102 m²
XVI. kerület
Eladó családi ház

Budapest, XVI. kerület

195 M Ft
6 szoba
250 m²
II. kerület
Eladó családi ház

Budapest, II. kerület

274.253 M Ft
6 szoba
300 m²
II. kerület, Remetekertváros, Kertváros utca
Eladó családi ház

Budapest, II. kerület

240 M Ft
9 szoba
286 m²
II. kerület
Eladó családi ház

Budapest, II. kerület

498 M Ft
8 szoba
650 m²
II. kerület
Eladó családi ház

Budapest, II. kerület

1500 M Ft
8 szoba
500 m²

Falusi CSOK ingatlanok

Somogyhárságy
Eladó családi ház

Somogyhárságy

108.75 M Ft
4 szoba
330 m²
Letenye
Eladó családi ház

Letenye

31.99 M Ft
3 szoba
105 m²
Söjtör
Eladó családi ház

Söjtör

23 M Ft
2 szoba
91 m²
Táborfalva
Eladó családi ház

Táborfalva

36.9 M Ft
1 + 2 szoba
89 m²
Ceglédbercel, Aranyhegy utca
Eladó családi ház

Ceglédbercel

114.99 M Ft
5 szoba
133 m²
Úri
Eladó családi ház

Úri

260 M Ft
7 szoba
300 m²
Ceglédbercel
Eladó családi ház

Ceglédbercel

66.66 M Ft
3 szoba
92 m²
Balatonszepezd
Eladó családi ház

Balatonszepezd

299 M Ft
5 szoba
220 m²