Astora Art House

Eladó családi ház
Budaörs

+ 8 kép 1/11
389 000 000 Ft389 M Ft 1 587 755 Ft/m2
5 szoba
245 m²
építés éve:2026

Részletes adatok

Telekméret: 743 m2
Fűtés: Egyéb
Parkolás: Garázs
Energetikai besorolás: A++

Az OTP Bank lakáshitel ajánlataFizetett hirdetés

+36 70 455
Bognár László
referens

Érdekel az OTP Bank kedvezményes lakáshitel ajánlata? *

* A kérdésre „Igen” válasz bejelölése esetén, az „Üzenet küldése” gombra kattintva kijelentem, hogy az OTP Bank Nyrt. Adatkezelési tájékoztatójának tartalmát megismertem és tudomásul vettem.

Eladó családi ház leírása

Örök panoráma és Japánkert: Minimalista Luxus Villa Budaörs Felső Részén

Eladásra kínálunk egy 240 m²-es, déli tájolású, egyedi tervezésű prémium rezidenciát, ahol a természet és a modern technológia találkozik.

Miért különleges ez az ingatlan?
Ez nem csupán egy ház, hanem egy életérzés. A 743 m²-es telken elhelyezkedő villa egy privát magánútról közelíthető meg, garantálva a teljes szeparáltságot és nyugalmat. A tervezésnél az „indoor-outdoor living” koncepció érvényesült: a hatalmas üvegfelületek elmossák a határt a belső terek és a természet között.

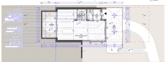
Tervezés és Elrendezés (240 m²)
Közösségi tér: Közel 70 m²-es, napfényben úszó amerikai konyhás nappali.

Privát szféra: 4 hálószoba, köztük egy szeparált Master Bedroom, szülői háló, saját gardróbbal és privát fürdővel.

Wellness & Relax: 46 m²-es panorámás terasz és egy egyedülálló, 21 m²-es belső japánkert, amely a ház szívét alkotja.

Parkolás: Dupla garázs + több kerti beálló.

Csúcskategóriás Műszaki Tartalom

Energiahatékonyság: Hőszivattyús fűtés, padló- és mennyezethűtés (Wi-Fi szabályozással), "H" tarifa, hővisszanyerős szellőztetés.

Szerkezet: YTONG falazat 15 cm szigeteléssel, PIR hőszigetelt lapos tető.

Nyílászárók: Prémium alumínium szerkezetek, 3 rétegű üvegezés, motoros zsalúzia és nyitásérzékelők.

Okos megoldások: Napelem- és elektromos autó töltő előkészítés, riasztó- és videó kaputelefon rendszer.

Extra: Egyedi igény esetén medence kialakítható!

Elhelyezkedés
Budaörs elegáns felső részén, hegyoldali környezetben, ahol az örök panoráma garantált. A tömegközlekedés sétatávolságra, a városközpont percek alatt elérhető, mégis zavartalan csend veszi körül.

Átadás: 2026. év vége
HASZNÁLJA KI AZ IDŐELŐNYT! Az ingatlan jelenleg építés alatt áll, így Önnek még lehetősége van saját ízlésére formálni a belső kialakítást, kiválasztani a burkolatokat és szanitereket, hogy valóban álmai otthonába költözhessen.

Értékálló minőség, kompromisszumok nélkül!

Szeretné megtekinteni a helyszínt vagy a részletes tervdokumentációt?
Hívjon bizalommal, és egyeztessünk egy személyes találkozót! ...TOVÁBBI, TÖBBEZRES INGATLAN KÍNÁLAT: www.gdn-ingatlan.hu - GDN azonosító: 393279

Hirdetés feltöltve: 2026. 03. 06. Utoljára módosítva: 2026. 03. 11.

5 szobás családi házak ára Budaörsön

Ebből az összehasonlításból megtudhatod, hogyan viszonyul a lakás ára a környékbeli családi házak átlagos árához. Ez nem azt jelenti, hogy ennyivel olcsóbb vagy drágább, mint amennyit a lakás ér, hanem hogy ennyivel tér el a környékbeli átlagtól.

Ennek a m² ára
Budaörs m² ár
1588 e Ft
1202 e Ft -32%
Ennek az ára
Budaörs átlagár
389 M Ft m Ft
303.8 m Ft -28%

Az ingatlan elhelyezkedése

Cím: Budaörs

Eladó családi házak a környékről

Budaörs
Eladó családi ház

Budaörs

295 M Ft
8 szoba
285 m²
Budaörs
Eladó családi ház

Budaörs

359 M Ft
5 szoba
310 m²
Tápiószele
Eladó családi ház

Tápiószele

45 M Ft
6 szoba
360 m²
Budaörs
Eladó családi ház

Budaörs

475 M Ft
12 szoba
560 m²
Érd, Érdliget - Kutyavár, Érd-liget
Eladó családi ház

Érd

230 M Ft
7 szoba
280 m²
Budaörs
Eladó családi ház

Budaörs

315 M Ft
5 szoba
236 m²
Budakeszi, Makkosmária
Eladó családi ház

Budakeszi

100 M Ft
1 szoba
10 m²
Dunakeszi
Eladó családi ház

Dunakeszi

250 M Ft
4 szoba
180 m²
Budaörs, Szabadság út
Eladó családi ház

Budaörs

119.9 M Ft
4 szoba
142 m²
Tápiószentmárton
Eladó családi ház

Tápiószentmárton

16.5 M Ft
3 szoba
50 m²
Budaörs
Eladó családi ház

Budaörs

119.9 M Ft
4 szoba
142 m²
Budakeszi, Budakeszi kertváros
Eladó családi ház

Budakeszi

229 M Ft
10 szoba
450 m²
Budaörs
Eladó családi ház

Budaörs

295 M Ft
4 + 2 szoba
300 m²
Érd
Eladó családi ház

Érd

164.9 M Ft
5 szoba
192 m²
Pécel, Reményik Sándor utca
Eladó családi ház

Pécel

296 M Ft
6 szoba
396 m²
Tápiószele
Eladó családi ház

Tápiószele

11.9 M Ft
3 szoba
62 m²
Budaörs
Eladó családi ház

Budaörs

285 M Ft
7 + 1 szoba
285 m²
Tápiószele
Eladó családi ház

Tápiószele

32.9 M Ft
4 szoba
200 m²
Tápiószentmárton
Eladó családi ház

Tápiószentmárton

7.9 M Ft
2 + 1 szoba
86 m²
Budaörs, Hold utca
Eladó családi ház

Budaörs

375 M Ft
9 szoba
660 m²
Budaörs
Eladó családi ház

Budaörs

490 M Ft
6 szoba
300 m²
Budaörs
Eladó családi ház

Budaörs

315 M Ft
5 szoba
236 m²
Nagykáta
Eladó családi ház

Nagykáta

130 M Ft
3 szoba
203 m²
Budaörs
Eladó családi ház

Budaörs

194.9 M Ft
5 szoba
200 m²

Falusi CSOK ingatlanok

Tóalmás
Eladó családi ház

Tóalmás

31.5 M Ft
2 szoba
43 m²
Recsk
Eladó családi ház

Recsk

59 M Ft
2 szoba
70 m²
Kenyeri
Eladó családi ház

Kenyeri

39.9 M Ft
3 szoba
94 m²
Balatonakali
Eladó ikerház

Balatonakali

129 M Ft
4 szoba
145 m²
Jakabszállás, Arany János utca 22
Eladó családi ház

Jakabszállás

24.05 M Ft
4 szoba
103 m²
Szigetcsép
Eladó családi ház

Szigetcsép

35 M Ft
3 szoba
92 m²
Adony
Eladó családi ház

Adony

84.9 M Ft
3 szoba
106 m²
Hosszúhetény, Iskola utca 2
Eladó családi ház

Hosszúhetény

9.3 M Ft
4 szoba
145 m²