Seven Pearl

Eladó családi ház
Birján

+ 8 kép 1/11
295 000 000 Ft295 M Ft 25 683 Ft/m2
4 szoba
1.15 ha
építés éve:1995

Részletes adatok

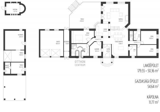
Telekméret: 11486 m2
Fűtés: Egyéb
Parkolás: Garázs
Közmű: Gáz, Villany, Csatorna
Energetikai besorolás: Nem adta meg a hirdető

Az OTP Bank lakáshitel ajánlataFizetett hirdetés

+36 70 465
Czigler László
referens

Érdekel az OTP Bank kedvezményes lakáshitel ajánlata? *

* A kérdésre „Igen” válasz bejelölése esetén, az „Üzenet küldése” gombra kattintva kijelentem, hogy az OTP Bank Nyrt. Adatkezelési tájékoztatójának tartalmát megismertem és tudomásul vettem.

Eladó családi ház leírása

Az ingatlan 2 generáció össze költözésére, vagy akár egy nagyobb család lakhatására is alkalmas.
A ház rendkívül csendes nyugodt helyen a falu végén található.
A nappaliból szép tiszta időben a Villányi hegység látható.
Az épületet 1992-94 között építették az akkori kor legkorszerűbb építés technikai és gépészeti elvárásai mellett.
A közel másfél hektáros terület az elmúlt 30 év alatt gyönyörű arborétummá alakult. Különleges díszfák, erdei fák, gyümölcsfák, dísz bokrok, (közel 500 db fa található a birtokon).
Az arborétum sajátossága hogy a növények abszolút vegyszermentesek, soha semmilyen vegyszert nem használtak.
Óriási Madrid sereg van a telek körül és a telken belül is. Évek óta egy mókus család is beköltözött a fákra.
Az ingatlan rendelkezik egy 50 köbméteres eső víztárolóval ahol az épületről összegyűjtött esővizet tárolják.
A kertben egy 40 m mély fúrt kút is található, amiben 20-25 m a víz oszlop.
Az ingatlan rezsiköltsége minimális, a villanyszámla a napelemek miatt, a fűtés az egyedi tervezésű kazánnal, és ha szükséges gáz rá segítéssel működik. A nappaliban cserépkályha ill klíma is van.
Bírján Pécstől 17 km-de található.
Az energetikai tanúsítvány készítése folyamatban van, amint rendelkezésre áll, úgy azzal a hirdetés frissítésre kerül.

Hirdetés feltöltve: 2026. 03. 20. Utoljára módosítva: 2026. 05. 12.

Az ingatlan elhelyezkedése

Cím: Birján

Eladó ingatlanok a környékről

Mohács
Eladó családi ház

Mohács

13.5 M Ft
1 szoba
50 m²
Birján
Eladó családi ház

Birján

295 M Ft
4 szoba
241 m²
Pécs, Meszesi lakóövezet, Pacca dűlő
Eladó családi ház

Pécs

16 M Ft
1 szoba
28 m²
Birján, Fő utca
Eladó családi ház

Birján

295 M Ft
4 szoba
190 m²
Pécs, Megyer, Fellbach
Eladó téglalakás

Pécs

42.5 M Ft
1 + 1 szoba
38 m²
Mohács
Eladó családi ház

Mohács

9.3 M Ft
1 szoba
30 m²
Siklós, Felszabadulás utca
Eladó családi ház

Siklós

199 M Ft
7 szoba
600 m²
Pécs
Eladó telek

Pécs

12 M Ft
1470 m²
0 m²
Birján
Eladó családi ház

Birján

84.9 M Ft
4 szoba
126 m²
Mohács
Eladó téglalakás

Mohács

46.5 M Ft
2 szoba
63 m²
Pécs
Eladó családi ház

Pécs

270 M Ft
5 szoba
350 m²
Pécs
Eladó panellakás

Pécs

57.9 M Ft
3 szoba
73 m²
Magyarhertelend, Bokréta utca
Eladó családi ház

Magyarhertelend

30.5 M Ft
3 + 3 szoba
102 m²
Siklós
Eladó családi ház

Siklós

270 M Ft
8 szoba
600 m²
Birján
Eladó családi ház

Birján

10.4 M Ft
2 szoba
55 m²
Lánycsók
Eladó családi ház

Lánycsók

75 M Ft
7 szoba
247 m²
Birján
Eladó családi ház

Birján

84.9 M Ft
4 szoba
126 m²
Birján, Kossuth Lajos utca
Eladó családi ház

Birján

14 M Ft
2 szoba
61 m²
Mohács
Eladó ipari ingatlan

Mohács

549 M Ft
1.35 ha
Birján
Eladó családi ház

Birján

32.9 M Ft
2 szoba
70 m²
Siklós, Külterület
Eladó családi ház

Siklós

61.5 M Ft
2 szoba
110 m²
Pécs, Kertváros, Táncsics Mihály utca
Eladó családi ház

Pécs

85 M Ft
6 szoba
185 m²
Egyházaskozár, Hatos Gusztáv utca
Eladó családi ház

Egyházaskozár

4.7 M Ft
3 szoba
79 m²
Mohács
Eladó családi ház

Mohács

25 M Ft
4 szoba
120 m²

Falusi CSOK ingatlanok

Ceglédbercel
Eladó családi ház

Ceglédbercel

89 M Ft
4 szoba
135 m²
Tihany
Eladó családi ház

Tihany

385 M Ft
5 szoba
200 m²
Tápióság
Eladó családi ház

Tápióság

30 M Ft
3 szoba
105 m²
Tápiógyörgye
Eladó családi ház

Tápiógyörgye

19.9 M Ft
3 szoba
100 m²
Vid
Eladó családi ház

Vid

29.99 M Ft
4 szoba
100 m²
Balatonszemes
Eladó téglalakás

Balatonszemes

91.5 M Ft
2 szoba
0 m²
Dunaegyháza
Eladó családi ház

Dunaegyháza

29.49 M Ft
3 szoba
70 m²
Tass
Eladó családi ház

Tass

37 M Ft
2 szoba
75 m²