Eladó családi ház
Bicske

+ 17 kép 1/20
198 000 000 Ft198 M Ft 638 710 Ft/m2
3 szoba
310 m2
építés éve:2022

Részletes adatok

Telekméret: 711 m2
Fűtés: Egyéb
Energetikai besorolás: Nem adta meg a hirdető

Az OTP Bank lakáshitel ajánlataFizetett hirdetés

+36 30 394
Maja Ingatlanközvetítő Kft.
Maja Ingatlanközvetítő Kft.

Érdekel az OTP Bank kedvezményes lakáshitel ajánlata? *

* A kérdésre „Igen” válasz bejelölése esetén, az „Üzenet küldése” gombra kattintva kijelentem, hogy az OTP Bank Nyrt. Adatkezelési tájékoztatójának tartalmát megismertem és tudomásul vettem.

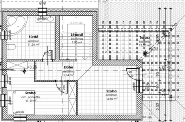
Eladó családi ház leírása

Bicskén új építésű 310 m2-es panorámás luxus házkomplexum eladó!

Jellemzője:
-3 szoba, 3 fürdőszoba, 70 m2-es amerikai konyhás nappali;
-3 szintes, több állásos garázs, irodával, 2 szinten lakórész;
-63 m2-es beépített fűtött terasz;
-15 millió Ft-os konyhabútor garanciális gépészettel együtt;
-új építésű, így az egész házra is érvényes garancia van több évre;
-1 éve épült, megbízható kivitelezővel, saját részre.

Jellemzői:
-30-as ytongból épült + 10 cm-es homlokzati szigetelés;
-H-tarifa, hőszivattyú, padlófűtés;
-10 kW napelem a tetőn, minimális rezsi költség, 0 Ft fűtés költség;
-3 rétegű nyílászárók, redőnnyel, szúnyoghálóval;
-4 db nagy teljesítményű hűtő-fűtő klímával felszerelt;
-kamerarendszer kiépítve;
-garázsban padlófűtés, szigetelt automata garázskapu;
-terasz beépítve, padlófűtés, jakuzzi;
-az egész épület tele van ablakkal, rendkívül világos, benapozott a ház.

Telek:
-711 m2-es, körbekerített;
-udvar nagy része térkövezett;
-elektromosan nyitható nagykapu;
-a kertben telepített fű, gyümölcsfák és veteményes kert kialakítva;
-9 x 6 méteres műhely a telek végében, áram bevezetve.

Elhelyezkedése:
-Bicske központjában;
-csendes utcában, ahol nincs átmenő forgalom.


További információval, megtekintéssel kapcsolatban hívjanak!

Maja Ingatlanközvetítő Iroda

Hirdetés feltöltve: 2025. 09. 13. Utoljára módosítva: 2025. 09. 21.

3 szobás családi házak ára Bicskén

Ebből az összehasonlításból megtudhatod, hogyan viszonyul a lakás ára a környékbeli családi házak átlagos árához. Ez nem azt jelenti, hogy ennyivel olcsóbb vagy drágább, mint amennyit a lakás ér, hanem hogy ennyivel tér el a környékbeli átlagtól.

Ennek a m² ára
Bicske m² ár
639 e Ft
759 e Ft 16%
Ennek az ára
Bicske átlagár
198 M Ft m Ft
79.1 m Ft -150%

Az ingatlan elhelyezkedése

Cím: Bicske

Eladó családi házak a környékről

Eladó családi ház
Eladó családi ház

Pusztaszabolcs

143.9 M Ft
4 szoba
149 m2
Eladó családi ház
Eladó családi ház

Bicske, Losonczi utca

32.6 M Ft
2 szoba
90 m2
Eladó családi ház
Eladó családi ház

Kápolnásnyék, Bem utca

119.175 M Ft
5 szoba
156 m2
Eladó családi ház
Eladó családi ház

Bicske, Losonczi utca

75 M Ft
3 szoba
68 m2
Eladó családi ház
Eladó családi ház

Székesfehérvár

59 M Ft
3 szoba
100 m2
Eladó családi ház
Eladó családi ház

Bicske

5.1 M Ft
1 szoba
20 m2
Eladó családi ház
Eladó családi ház

Székesfehérvár

64.9 M Ft
5 szoba
144 m2
Eladó családi ház
Eladó családi ház

Velence, Körmös utca

365 M Ft
8 szoba
630 m2
Eladó családi ház
Eladó családi ház

Székesfehérvár, Belváros

60 M Ft
2 szoba
100 m2
Eladó családi ház
Eladó családi ház

Bicske, Csokonai utca

38.5 M Ft
2 szoba
90 m2
Eladó családi ház
Eladó családi ház

Bicske, Baboshegy

26.9 M Ft
1 szoba
30 m2
Eladó családi ház
Eladó családi ház

Bicske

95 M Ft
4 szoba
120 m2
Eladó családi ház
Eladó családi ház

Velence

85.9 M Ft
4 szoba
103 m2
Eladó családi ház
Eladó családi ház

Bicske, Galagonyás IV. dűlő út

13 M Ft
2 szoba
37 m2
Eladó családi ház
Eladó családi ház

Bicske, Csokonai utca

38.6 M Ft
1 + 2 szoba
110 m2
Eladó családi ház
Eladó családi ház

Baracska, Határ utca

74.9 M Ft
3 szoba
155 m2
Eladó családi ház
Eladó családi ház

Bicske

86 M Ft
4 szoba
99 m2
Eladó családi ház
Eladó családi ház

Bicske

33 M Ft
3 szoba
85 m2
Eladó családi ház
Eladó családi ház

Bicske, Zártkert

18.8 M Ft
2 szoba
30 m2
Eladó családi ház
Eladó családi ház

Pusztaszabolcs, István utca

69.5 M Ft
4 szoba
149 m2
Eladó családi ház
Eladó családi ház

Bicske

130 M Ft
9 szoba
470 m2
Eladó családi ház
Eladó családi ház

Kápolnásnyék, Bem utca

108.675 M Ft
5 szoba
136 m2
Eladó családi ház
Eladó családi ház

Bicske

86 M Ft
3 szoba
96 m2
Eladó családi ház
Eladó családi ház

Lepsény, Róka sétány

64.99 M Ft
5 + 1 szoba
203 m2

Falusi CSOK ingatlanok

Eladó családi ház
Eladó családi ház

Görcsöny

79.9 M Ft
4 szoba
213 m2
Eladó ikerház
Eladó ikerház

Besnyő

89.5 M Ft
1 + 3 szoba
93 m2
Eladó téglalakás
Eladó téglalakás

Balatonszemes

244.5 M Ft
3 szoba
107 m2
Eladó családi ház
Eladó családi ház

Jászkarajenő

11 M Ft
2 szoba
52 m2
Eladó családi ház
Eladó családi ház

Szécsisziget

12.5 M Ft
1 szoba
57 m2
Eladó családi ház
Eladó családi ház

Tápióbicske

24.9 M Ft
4 szoba
83 m2
Eladó ikerház
Eladó ikerház

Seregélyes

94.9 M Ft
4 szoba
107 m2
Eladó családi ház
Eladó családi ház

Mernye

24 M Ft
3 szoba
105 m2