Kedves Felhasználónk! Rendszerfrissítés miatt az oldalunk 2026. február 9-én 12 órától várhatóan 20 óráig nem lesz elérhető. Köszönjük megértésed!
Aerogate Homes

Eladó családi ház
Belvárdgyula

Figyelem!

Ez az ingatlan a 2019.07.01-től induló falusi CSOK által támogatott településen található

+ 17 kép 1/20
29 000 000 Ft29 M Ft 268 519 Ft/m2
2 szoba
108 m2
építés éve:1950

Részletes adatok

Állapot: Felújítandó
Telekméret: 2751 m2
Fűtés: Gázkazán
Energetikai besorolás: Nem adta meg a hirdető

Az OTP Bank lakáshitel ajánlataFizetett hirdetés

+36 20 509
Szabó Ágnes
OTPIP - Pécs, Rákóczi út 19.

Érdekel az OTP Bank kedvezményes lakáshitel ajánlata? *

* A kérdésre „Igen” válasz bejelölése esetén, az „Üzenet küldése” gombra kattintva kijelentem, hogy az OTP Bank Nyrt. Adatkezelési tájékoztatójának tartalmát megismertem és tudomásul vettem.

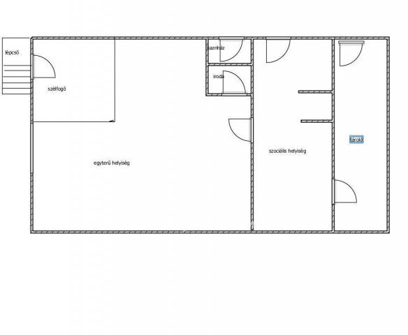
Eladó családi ház leírása

Eladó ingatlan Belvárdgyulán, vállalkozásra vagy otthonteremtésre is kiváló lehetőség!

Belvárdgyulán, Pécstől mindössze 20 km-re kínálunk megvételre egy 2751 nm-es telken elhelyezkedő, 108 nm-es ingatlant.

Az épület vegyes falazatú, az elmúlt években élelmiszerboltként működött, de könnyedén átalakítható lakóingatlanná is. Az elosztása és mérete miatt vállalkozás, üzlet vagy családi ház kialakítására egyaránt alkalmas.

Főbb jellemzők:

Gázcirkó és vegyestüzelésű kazán biztosítja a fűtést.

Víz, villany, csatorna rendszer kiépítve.

Riasztórendszerrel felszerelt.

Különálló pince.

Tágas, 2751 nm-es telek.

Elhelyezkedése, mérete és sokoldalú hasznosíthatósága miatt kiváló befektetési lehetőség! Érték arányban kedvező, támogatott hitel is igénybe vehető a vásárláshoz.

Ha felkeltette érdeklődését a hirdetés keressen bizalommal!

Referencia szám: M300751

Hirdetés feltöltve: 2025. 12. 27. Utoljára módosítva: 2026. 02. 06.

Az ingatlan elhelyezkedése

Cím: Belvárdgyula

Eladó ingatlanok a környékről

Eladó családi ház
Eladó családi ház

Pécs, Deindol, Nagydeindoli

5.9 M Ft
902 m2
Eladó panellakás
Eladó panellakás

Pécs

45.5 M Ft
2 szoba
47 m2
Eladó családi ház
Eladó családi ház

Belvárdgyula

15 M Ft
2 szoba
55 m2
Eladó családi ház
Eladó családi ház

Egyházaskozár, Hatos Gusztáv utca

4.7 M Ft
3 szoba
79 m2
Eladó téglalakás
Eladó téglalakás

Pécs

110 M Ft
5 szoba
130 m2
Eladó családi ház
Eladó családi ház

Belvárdgyula, Petőfi Sándor utca 3

7 M Ft
1 + 1 szoba
138 m2
Eladó téglalakás
Eladó téglalakás

Komló

34.6 M Ft
2 szoba
55 m2
Eladó panellakás
Eladó panellakás

Pécs

47.5 M Ft
2 szoba
47 m2
Eladó családi ház
Eladó családi ház

Hosszúhetény

42.5 M Ft
3 szoba
98 m2
Eladó családi ház
Eladó családi ház

Bóly

37.9 M Ft
3 szoba
80 m2
Eladó családi ház
Eladó családi ház

Magyarbóly

15.99 M Ft
4 szoba
110 m2
Eladó családi ház
Eladó családi ház

Belvárdgyula

15 M Ft
2 szoba
55 m2
Eladó családi ház
Eladó családi ház

Mohács

25 M Ft
4 szoba
120 m2
Eladó családi ház
Eladó családi ház

Bár

14.9 M Ft
3 szoba
82 m2
Eladó családi ház
Eladó családi ház

Lippó, Kossuth

94.652 M Ft
2 szoba
160 m2
Eladó telek
Eladó telek

Pécs

16 M Ft
1070 m²
Eladó családi ház
Eladó családi ház

Kistótfalu

21.9 M Ft
4 szoba
112 m2
Eladó családi ház
Eladó családi ház

Dunaszekcső

21.9 M Ft
4 szoba
144 m2
Eladó családi ház
Eladó családi ház

Felsőszentmárton

26.9 M Ft
2 + 1 szoba
120 m2
Eladó családi ház
Eladó családi ház

Pécs

89.9 M Ft
5 szoba
270 m2
Eladó családi ház
Eladó családi ház

Komló, Fő utca

26.99 M Ft
3 szoba
110 m2
Eladó családi ház
Eladó családi ház

Belvárdgyula

24.99 M Ft
2 szoba
110 m2
Eladó családi ház
Eladó családi ház

Versend

75 M Ft
3 szoba
123 m2
Eladó családi ház
Eladó családi ház

Belvárdgyula

27.9 M Ft
4 szoba
120 m2

Falusi CSOK ingatlanok

Eladó családi ház
Eladó családi ház

Háromfa, Kossuth

22.4 M Ft
139 m2
Eladó családi ház
Eladó családi ház

Kölked

42 M Ft
3 szoba
100 m2
Eladó téglalakás
Eladó téglalakás

Balatonszemes

123.3 M Ft
2 szoba
70 m2
Eladó családi ház
Eladó családi ház

Kisfalud

91.5 M Ft
2 szoba
70 m2
Eladó családi ház
Eladó családi ház

Csátalja, Táncsics Mihály utca 2

28 M Ft
3 szoba
100 m2
Eladó családi ház
Eladó családi ház

Vásárosdombó

14.99 M Ft
2 szoba
69 m2
Eladó családi ház
Eladó családi ház

Kemeneshőgyész

8 M Ft
2 szoba
60 m2
Eladó téglalakás
Eladó téglalakás

Kőröshegy

68 M Ft
2 szoba
65 m2

Falusi CSOK ingatlanok

Eladó családi ház
Eladó családi ház

Győrság

477 M Ft
15 szoba
1115 m2
Eladó családi ház
Eladó családi ház

Bozsok

290 M Ft
6 szoba
370 m2
Eladó családi ház
Eladó családi ház

Zsámbok

49.9 M Ft
3 + 1 szoba
89 m2
Eladó családi ház
Eladó családi ház

Gátér, Dózsa György utca 43

21.62 M Ft
1 + 1 szoba
153 m2
Eladó családi ház
Eladó családi ház

Csátalja, Táncsics Mihály utca 2

28 M Ft
3 szoba
100 m2
Eladó családi ház
Eladó családi ház

Recsk

28 M Ft
3 szoba
91 m2
Eladó családi ház
Eladó családi ház

Bajna, Kossuth L. u. 28

58.5 M Ft
7 szoba
192 m2
Eladó családi ház
Eladó családi ház

Adásztevel

8.9 M Ft
2 szoba
63 m2