Eladó családi ház
Belvárdgyula

Figyelem!

Ez az ingatlan a 2019.07.01-től induló falusi CSOK által támogatott településen található

+ 17 kép 1/20
29 000 000 Ft29 M Ft 268 519 Ft/m2
2 szoba
108 m2
építés éve:1950

Részletes adatok

Állapot: Felújítandó
Telekméret: 2751 m2
Fűtés: Gázkazán
Energetikai besorolás: Nem adta meg a hirdető

Az OTP Bank lakáshitel ajánlataFizetett hirdetés

+36 20 938
Vincze László György
OTPIP - Pécs, Rákóczi út 19.

Érdekel az OTP Bank kedvezményes lakáshitel ajánlata? *

* A kérdésre „Igen” válasz bejelölése esetén, az „Üzenet küldése” gombra kattintva kijelentem, hogy az OTP Bank Nyrt. Adatkezelési tájékoztatójának tartalmát megismertem és tudomásul vettem.

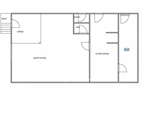
Eladó családi ház leírása

Eladó ingatlan Belvárdgyulán, vállalkozásra vagy otthonteremtésre is kiváló lehetőség!

Belvárdgyulán, Pécstől mindössze 20 km-re kínálunk megvételre egy 2751 nm-es telken elhelyezkedő, 108 nm-es ingatlant.

Az épület vegyes falazatú, az elmúlt években élelmiszerboltként működött, de könnyedén átalakítható lakóingatlanná is. Az elosztása és mérete miatt vállalkozás, üzlet vagy családi ház kialakítására egyaránt alkalmas.

Főbb jellemzők:

Gázcirkó és vegyestüzelésű kazán biztosítja a fűtést.

Víz, villany, csatorna rendszer kiépítve.

Riasztórendszerrel felszerelt.

Különálló pince.

Tágas, 2751 nm-es telek.

Elhelyezkedése, mérete és sokoldalú hasznosíthatósága miatt kiváló befektetési lehetőség! Érték arányban kedvező, támogatott hitel is igénybe vehető a vásárláshoz.

Ha felkeltette érdeklődését a hirdetés keressen bizalommal! M300751

29000000 Ft

Referencia szám: M300751

Hirdetés feltöltve: 2025. 10. 15. Utoljára módosítva: 2025. 10. 15.

2 szobás családi házak ára Belvárdgyulán

Ebből az összehasonlításból megtudhatod, hogyan viszonyul a lakás ára a környékbeli családi házak átlagos árához. Ez nem azt jelenti, hogy ennyivel olcsóbb vagy drágább, mint amennyit a lakás ér, hanem hogy ennyivel tér el a környékbeli átlagtól.

Ennek a m² ára
Belvárdgyula m² ár
269 e Ft
290 e Ft 8%
Ennek az ára
Belvárdgyula átlagár
29 M Ft m Ft
36 m Ft 19%

Az ingatlan elhelyezkedése

Cím: Belvárdgyula

Eladó ingatlanok a környékről

Eladó családi ház
Eladó családi ház

Versend

15.5 M Ft
5 szoba
140 m2
Eladó családi ház
Eladó családi ház

Mohács

25 M Ft
4 szoba
120 m2
Eladó téglalakás
Eladó téglalakás

Pécs

20.9 M Ft
1 szoba
39 m2
Eladó családi ház
Eladó családi ház

Belvárdgyula

58.65 M Ft
5 szoba
164 m2
Eladó családi ház
Eladó családi ház

Zaláta

7.5 M Ft
2 szoba
72 m2
Eladó családi ház
Eladó családi ház

Siklós

270 M Ft
8 szoba
600 m2
Eladó családi ház
Eladó családi ház

Mohács

25 M Ft
2 szoba
72 m2
Eladó családi ház
Eladó családi ház

Pécs, Szabolcsfalu, Szabadságharc utca

58.99 M Ft
3 szoba
240 m2
Eladó családi ház
Eladó családi ház

Pécs

44.9 M Ft
2 szoba
70 m2
Eladó családi ház
Eladó családi ház

Szigetvár

24.99 M Ft
2 + 1 szoba
105 m2
Eladó családi ház
Eladó családi ház

Siklós, Külterület

61.5 M Ft
2 szoba
110 m2
Eladó családi ház
Eladó családi ház

Mohács

26.5 M Ft
5 szoba
200 m2
Eladó téglalakás
Eladó téglalakás

Pécs

36.9 M Ft
2 szoba
50 m2
Eladó családi ház
Eladó családi ház

Pécs

105 M Ft
7 szoba
221 m2
Eladó telek
Eladó telek

Pécs, Málom, Keleti Kőhíd Dűlő 12/D

9.9 M Ft
1154 m²
Eladó családi ház
Eladó családi ház

Belvárdgyula, Petőfi Sándor utca 3

7 M Ft
1 + 1 szoba
138 m2
Eladó családi ház
Eladó családi ház

Pécs, Ürög, Mária dűlő

15.995 M Ft
654 m2
Eladó családi ház
Eladó családi ház

Pécs, Deindol, Nagydeindoli

5.9 M Ft
902 m2
Eladó családi ház
Eladó családi ház

Magyarbóly

15.99 M Ft
4 szoba
110 m2
Eladó családi ház
Eladó családi ház

Belvárdgyula

29 M Ft
2 szoba
108 m2
Eladó családi ház
Eladó családi ház

Belvárdgyula, Petőfi Sándor utca

37.5 M Ft
3 + 1 szoba
118 m2
Eladó családi ház
Eladó családi ház

Harkány

118 M Ft
17 szoba
739 m2
Eladó családi ház
Eladó családi ház

Belvárdgyula

15 M Ft
2 szoba
55 m2
Eladó családi ház
Eladó családi ház

Belvárdgyula

58.65 M Ft
5 szoba
164 m2

Falusi CSOK ingatlanok

Eladó téglalakás
Eladó téglalakás

Hegyeshalom

35 M Ft
43 m2
Eladó családi ház
Eladó családi ház

Füle

42.99 M Ft
2 szoba
57 m2
Eladó családi ház
Eladó családi ház

Gógánfa

13.99 M Ft
2 szoba
53 m2
Eladó családi ház
Eladó családi ház

Balatonkenese

99.8 M Ft
5 szoba
138 m2
Eladó családi ház
Eladó családi ház

Simonfa, Dózsa György utca

16.5 M Ft
1 szoba
40 m2
Eladó családi ház
Eladó családi ház

Egyed

24.9 M Ft
2 + 1 szoba
56 m2
Eladó családi ház
Eladó családi ház

Markaz

120 M Ft
4 szoba
136 m2
Eladó családi ház
Eladó családi ház

Gyömöre

47.49 M Ft
2 szoba
118 m2

Falusi CSOK ingatlanok

Eladó családi ház
Eladó családi ház

Somogyszil

9.8 M Ft
3 szoba
110 m2
Eladó családi ház
Eladó családi ház

Nagyhegyes

47.9 M Ft
2 szoba
72 m2
Eladó családi ház
Eladó családi ház

Csót

12.9 M Ft
3 szoba
104 m2
Eladó családi ház
Eladó családi ház

Szentkirályszabadja

119.9 M Ft
6 szoba
185 m2
Eladó családi ház
Eladó családi ház

Zánka

89 M Ft
5 + 2 szoba
200 m2
Eladó családi ház
Eladó családi ház

Galgagyörk

46.9 M Ft
4 szoba
105 m2
Eladó családi ház
Eladó családi ház

Nyírtura

99 M Ft
4 szoba
280 m2
Eladó családi ház
Eladó családi ház

Zsámbok

45 M Ft
2 szoba
60 m2