Astora Olive Club House

Eladó családi ház
Bánk

Figyelem!

Ez az ingatlan a 2019.07.01-től induló falusi CSOK által támogatott településen található

+ 17 kép 1/20
64 900 000 Ft64.9 M Ft 901 389 Ft/m2
2 szoba
72 m2

Részletes adatok

Állapot: Felújított
Telekméret: 403 m2
Fűtés: Egyéb
Energetikai besorolás: Nem adta meg a hirdető

Az OTP Bank lakáshitel ajánlataFizetett hirdetés

+36 30 518
Erdősi Tamás
RDS Ingatlaniroda

Érdekel az OTP Bank kedvezményes lakáshitel ajánlata? *

* A kérdésre „Igen” válasz bejelölése esetén, az „Üzenet küldése” gombra kattintva kijelentem, hogy az OTP Bank Nyrt. Adatkezelési tájékoztatójának tartalmát megismertem és tudomásul vettem.

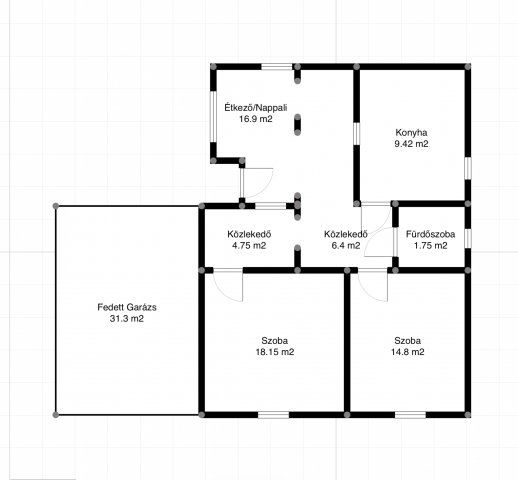
Eladó családi ház leírása

Bánk jól megközelíthető részén, a Petőfi utcában kínálunk megvételre egy frissen felújított, tehermentes és azonnal költözhető családi házat, amely 403 m²-es telken helyezkedik el. Az ingatlan 72,2 m²-es lakóteret kínál, amelyhez további 31,3 m²-es garázs és egy praktikus pince is tartozik. A ház teljes körű műszaki megújuláson esett át: új tetőt kapott, a villany-, víz- és csatornahálózat cserére került, 10 cm grafitos szigetelés biztosítja az energiatakarékos működést, a műanyag nyílászárók pedig modern megjelenést és megfelelő hőszigetelést adnak. A fűtésről hűtő-fűtő klímák gondoskodnak, a fürdőszobában padlófűtés és törölközőszárító teszi kényelmessé a mindennapokat, a meleg vizet villanybojler szolgáltatja. A rezsiköltségeket tovább csökkenti a kiépített napelemrendszer. A konyha beépített bútorzattal és gépekkel a vételár részét képezi, a terasz fedését pedig a jelenlegi tulajdonos saját költségén vállalja.

Az elrendezés praktikus és jól használható: két külön nyíló szoba, konyha, étkezőként vagy közösségi térként használható helyiség, előszoba, közlekedő és felújított fürdőszoba alkotja a lakóteret. A ház villannyal, vízzel, csatornával és gázzal egyaránt ellátott, így minden közmű rendelkezésre áll.

Az ingatlan tehermentes és rövid határidővel birtokba vehető.
Vételára 64.900.000 Ft.

Bánk Nógrád megye délnyugati részén fekszik, 60 kilométerre Budapesttől. Több irányból igen könnyen megközelíthető. A szlovák határ az E75 nemzetközi úton 15 km, Verőce 20 perc, Vác 30 perc alatt elérhető.
Bánk legnépszerűbb nevezettessége a méltán gyönyörű Bánki-tó. A tó környéke a csodás fekvésének köszönhetően remek üdülőhely. A közel hét és fél hektáros tó kedvelt úti cél a fürdőzni vágyók és a horgászok számára egyaránt. A környékén található népszerű kirándulóhelyek közül meg kell említenünk a Nógrádi várat, a Diósjenői horgásztavat, a Seholsziget Természetparkot és a Gyadai Tanösvényt, ezeken felül a Börzsöny és a Dunakanyar további mesés úti célokat tartogat az ide látogatóknak.
A települést erdők veszik körül, és mivel főútvonal nem szeli ketté a községet, a falu nyugodt, háborítatlan és barátságos. A kiváló környezeti adottságai mellet elmondható róla, hogy rendezett, tiszta és biztonságos, közössége pedig összetartó.

Hirdetés feltöltve: 2025. 11. 17. Utoljára módosítva: 2025. 11. 17.

Az ingatlan elhelyezkedése

Cím: Bánk

Eladó ingatlanok a környékről

Eladó családi ház
Eladó családi ház

Szarvasgede

18.9 M Ft
3 szoba
90 m2
Eladó családi ház
Eladó családi ház

Mátranovák

21 M Ft
3 szoba
101 m2
Eladó családi ház
Eladó családi ház

Szécsény

41.9 M Ft
5 szoba
156 m2
Eladó családi ház
Eladó családi ház

Bánk

170 M Ft
10 szoba
346 m2
Eladó téglalakás
Eladó téglalakás

Salgótarján

16 M Ft
3 szoba
67 m2
Eladó telek
Eladó telek

Dejtár

3.99 M Ft
2900 m²
Eladó téglalakás
Eladó téglalakás

Salgótarján

15 M Ft
1 + 2 szoba
50 m2
Eladó családi ház
Eladó családi ház

Nógrádsáp

19.9 M Ft
1 szoba
54 m2
Eladó családi ház
Eladó családi ház

Salgótarján

63 M Ft
5 szoba
198 m2
Eladó családi ház
Eladó családi ház

Somoskőújfalu

18 M Ft
5 szoba
130 m2
Eladó téglalakás
Eladó téglalakás

Salgótarján, Városközpont, Lőwy Sándor utca

12.8 M Ft
1 szoba
34 m2
Eladó családi ház
Eladó családi ház

Bánk, Bánki-tónál eladó telek 4 házzal befektetőknek!

420 M Ft
5875 m²
380 m2
Eladó családi ház
Eladó családi ház

Karancsalja, Ady Endre utca

7.9 M Ft
2 szoba
45 m2
Eladó telek
Eladó telek

Pásztó

13.5 M Ft
631 m²
Eladó családi ház
Eladó családi ház

Pásztó

25.99 M Ft
2 szoba
71 m2
Eladó nyaraló
Eladó nyaraló

Bátonyterenye

24 M Ft
1 + 2 szoba
40 m2
Eladó családi ház
Eladó családi ház

Romhány

99.5 M Ft
5 szoba
240 m2
Eladó panellakás
Eladó panellakás

Salgótarján

24 M Ft
3 szoba
60 m2
Eladó családi ház
Eladó családi ház

Jobbágyi

19.999 M Ft
2 + 1 szoba
75 m2
Eladó családi ház
Eladó családi ház

Diósjenő

31.5 M Ft
3 szoba
57 m2
Eladó családi ház
Eladó családi ház

Dejtár

52 M Ft
5 szoba
181 m2
Eladó téglalakás
Eladó téglalakás

Rétság

44.9 M Ft
2 szoba
55 m2
Eladó családi ház
Eladó családi ház

Erdőtarcsa

18.7 M Ft
2 szoba
84 m2
Eladó családi ház
Eladó családi ház

Tolmács

39.9 M Ft
3 szoba
85 m2

Falusi CSOK ingatlanok

Eladó családi ház
Eladó családi ház

Jakabszállás

320 M Ft
15 szoba
665 m2
Eladó családi ház
Eladó családi ház

Csátalja, Dózsa György utca

36 M Ft
3 szoba
110 m2
Eladó családi ház
Eladó családi ház

Nagykarácsony

34.9 M Ft
3 szoba
112 m2
Eladó családi ház
Eladó családi ház

Hernádnémeti

18.9 M Ft
2 szoba
62 m2
Eladó téglalakás
Eladó téglalakás

Balatonszemes

119.9 M Ft
2 szoba
81 m2
Eladó családi ház
Eladó családi ház

Tápszentmiklós

64.9 M Ft
5 szoba
110 m2
Eladó családi ház
Eladó családi ház

Olaszfa

39.9 M Ft
4 szoba
96 m2
Eladó családi ház
Eladó családi ház

Szigetcsép

110 M Ft
3 szoba
137 m2

Falusi CSOK ingatlanok

Eladó családi ház
Eladó családi ház

Rábapaty

110 M Ft
5 szoba
132 m2
Eladó családi ház
Eladó családi ház

Kondorfa, Fővég utca

24.9 M Ft
3 szoba
102 m2
Eladó családi ház
Eladó családi ház

Tihany, Csokonai utca 78

559 M Ft
8 szoba
340 m2
Eladó családi ház
Eladó családi ház

Cece

23.5 M Ft
3 szoba
66 m2
Eladó családi ház
Eladó családi ház

Örkény

49.5 M Ft
5 szoba
100 m2
Eladó családi ház
Eladó családi ház

Jakabszállás

320 M Ft
15 szoba
665 m2
Eladó családi ház
Eladó családi ház

Tiszaroff

12.9 M Ft
3 szoba
87 m2
Eladó családi ház
Eladó családi ház

Kenyeri

39.9 M Ft
3 szoba
94 m2