Seven Pearl

Eladó családi ház
Balkány

+ 17 kép 1/20
36 000 000 Ft36 M Ft 450 000 Ft/m2
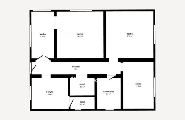
2 + 2 szoba
80 m²
építés éve:1970

Részletes adatok

Állapot: Átlagos
Telekméret: 674 m2
Fűtés: Gázkazán
Komfort: Összkomfortos
Energetikai besorolás: Nem adta meg a hirdető

Az OTP Bank lakáshitel ajánlataFizetett hirdetés

+36 31 771
Huszár Gabriella
OTPIP Nyíregyháza Hunyadi u.

Érdekel az OTP Bank kedvezményes lakáshitel ajánlata? *

* A kérdésre „Igen” válasz bejelölése esetén, az „Üzenet küldése” gombra kattintva kijelentem, hogy az OTP Bank Nyrt. Adatkezelési tájékoztatójának tartalmát megismertem és tudomásul vettem.

Eladó családi ház leírása

Balkány egyik legjobb utcájában, központi elhelyezkedéssel, mégis csendes, nyugodt környezetben kínálok megvételre egy kiváló adottságokkal rendelkező családi házat. Tökéletes választás lehet azok számára, akik értékálló, szerethető otthont keresnek rendezett környezetben.
A 80 nm alapterületű, masszív szilikát falazatú ház praktikus elrendezésének köszönhetően 2 és 2 fél szobás kialakítással rendelkezik, így könnyedén igazítható egy család igényeihez. A világos, élhető terek kiváló alapot biztosítanak egy modern, stílusos otthon megteremtéséhez, akár kisebb korszerűsítést követően is. A közel 20 nm-es, kertre néző terasz ideális helyszíne lehet meghitt reggeleknek, baráti beszélgetéseknek vagy nyugodt, esti pihenésnek.
A 674 nm-es, teljesen körbekerített, gondozott telek biztonságos és barátságos életteret kínál. Az udvaron található egy tágas, könnyűszerkezetes kerti tároló, amely alatt teljes alapterületében pince került kialakításra tökéletes megoldás tárolásra, műhelynek vagy akár hobbitérnek. A ház fűtéséről gázkazán és vegyes tüzelésű kazán egyaránt gondoskodik, így a fenntartás rugalmasan alakítható. A 380 V ipari áram további lehetőségeket biztosít, akár vállalkozási tevékenységhez is. A műanyag nyílászárók utcafronton redőnnyel hozzájárulnak a komforthoz és az energiahatékonysághoz.
Az elhelyezkedés kiemelkedő: buszmegálló, iskola, óvoda, bölcsőde, posta, könyvtár, templom és üzletek mindössze 5-10 perc sétatávolságra találhatók, így a mindennapi élet kényelmesen, autóhasználat nélkül is megoldható. A ház Balkány központjában, mégis csendes zsákutcában helyezkedik el, ahol a nyugalom és a praktikum tökéletes egyensúlyban van.
Igény esetén az ingatlan bútorzattal együtt is megvásárolható, így akár azonnal költözhető, otthonos környezet várja új tulajdonosát.

OTP Banki hátterünknek köszönhetően finanszírozási igényekben (pl. Otthon Start Hitelprogram, Babaváró, Falusi CSOK, CSOK Plusz, Lakáshitel, Személyi kölcsön stb.), illetve biztosítások tekintetében is díjmentesen, soron kívüli ügyintézéssel segítem ügyfeleim! Referenciaszám: M323969

Hirdetés feltöltve: 2026. 04. 02. Utoljára módosítva: 2026. 05. 12.

4 szobás családi házak ára Balkányban

Ebből az összehasonlításból megtudhatod, hogyan viszonyul a lakás ára a környékbeli családi házak átlagos árához. Ez nem azt jelenti, hogy ennyivel olcsóbb vagy drágább, mint amennyit a lakás ér, hanem hogy ennyivel tér el a környékbeli átlagtól.

Ennek a m² ára
Balkány m² ár
450 e Ft
255 e Ft -77%
Ennek az ára
Balkány átlagár
36 M Ft m Ft
37 m Ft 3%

Az ingatlan elhelyezkedése

Cím: Balkány

Eladó családi házak a környékről

Nyíregyháza
Eladó családi ház

Nyíregyháza

90 M Ft
3 szoba
170 m²
Nyíregyháza
Eladó családi ház

Nyíregyháza

89.9 M Ft
5 szoba
274 m²
Nyírtelek
Eladó családi ház

Nyírtelek

130 M Ft
3 szoba
159 m²
Balkány
Eladó családi ház

Balkány

23.9 M Ft
3 szoba
100 m²
Balkány
Eladó családi ház

Balkány

35 M Ft
2 + 1 szoba
100 m²
Nyíregyháza
Eladó családi ház

Nyíregyháza

250 M Ft
4 szoba
440 m²
Balkány
Eladó családi ház

Balkány

38 M Ft
3 szoba
85 m²
Balkány, Dankó Pista utca 8
Eladó családi ház

Balkány

6.5 M Ft
1 + 1 szoba
67 m²
Balkány
Eladó családi ház

Balkány

35 M Ft
2 + 1 szoba
100 m²
Nyíregyháza
Eladó családi ház

Nyíregyháza

90 M Ft
3 + 1 szoba
100 m²
Nyíregyháza
Eladó családi ház

Nyíregyháza

90 M Ft
5 szoba
210 m²
Kemecse
Eladó családi ház

Kemecse

27 M Ft
2 + 1 szoba
96 m²
Nyíregyháza
Eladó családi ház

Nyíregyháza

100 M Ft
4 szoba
220 m²
Nyíregyháza
Eladó családi ház

Nyíregyháza

65 M Ft
3 szoba
135 m²
Balkány
Eladó családi ház

Balkány

35 M Ft
2 + 1 szoba
100 m²
Balkány
Eladó családi ház

Balkány

23.9 M Ft
3 szoba
100 m²
Balkány
Eladó családi ház

Balkány

26.5 M Ft
3 + 1 szoba
120 m²
Kemecse
Eladó családi ház

Kemecse

34.9 M Ft
2 szoba
100 m²
Balkány
Eladó családi ház

Balkány

19.5 M Ft
3 szoba
69 m²
Napkor
Eladó családi ház

Napkor

115 M Ft
5 szoba
292 m²
Balkány
Eladó családi ház

Balkány

23.9 M Ft
3 szoba
100 m²
Balkány
Eladó családi ház

Balkány

23.9 M Ft
3 szoba
100 m²
Nyíregyháza
Eladó családi ház

Nyíregyháza

69.9 M Ft
3 szoba
140 m²
Balkány
Eladó családi ház

Balkány

38 M Ft
3 szoba
85 m²

Falusi CSOK ingatlanok

Balatonudvari
Eladó családi ház

Balatonudvari

230 M Ft
9 szoba
260 m²
Tóalmás
Eladó családi ház

Tóalmás

38.9 M Ft
3 szoba
62 m²
Végegyháza
Eladó családi ház

Végegyháza

62.9 M Ft
4 + 1 szoba
150 m²
Rétság
Eladó téglalakás

Rétság

39.9 M Ft
2 szoba
55 m²
Hegyeshalom, Margaréta utca 12
Eladó téglalakás

Hegyeshalom

32.89 M Ft
1 szoba
27 m²
Sumony
Eladó családi ház

Sumony

19 M Ft
4 szoba
120 m²
Mesteri
Eladó családi ház

Mesteri

29.7 M Ft
4 szoba
140 m²
Rakamaz
Eladó családi ház

Rakamaz

86.9 M Ft
5 szoba
280 m²