Eladó családi ház
Balatonfőkajár

Figyelem!

Ez az ingatlan a 2019.07.01-től induló falusi CSOK által támogatott településen található

+ 17 kép 1/20
69 990 000 Ft69.99 M Ft 349 950 Ft/m2
3 + 2 szoba
200 m2
építés éve:1980

Részletes adatok

Állapot: Felújítandó
Telekméret: 1344 m2
Fűtés: Egyéb
Energetikai besorolás: Nem adta meg a hirdető

Az OTP Bank lakáshitel ajánlataFizetett hirdetés

+36 30 345
Maczucza Márton
OTP Ingatlanpont Veszprém

Érdekel az OTP Bank kedvezményes lakáshitel ajánlata? *

* A kérdésre „Igen” válasz bejelölése esetén, az „Üzenet küldése” gombra kattintva kijelentem, hogy az OTP Bank Nyrt. Adatkezelési tájékoztatójának tartalmát megismertem és tudomásul vettem.

Eladó családi ház leírása

Eladó Veszprém vármegyében, Balatonfőkajár településen egy háromszintes családi ház!

A téglaépítésű, 150 m2 hasznos alapterületű ingatlan a település központjától néhány perc séta távolságra helyezkedik el.

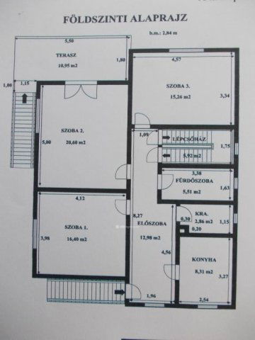
Földszintjén 3 szoba, konyha és étkező, fürdőszoba vécével, előszoba, és lépcsőház kerültek kialakításra, valamint egy 20 m2-es terasz kapcsolódik hozzá.

A tetőtérben 2 szoba, közlekedő kapott helyet és még egy további fürdőszoba kialakítható itt.

A 45 m2-es alagsorban garázs és tároló találhatók.

A ház fűtése vegyestüzelésű kazánnal megoldott, de rendelkezésre áll egy gázkazán is, amely jelenleg nincs használatban. A meleg vizet villanybojler állítja elő.

A telken belül található még egy 80 m2-es épület is, melyet jelenleg műhelynek használnak, így a 380 V is be van vezetve.

A bekerített telek 1344 m2-es, nagyobb része gondozott kert, termő gyümölcsfákkal.

Amennyiben hirdetésem felkeltette az érdeklődését, keressen bizalommal, az ingatlan időpont-egyeztetést követően rugalmasan megtekinthető! Jöjjön el, nézze meg, tegyen rá ajánlatot! Nálunk minden megtekintés DÍJMENTES!

Az OTP Ingatlanpont teljes körű ügyintézéssel áll az eladók és a vevők rendelkezésére. A kínálatunkból választott ingatlan finanszírozásához kedvezményes hitelkonstrukciót kínálunk. Az adásvételi szerződés megkötéséhez igény szerint megbízható ügyvédi közreműködést biztosítunk, és segítséget nyújtunk az adásvételhez kapcsolódó ügyek intézéséhez is!

Hirdetés feltöltve: 2025. 10. 20. Utoljára módosítva: 2025. 10. 20.

Az ingatlan elhelyezkedése

Cím: Balatonfőkajár

Eladó ingatlanok a környékről

Eladó családi ház
Eladó családi ház

Balatonfőkajár

139.9 M Ft
3 szoba
115 m2
Eladó családi ház
Eladó családi ház

Monoszló

1914.479 M Ft
9 szoba
1615 m2
Eladó telek
Eladó telek

Ajka, Zöldliget

8.5 M Ft
1333 m²
Eladó családi ház
Eladó családi ház

Balatonfőkajár

74.9 M Ft
4 szoba
112 m2
Eladó családi ház
Eladó családi ház

Badacsonytördemic

79.9 M Ft
5 szoba
165 m2
Eladó családi ház
Eladó családi ház

Balatonfőkajár

99 M Ft
5 szoba
145 m2
Eladó családi ház
Eladó családi ház

Balatonfüred

449.9 M Ft
9 szoba
478 m2
Eladó családi ház
Eladó családi ház

Bakonyjákó

22 M Ft
2 szoba
78 m2
Eladó családi ház
Eladó családi ház

Várpalota

55 M Ft
4 + 2 szoba
113 m2
Eladó téglalakás
Eladó téglalakás

Pápa

28 M Ft
2 szoba
54 m2
Eladó családi ház
Eladó családi ház

Monoszló

1914.479 M Ft
9 szoba
1615 m2
Eladó családi ház
Eladó családi ház

Balatonfőkajár

65 M Ft
3 szoba
97 m2
Eladó családi ház
Eladó családi ház

Balatonfőkajár

60 M Ft
3 + 1 szoba
145 m2
Eladó családi ház
Eladó családi ház

Ábrahámhegy, Zsákutca

82.9 M Ft
3 + 2 szoba
110 m2
Eladó családi ház
Eladó családi ház

Balatonkenese

99.9 M Ft
3 szoba
110 m2
Eladó családi ház
Eladó családi ház

Alsóörs, Endrődi Sándor utca

65.9 M Ft
3 szoba
95 m2
Eladó téglalakás
Eladó téglalakás

Pápa

36 M Ft
3 + 1 szoba
146 m2
Eladó családi ház
Eladó családi ház

Balatonfőkajár

69.99 M Ft
3 + 2 szoba
200 m2
Eladó családi ház
Eladó családi ház

Balatonfőkajár

139.9 M Ft
5 szoba
200 m2
Eladó családi ház
Eladó családi ház

Veszprém

149 M Ft
4 + 1 szoba
250 m2
Eladó családi ház
Eladó családi ház

Balatonfőkajár

52.9 M Ft
2 szoba
75 m2
Eladó családi ház
Eladó családi ház

Csehbánya

36 M Ft
4 szoba
123 m2
Eladó családi ház
Eladó családi ház

Balatonfőkajár

46.9 M Ft
2 szoba
80 m2
Eladó családi ház
Eladó családi ház

Csopak

266 M Ft
9 szoba
350 m2

Falusi CSOK ingatlanok

Eladó családi ház
Eladó családi ház

Balatonvilágos

78 M Ft
3 szoba
43 m2
Eladó családi ház
Eladó családi ház

Balatonkeresztúr

117 M Ft
3 + 2 szoba
154 m2
Eladó családi ház
Eladó családi ház

Galambok

58 M Ft
3 szoba
107 m2
Eladó családi ház
Eladó családi ház

Balatonvilágos

78 M Ft
3 szoba
43 m2
Eladó családi ház
Eladó családi ház

Dunaegyháza, Rákóczi Ferenc utca

19.9 M Ft
3 szoba
120 m2
Eladó családi ház
Eladó családi ház

Szalánta

149.9 M Ft
10 szoba
301 m2
Eladó családi ház
Eladó családi ház

Galgahévíz

38 M Ft
4 szoba
101 m2
Eladó családi ház
Eladó családi ház

Galgagyörk

46.9 M Ft
4 szoba
105 m2

Falusi CSOK ingatlanok

Eladó családi ház
Eladó családi ház

Pilisszentkereszt

139 M Ft
5 szoba
220 m2
Eladó családi ház
Eladó családi ház

Hévízgyörk, Fenyves utca

149 M Ft
4 szoba
220 m2
Eladó családi ház
Eladó családi ház

Nemeskeresztúr, Petőfi utca 22

6.85 M Ft
1 + 1 szoba
99 m2
Eladó családi ház
Eladó családi ház

Kétegyháza

34.9 M Ft
3 szoba
125 m2
Eladó családi ház
Eladó családi ház

Balatonvilágos

78 M Ft
3 szoba
43 m2
Eladó családi ház
Eladó családi ház

Somogymeggyes

14 M Ft
3 szoba
86 m2
Eladó családi ház
Eladó családi ház

Nagyhegyes

47.9 M Ft
2 szoba
72 m2
Eladó családi ház
Eladó családi ház

Bezenye

84.9 M Ft
4 + 1 szoba
145 m2