Eladó családi ház
Balatonfőkajár

Figyelem!

Ez az ingatlan a 2019.07.01-től induló falusi CSOK által támogatott településen található

+ 17 kép 1/20
69 990 000 Ft69.99 M Ft 349 950 Ft/m2
3 + 2 szoba
200 m2
építés éve:1980

Részletes adatok

Állapot: Felújítandó
Telekméret: 1344 m2
Fűtés: Egyéb
Energetikai besorolás: Nem adta meg a hirdető

Az OTP Bank lakáshitel ajánlataFizetett hirdetés

+36 30 345
Maczucza Márton
OTP Ingatlanpont Veszprém

Érdekel az OTP Bank kedvezményes lakáshitel ajánlata? *

* A kérdésre „Igen” válasz bejelölése esetén, az „Üzenet küldése” gombra kattintva kijelentem, hogy az OTP Bank Nyrt. Adatkezelési tájékoztatójának tartalmát megismertem és tudomásul vettem.

Eladó családi ház leírása

Eladó Veszprém vármegyében, Balatonfőkajár településen egy háromszintes családi ház!

A téglaépítésű, 150 m2 hasznos alapterületű ingatlan a település központjától néhány perc séta távolságra helyezkedik el.

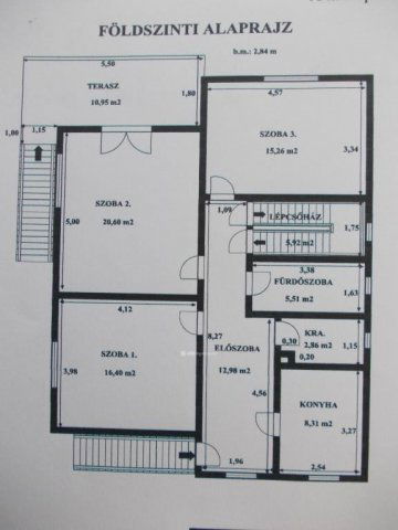
Földszintjén 3 szoba, konyha és étkező, fürdőszoba vécével, előszoba, és lépcsőház kerültek kialakításra, valamint egy 20 m2-es terasz kapcsolódik hozzá.

A tetőtérben 2 szoba, közlekedő kapott helyet és még egy további fürdőszoba kialakítható itt.

A 45 m2-es alagsorban garázs és tároló találhatók.

A ház fűtése vegyestüzelésű kazánnal megoldott, de rendelkezésre áll egy gázkazán is, amely jelenleg nincs használatban. A meleg vizet villanybojler állítja elő.

A telken belül található még egy 80 m2-es épület is, melyet jelenleg műhelynek használnak, így a 380 V is be van vezetve.

A bekerített telek 1344 m2-es, nagyobb része gondozott kert, termő gyümölcsfákkal.

Amennyiben hirdetésem felkeltette az érdeklődését, keressen bizalommal, az ingatlan időpont-egyeztetést követően rugalmasan megtekinthető! Jöjjön el, nézze meg, tegyen rá ajánlatot! Nálunk minden megtekintés DÍJMENTES!

Az OTP Ingatlanpont teljes körű ügyintézéssel áll az eladók és a vevők rendelkezésére. A kínálatunkból választott ingatlan finanszírozásához kedvezményes hitelkonstrukciót kínálunk. Az adásvételi szerződés megkötéséhez igény szerint megbízható ügyvédi közreműködést biztosítunk, és segítséget nyújtunk az adásvételhez kapcsolódó ügyek intézéséhez is!

Hirdetés feltöltve: 2025. 10. 20. Utoljára módosítva: 2025. 10. 20.

Az ingatlan elhelyezkedése

Cím: Balatonfőkajár

Eladó ingatlanok a környékről

Eladó családi ház
Eladó családi ház

Balatonkenese

99.9 M Ft
3 szoba
110 m2
Eladó családi ház
Eladó családi ház

Balatonfőkajár

99 M Ft
5 szoba
145 m2
Eladó családi ház
Eladó családi ház

Csehbánya

36 M Ft
4 szoba
123 m2
Eladó családi ház
Eladó családi ház

Balatonfőkajár

74.9 M Ft
4 szoba
112 m2
Eladó családi ház
Eladó családi ház

Balatonfőkajár

52.9 M Ft
2 szoba
75 m2
Eladó családi ház
Eladó családi ház

Balatonfőkajár

54.5 M Ft
3 szoba
75 m2
Eladó panellakás
Eladó panellakás

Várpalota

38.2 M Ft
2 szoba
49 m2
Eladó ikerház
Eladó ikerház

Pápa

58.9 M Ft
3 szoba
118 m2
Eladó családi ház
Eladó családi ház

Várpalota

55 M Ft
4 + 2 szoba
113 m2
Eladó családi ház
Eladó családi ház

Balatonfűzfő

270 M Ft
5 + 4 szoba
270 m2
Eladó családi ház
Eladó családi ház

Veszprém

149 M Ft
6 + 1 szoba
243 m2
Eladó családi ház
Eladó családi ház

Lesencetomaj

90 M Ft
5 + 1 szoba
180 m2
Eladó családi ház
Eladó családi ház

Ábrahámhegy

190 M Ft
5 szoba
112 m2
Eladó családi ház
Eladó családi ház

Badacsonytördemic

79.9 M Ft
5 szoba
165 m2
Eladó családi ház
Eladó családi ház

Balatonfőkajár

114.9 M Ft
3 szoba
124 m2
Eladó családi ház
Eladó családi ház

Városlőd

23 M Ft
2 szoba
95 m2
Eladó családi ház
Eladó családi ház

Monoszló

1914.479 M Ft
9 szoba
1615 m2
Eladó családi ház
Eladó családi ház

Balatonfőkajár

52.9 M Ft
2 szoba
75 m2
Eladó családi ház
Eladó családi ház

Balatonfőkajár

59.9 M Ft
5 szoba
180 m2
Eladó nyaraló
Eladó nyaraló

Balatonfüred

74.9 M Ft
1 + 1 szoba
34 m2
Eladó családi ház
Eladó családi ház

Tapolca

89.9 M Ft
5 szoba
120 m2
Eladó családi ház
Eladó családi ház

Dabrony

2.2 M Ft
2 szoba
65 m2
Eladó családi ház
Eladó családi ház

Balatonfőkajár

139.9 M Ft
3 szoba
115 m2
Eladó családi ház
Eladó családi ház

Balatonfőkajár

95 M Ft
3 szoba
146 m2

Falusi CSOK ingatlanok

Eladó családi ház
Eladó családi ház

Nagyhegyes

47.9 M Ft
2 szoba
72 m2
Eladó téglalakás
Eladó téglalakás

Hegyeshalom

35 M Ft
43 m2
Eladó téglalakás
Eladó téglalakás

Felsőszentiván, Jókai Mór u 9 fszt 2

17.56 M Ft
1 + 1 szoba
90 m2
Eladó családi ház
Eladó családi ház

Nagyberény

22.9 M Ft
2 szoba
85 m2
Eladó téglalakás
Eladó téglalakás

Kőröshegy

64.9 M Ft
3 szoba
52 m2
Eladó családi ház
Eladó családi ház

Tés

34.9 M Ft
2 szoba
60 m2
Eladó családi ház
Eladó családi ház

Újhartyán, Epres utca

59.9 M Ft
3 szoba
103 m2
Eladó családi ház
Eladó családi ház

Gyönk, Petőfi Sándor utca 344

7.06 M Ft
1 + 1 szoba
139 m2

Falusi CSOK ingatlanok

Eladó családi ház
Eladó családi ház

Nyékládháza

45 M Ft
3 szoba
90 m2
Eladó családi ház
Eladó családi ház

Mezőkeresztes

23.9 M Ft
2 + 1 szoba
82 m2
Eladó családi ház
Eladó családi ház

Ábrahámhegy

299 M Ft
6 szoba
235 m2
Eladó családi ház
Eladó családi ház

Balatonvilágos

78 M Ft
3 szoba
43 m2
Eladó családi ház
Eladó családi ház

Öttömös, Béke utca 13. Hivatkozási szám: 006212

19.11 M Ft
1 + 1 szoba
102 m2
Eladó családi ház
Eladó családi ház

Galgagyörk

30 M Ft
3 szoba
123 m2
Eladó családi ház
Eladó családi ház

Sárosd

22.5 M Ft
3 szoba
61 m2
Eladó családi ház
Eladó családi ház

Recsk

21 M Ft
4 szoba
220 m2