Kiadó üzlethelyiség
Kaposvár, Belváros, Fő
Részletes adatok
Az OTP Bank lakáshitel ajánlataFizetett hirdetés
A tájékoztatás nem teljes körű és nem minősül ajánlattételnek. Az OTP Évnyerő Lakáshitelei 1 éves türelmi idős kölcsönök, amellyel az első 12 hónapban alacsonyabb a havi törlesztőrészlet. A tőke törlesztését a 13. hónaptól kell megkezdeni.
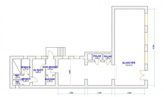
Kiadó üzlethelyiség leírása
Kaposváron a sétáló utcában 140 m2 alapterületű utcai bejáratos, utcafronti kirakatokkal rendelkező földszinti üzlethzelyiség kereskedelmi-vagy szolgáltató tevékenységre kiadó.
Az üzlet jelenleg is működik, így legkorábban 2025.01.01-től vehető birtokba.
Hirdetés feltöltve: 2025. 09. 30. Utoljára módosítva: 2025. 10. 01.
üzlethelyiségek ára Kaposváron
Ebből az összehasonlításból megtudhatod, hogyan viszonyul a lakás ára a környékbeli üzlethelyiségek átlagos árához. Ez nem azt jelenti, hogy ennyivel olcsóbb vagy drágább, mint amennyit a lakás ér, hanem hogy ennyivel tér el a környékbeli átlagtól.
Az ingatlan elhelyezkedése
Cím: Kaposvár, Belváros, Fő
Kiadó ingatlanok a környékről

Kaposvár, Ivánfahegy, Kaposszentjakab, Pécsi utca
