Oasis Residence

Kiadó téglalakás, albérlet
Tata, 1. emelet

+ 4 kép 1/7
200 000 Ft200 E Ft / hó 3 922 Ft/m2
3 szoba
51 m2
1. emelet
építés éve:1970

Részletes adatok

Fűtés: Elektromos
Közmű: Villany, Csatorna
Energetikai besorolás: Nem adta meg a hirdető

Az OTP Bank lakáshitel ajánlataFizetett hirdetés

Hitelösszeg 10 millió Ft
Futamidő 20 év
Induló törlesztőrészlet 67 508 Ft
Törlesztőrészlet a 13. hónaptól 86 071 Ft
THM 8,6 %

A tájékoztatás nem teljes körű és nem minősül ajánlattételnek. Az OTP Évnyerő Lakáshitelei 1 éves türelmi idős kölcsönök, amellyel az első 12 hónapban alacsonyabb a havi törlesztőrészlet. A tőke törlesztését a 13. hónaptól kell megkezdeni.

    Részletes kalkuláció
    +36 70 435
    Szabó Attila
    referens

    Érdekel az OTP Bank kedvezményes lakáshitel ajánlata? *

    * A kérdésre „Igen” válasz bejelölése esetén, az „Üzenet küldése” gombra kattintva kijelentem, hogy az OTP Bank Nyrt. Adatkezelési tájékoztatójának tartalmát megismertem és tudomásul vettem.

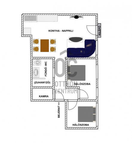
    Kiadó téglalakás, albérlet leírása

    Felújított , nappali-konyhás + 2 hálószobás, I. emeleti lakás várja albérlőjét Tatán, az Öreg-tótól 200m-re.

    Az ingatlan teljeskörűen és ízlésesen lett felújítva, rengeteg praktikus átalakítással megspékelve.

    A nappaliba bekerült a konyha, így a család akár a pihenéssel, akár az étkezés közben, akár a főzésnél együtt lehet.
    2 külön nyíló hálószoba lett kialakítva, ezzel megszűnt a helyiségeken keresztül járás.
    A fürdőszoba a régi kád helyett üvegparavános, tágas és modern zuhanyfülkét kapott.
    A bejáratnál egy klasszikus előszoba is kialakult, a folyosón pedig további helyet takarítottak meg a praktikus tolóajtóknak köszönhetően.
    A tárolásra egy külön nyíló kamra helyiség áll rendelkezésre, ami a mosógépnek és a bojlernek is helyet ad, illetve a folyosón kialakítottak egy beugrót, ahova gardrób szekrény került.

    Az ingatlan műanyag nyílászárókkal rendelkezik és egy szigetelt társasház része.
    A fűtés helyiségeként elhelyezett elektromos fali fűtőpanelokkal történik, így tetszőlegesen szabályozható.

    A lakás konyhabútorral, kerámia főzőlappal, elektromos sütővel, hűtővel, étkezőasztallal, valamint fürdőszoba bútorral és gardrób szekrénnyel felszerelt.

    Központi elhelyezkedése ellenére kimondottan csendes környezetben fekszik,
    és gyalogos távolságra van a hétköznapi szükségletektől (boltok, buszállomás, iskola, óvoda, orvosi rendelő stb.) valamint Tata nevezetességeitől (Öreg-tó, Vár és környéke ).

    Parkolásra közvetlenül társasház mellett rengeteg hely áll rendelkezésre.

    A lakás azonnal költözhető.
    2 havi kaució szükséges.
    A lakás eddig is mentes volt a dohányzástól és ezután sem megengedett.

    Komoly, rendes albérlő(ke)t keresünk, hosszú távú együttműködésre, aki(k) akár munkáltatói igazolást is be tudna(k) mutatni a bérleti szerződés előtt.
    Mivel 51nm-es lakásról van szó, kérem vegyék figyelemebe, hogy a tulajdonos nem nagycsaládosok jelentkezését várja.

    Ha szeretné megtekinteni a lakást, az eredményesebb kommunikáció érdekében kérem, mindenképp telefonon vegye fel a kapcsolatot.
    Keressen bizalommal!

    Hirdetés feltöltve: 2025. 12. 13. Utoljára módosítva: 2025. 12. 14.

    3 szobás téglalakások ára Tatán

    Ebből az összehasonlításból megtudhatod, hogyan viszonyul a lakás ára a környékbeli téglalakások átlagos árához. Ez nem azt jelenti, hogy ennyivel olcsóbb vagy drágább, mint amennyit a lakás ér, hanem hogy ennyivel tér el a környékbeli átlagtól.

    Ennek a m² ára
    Tata m² ár
    4 e Ft
    4 e Ft 9%
    Ennek az ára
    Tata átlagár
    200 E Ft / hó m Ft
    0.4 m Ft 44%

    Az ingatlan elhelyezkedése

    Cím: Tata, 1. emelet

    Kiadó téglalakások, albérletek a környékről

    Kiadó téglalakás, albérlet
    Kiadó téglalakás, albérlet

    Tata

    400 E Ft / hó
    4 szoba
    104 m2
    Kiadó téglalakás, albérlet
    Kiadó téglalakás, albérlet

    Tata

    290 E Ft / hó
    2 + 1 szoba
    72 m2
    Kiadó téglalakás, albérlet
    Kiadó téglalakás, albérlet

    Tata

    290 E Ft / hó
    3 szoba
    80 m2
    Kiadó téglalakás, albérlet
    Kiadó téglalakás, albérlet

    Oroszlány

    150 E Ft / hó
    1 szoba
    40 m2
    Kiadó téglalakás, albérlet
    Kiadó téglalakás, albérlet

    Tata

    290 E Ft / hó
    3 szoba
    72 m2
    Kiadó téglalakás, albérlet
    Kiadó téglalakás, albérlet

    Esztergom, Rákóczi Ferenc tér

    320 E Ft / hó
    3 szoba
    80 m2
    Kiadó téglalakás, albérlet
    Kiadó téglalakás, albérlet

    Komárom

    400 E Ft / hó
    2 + 1 szoba
    56 m2
    Kiadó téglalakás, albérlet
    Kiadó téglalakás, albérlet

    Tatabánya

    250 E Ft / hó
    2 szoba
    48 m2
    Kiadó téglalakás, albérlet
    Kiadó téglalakás, albérlet

    Tata

    420 E Ft / hó
    5 szoba
    82 m2
    Kiadó téglalakás, albérlet
    Kiadó téglalakás, albérlet

    Komárom

    470 E Ft / hó
    4 szoba
    87 m2
    Kiadó téglalakás, albérlet
    Kiadó téglalakás, albérlet

    Tata

    230 E Ft / hó
    3 szoba
    70 m2
    Kiadó téglalakás, albérlet
    Kiadó téglalakás, albérlet

    Tata

    320 E Ft / hó
    1 szoba
    74 m2
    Kiadó téglalakás, albérlet
    Kiadó téglalakás, albérlet

    Tata

    400 E Ft / hó
    4 szoba
    104 m2
    Kiadó téglalakás, albérlet
    Kiadó téglalakás, albérlet

    Tata, Tópart utca

    461 E Ft / hó
    4 szoba
    113 m2
    Kiadó téglalakás, albérlet
    Kiadó téglalakás, albérlet

    Tata

    560 E Ft / hó
    5 szoba
    112 m2
    Kiadó téglalakás, albérlet
    Kiadó téglalakás, albérlet

    Tatabánya

    185 E Ft / hó
    2 szoba
    59 m2
    Kiadó téglalakás, albérlet
    Kiadó téglalakás, albérlet

    Dunaszentmiklós

    200 E Ft / hó
    4 szoba
    110 m2
    Kiadó téglalakás, albérlet
    Kiadó téglalakás, albérlet

    Tata

    290 E Ft / hó
    3 szoba
    75 m2
    Kiadó téglalakás, albérlet
    Kiadó téglalakás, albérlet

    Tata, Tópart utca

    461 E Ft / hó
    4 szoba
    113 m2
    Kiadó téglalakás, albérlet
    Kiadó téglalakás, albérlet

    Tata

    290 E Ft / hó
    3 szoba
    76 m2
    Kiadó téglalakás, albérlet
    Kiadó téglalakás, albérlet

    Tata

    560 E Ft / hó
    5 szoba
    112 m2
    Kiadó téglalakás, albérlet
    Kiadó téglalakás, albérlet

    Tatabánya

    180 E Ft / hó
    2 szoba
    55 m2
    Kiadó téglalakás, albérlet
    Kiadó téglalakás, albérlet

    Tata

    650 E Ft / hó
    5 szoba
    112 m2
    Kiadó téglalakás, albérlet
    Kiadó téglalakás, albérlet

    Tata

    560 E Ft / hó
    4 szoba
    120 m2

    Falusi CSOK ingatlanok

    Eladó családi ház
    Eladó családi ház

    Hosszúpereszteg

    35 M Ft
    4 szoba
    145 m2
    Eladó családi ház
    Eladó családi ház

    Alattyán

    45 M Ft
    4 + 1 szoba
    186 m2
    Eladó családi ház
    Eladó családi ház

    Szurdokpüspöki

    16 M Ft
    1 szoba
    45 m2
    Eladó családi ház
    Eladó családi ház

    Szederkény

    107.9 M Ft
    6 szoba
    224 m2
    Eladó családi ház
    Eladó családi ház

    Mikebuda

    44.9 M Ft
    3 szoba
    93 m2
    Eladó családi ház
    Eladó családi ház

    Magyarszék

    48.5 M Ft
    3 + 1 szoba
    86 m2
    Eladó családi ház
    Eladó családi ház

    Tápióság

    30 M Ft
    3 szoba
    67 m2
    Eladó családi ház
    Eladó családi ház

    Bag

    16.9 M Ft
    6 szoba
    160 m2