Aerogate Homes

Kiadó téglalakás, albérlet
Szeged, 2. emelet

+ 8 kép 1/11
240 000 Ft240 E Ft / hó 3 692 Ft/m2
3 szoba
65 m²
2. emelet
építés éve:1970

Részletes adatok

Állapot: Felújított
Fűtés: Gázkazán
Emelet: 2. emelet
Energetikai besorolás: Nem adta meg a hirdető

Az OTP Bank lakáshitel ajánlataFizetett hirdetés

Hitelösszeg 10 millió Ft
Futamidő 20 év
Induló törlesztőrészlet 67 508 Ft
Törlesztőrészlet a 13. hónaptól 86 071 Ft
THM 8,6 %

A tájékoztatás nem teljes körű és nem minősül ajánlattételnek. Az OTP Évnyerő Lakáshitelei 1 éves türelmi idős kölcsönök, amellyel az első 12 hónapban alacsonyabb a havi törlesztőrészlet. A tőke törlesztését a 13. hónaptól kell megkezdeni.

    Részletes kalkuláció
    +36 30 974
    Vetró-Gyenizse Dóra Anna
    referens

    Érdekel az OTP Bank kedvezményes lakáshitel ajánlata? *

    * A kérdésre „Igen” válasz bejelölése esetén, az „Üzenet küldése” gombra kattintva kijelentem, hogy az OTP Bank Nyrt. Adatkezelési tájékoztatójának tartalmát megismertem és tudomásul vettem.

    Kiadó téglalakás, albérlet leírása

    Igényes, teljesen felújított lakás kiadó Szegeden!

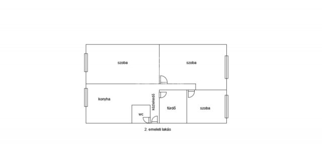
    Kiadó Szeged kedvelt részén, a Sándor utcában egy 2. emeleti, 65 m²-es, teljes körűen felújított, bútorozott és gépesített lakás.

    Az ingatlan kiváló elosztású: 3 külön nyíló szoba biztosít kényelmes életteret, így ideális választás lehet akár több bérlő számára is. A modern kialakítás, a klímaberendezés, valamint a cirkó fűtés gondoskodik a komfortos mindennapokról és a gazdaságos fenntartásról.

    A lakás 2026. június 15-től költözhető, állapota kiváló, azonnal birtokba vehető.

    Főbb jellemzők:

    * 65 m² alapterület
    * 3 külön nyíló szoba
    * Teljesen felújított állapot
    * Bútorozott és gépesített
    * Klímával felszerelt
    * Cirkó fűtés
    * 2. emeleti elhelyezkedés
    * Parkolás az utcán lehetséges
    * Nem erkélyes

    Bérleti feltételek:

    * Bérleti díj: 240.000 Ft/hó + rezsi
    * 2 havi kaució szükséges
    * Minimum bérleti idő: 12 hónap
    * Közjegyzői okirat vállalása szükséges
    * Kisállat nem hozható

    **Kinek ajánljuk?**
    Ideális választás lehet akár 3 diák számára is, de fiatal pároknak vagy kisebb családoknak is tökéletes otthon.

    Ne maradjon le erről a kiváló adottságú albérletről! További információért és megtekintés egyeztetéséhez keressen bizalommal. ...TOVÁBBI, TÖBBEZRES INGATLAN KÍNÁLAT: www.gdn-ingatlan.hu - GDN azonosító: 394916

    Hirdetés feltöltve: 2026. 04. 18. Utoljára módosítva: 2026. 05. 06.

    3 szobás téglalakások ára Szegeden

    Ebből az összehasonlításból megtudhatod, hogyan viszonyul a lakás ára a környékbeli téglalakások átlagos árához. Ez nem azt jelenti, hogy ennyivel olcsóbb vagy drágább, mint amennyit a lakás ér, hanem hogy ennyivel tér el a környékbeli átlagtól.

    Ennek a m² ára
    Szeged m² ár
    4 e Ft
    4 e Ft 15%
    Ennek az ára
    Szeged átlagár
    240 E Ft / hó m Ft
    0.3 m Ft 22%

    Az ingatlan elhelyezkedése

    Cím: Szeged, 2. emelet

    Kiadó téglalakások, albérletek a környékről

    Szeged, Belváros, Dugonics tér
    Kiadó téglalakás, albérlet

    Szeged

    380 E Ft / hó
    4 szoba
    95 m²
    Szeged, Belváros, Munkácsy utca
    Kiadó téglalakás, albérlet

    Szeged

    250 E Ft / hó
    2 szoba
    56 m²
    Szeged, Rókus, Fő fasor
    Kiadó téglalakás, albérlet

    Szeged

    350 E Ft / hó
    2 + 1 szoba
    94 m²
    Szeged, Felsőváros, Bécsi körút
    Kiadó téglalakás, albérlet

    Szeged

    170 E Ft / hó
    1 + 1 szoba
    44 m²
    Szeged
    Kiadó téglalakás, albérlet

    Szeged

    175 E Ft / hó
    1 + 1 szoba
    45 m²
    Szeged
    Kiadó téglalakás, albérlet

    Szeged

    300 E Ft / hó
    2 szoba
    55 m²
    Szeged, Belváros, Béke
    Kiadó téglalakás, albérlet

    Szeged

    220 E Ft / hó
    1 szoba
    36 m²
    Szeged
    Kiadó téglalakás, albérlet

    Szeged

    210 E Ft / hó
    2 szoba
    38 m²
    Szeged, Rókus, Fő fasor
    Kiadó téglalakás, albérlet

    Szeged

    350 E Ft / hó
    2 + 1 szoba
    94 m²
    Szeged
    Kiadó téglalakás, albérlet

    Szeged

    175 E Ft / hó
    1 + 1 szoba
    45 m²
    Szeged
    Kiadó téglalakás, albérlet

    Szeged

    300 E Ft / hó
    3 szoba
    55 m²
    Szeged, Belváros, Dugonics tér
    Kiadó téglalakás, albérlet

    Szeged

    380 E Ft / hó
    4 szoba
    95 m²
    Szeged
    Kiadó téglalakás, albérlet

    Szeged

    160 E Ft / hó
    1 szoba
    38 m²
    Szeged, Felsőváros, Bécsi körút
    Kiadó téglalakás, albérlet

    Szeged

    170 E Ft / hó
    1 + 1 szoba
    44 m²
    Szeged
    Kiadó téglalakás, albérlet

    Szeged

    200 E Ft / hó
    1 + 1 szoba
    52 m²
    Szeged
    Kiadó téglalakás, albérlet

    Szeged

    350 E Ft / hó
    3 szoba
    90 m²
    Szeged, Belváros, Remény utca
    Kiadó téglalakás, albérlet

    Szeged

    265 E Ft / hó
    3 szoba
    65 m²
    Szeged
    Kiadó téglalakás, albérlet

    Szeged

    240 E Ft / hó
    2 szoba
    42 m²
    Szeged
    Kiadó téglalakás, albérlet

    Szeged

    220 E Ft / hó
    1 szoba
    37 m²
    Szeged
    Kiadó téglalakás, albérlet

    Szeged

    160 E Ft / hó
    1 szoba
    38 m²
    Szeged, Belváros, Katona József
    Kiadó téglalakás, albérlet

    Szeged

    175 E Ft / hó
    3 + 1 szoba
    90 m²
    Szeged
    Kiadó téglalakás, albérlet

    Szeged

    200 E Ft / hó
    2 szoba
    33 m²
    Szeged
    Kiadó téglalakás, albérlet

    Szeged

    240 E Ft / hó
    2 szoba
    42 m²
    Szeged, Belváros, Dugonics tér
    Kiadó téglalakás, albérlet

    Szeged

    480 E Ft / hó
    4 szoba
    95 m²

    Falusi CSOK ingatlanok

    Bácsbokod
    Eladó családi ház

    Bácsbokod

    55 M Ft
    6 szoba
    250 m²
    Bogács
    Eladó családi ház

    Bogács

    64.95 M Ft
    7 szoba
    125 m²
    Nagyhegyes
    Eladó családi ház

    Nagyhegyes

    54.99 M Ft
    2 szoba
    79 m²
    Zalaszentiván
    Eladó ikerház

    Zalaszentiván

    54.99 M Ft
    5 szoba
    160 m²
    Nagytevel
    Eladó családi ház

    Nagytevel

    34.9 M Ft
    3 szoba
    110 m²
    Törtel
    Eladó családi ház

    Törtel

    20 M Ft
    2 szoba
    63 m²
    Ceglédbercel
    Eladó családi ház

    Ceglédbercel

    67 M Ft
    3 szoba
    97 m²
    Hegyeshalom, Margaréta utca 12
    Eladó téglalakás

    Hegyeshalom

    50.09 M Ft
    2 szoba
    43 m²