Astora Art House

Kiadó téglalakás, albérlet
Salgótarján

+ 5 kép 1/8
140 000 Ft140 E Ft / hó 1 795 Ft/m2
3 szoba
78 m2
építés éve:1976

Részletes adatok

Fűtés: Gázkazán
Emelet: földszint
Energetikai besorolás: C

Az OTP Bank lakáshitel ajánlataFizetett hirdetés

Hitelösszeg 10 millió Ft
Futamidő 20 év
Induló törlesztőrészlet 67 508 Ft
Törlesztőrészlet a 13. hónaptól 86 071 Ft
THM 8,6 %

A tájékoztatás nem teljes körű és nem minősül ajánlattételnek. Az OTP Évnyerő Lakáshitelei 1 éves türelmi idős kölcsönök, amellyel az első 12 hónapban alacsonyabb a havi törlesztőrészlet. A tőke törlesztését a 13. hónaptól kell megkezdeni.

    Részletes kalkuláció
    +36 70 439
    Tatár Tamás
    Városi Ingatlaniroda - VING

    Érdekel az OTP Bank kedvezményes lakáshitel ajánlata? *

    * A kérdésre „Igen” válasz bejelölése esetén, az „Üzenet küldése” gombra kattintva kijelentem, hogy az OTP Bank Nyrt. Adatkezelési tájékoztatójának tartalmát megismertem és tudomásul vettem.

    Kiadó téglalakás, albérlet leírása

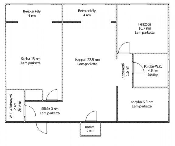
    Salgótarján (Kemerovó ltp.), 78 nm-es, 3 szobás, felújított, földszinti, alacsony fenntartási költségű lakás kiadó!

    Elsősorban vállalkozókat vár a tulajdonos! Szépségszalonnak, könyvelő irodának stb, alkalmas lakás.

    A lakásban 3 szoba, konyha, előszoba, 2 fürdőszoba, 2 beépített erkély található.

    A fűtést és a meleg víz ellátást kombi cirkó kazán biztosítja.

    A bérleti szerződés határozott időre, minimum 1 évre létesíthető. A szerződéskötés feltétele 2 havi kaució+tárgyhavi bérleti díj megfizetése.

    A lakásba maximum 2 felnőtt és 2 gyerek költözhet, kisállat NEM hozható, a dohányzás NEM megengedett.

    Hirdetés feltöltve: 2026. 01. 06. Utoljára módosítva: 2026. 01. 06.

    Az ingatlan elhelyezkedése

    Cím: Salgótarján

    Kiadó ingatlanok, albérletek a környékről

    Kiadó téglalakás, albérlet
    Kiadó téglalakás, albérlet

    Salgótarján

    130 E Ft / hó
    2 szoba
    55 m2
    Kiadó iroda
    Kiadó iroda

    Salgótarján

    125 E Ft / hó
    2 szoba
    49 m2
    Kiadó panellakás, albérlet
    Kiadó panellakás, albérlet

    Balassagyarmat

    140 E Ft / hó
    1 szoba
    43 m2
    Kiadó téglalakás, albérlet
    Kiadó téglalakás, albérlet

    Salgótarján

    90 E Ft / hó
    1 szoba
    27 m2
    Kiadó üzlethelyiség
    Kiadó üzlethelyiség

    Salgótarján

    100 E Ft / hó
    21 m2
    Kiadó téglalakás, albérlet
    Kiadó téglalakás, albérlet

    Salgótarján

    90 E Ft / hó
    1 szoba
    27 m2
    Kiadó téglalakás, albérlet
    Kiadó téglalakás, albérlet

    Salgótarján

    150 E Ft / hó
    2 szoba
    54 m2
    Kiadó üzlethelyiség
    Kiadó üzlethelyiség

    Salgótarján

    1990 E Ft / hó
    425 m2
    Kiadó üzlethelyiség
    Kiadó üzlethelyiség

    Salgótarján

    260 E Ft / hó
    200 m²
    76 m2
    Kiadó iroda
    Kiadó iroda

    Salgótarján

    50 E Ft / hó
    14 m2
    Kiadó téglalakás, albérlet
    Kiadó téglalakás, albérlet

    Salgótarján

    130 E Ft / hó
    2 szoba
    55 m2
    Kiadó üzlethelyiség
    Kiadó üzlethelyiség

    Salgótarján

    546 E Ft / hó
    91 m2
    Kiadó üzlethelyiség
    Kiadó üzlethelyiség

    Salgótarján

    325 E Ft / hó
    110 m2
    Kiadó üzlethelyiség
    Kiadó üzlethelyiség

    Salgótarján

    90 E Ft / hó
    12 m2
    Kiadó üzlethelyiség
    Kiadó üzlethelyiség

    Salgótarján

    195 E Ft / hó
    50 m2
    Kiadó téglalakás, albérlet
    Kiadó téglalakás, albérlet

    Salgótarján

    150 E Ft / hó
    2 szoba
    54 m2
    Kiadó téglalakás, albérlet
    Kiadó téglalakás, albérlet

    Salgótarján

    130 E Ft / hó
    2 szoba
    55 m2
    Kiadó üzlethelyiség
    Kiadó üzlethelyiség

    Salgótarján

    430 E Ft / hó
    105 m2
    Kiadó iroda
    Kiadó iroda

    Salgótarján

    650 E Ft / hó
    190 m2
    Kiadó téglalakás, albérlet
    Kiadó téglalakás, albérlet

    Salgótarján

    150 E Ft / hó
    2 szoba
    54 m2
    Kiadó iroda
    Kiadó iroda

    Salgótarján

    250 E Ft / hó
    4 szoba
    105 m2

    Falusi CSOK ingatlanok

    Eladó családi ház
    Eladó családi ház

    Tiszaroff

    12.5 M Ft
    2 szoba
    63 m2
    Eladó családi ház
    Eladó családi ház

    Balatonkeresztúr

    71.95 M Ft
    5 szoba
    128 m2
    Eladó családi ház
    Eladó családi ház

    Újszilvás

    23 M Ft
    3 + 1 szoba
    100 m2
    Eladó családi ház
    Eladó családi ház

    Belvárdgyula

    27.9 M Ft
    4 szoba
    120 m2
    Eladó családi ház
    Eladó családi ház

    Gógánfa

    22.99 M Ft
    3 szoba
    93 m2
    Eladó családi ház
    Eladó családi ház

    Bábolna

    90.3 M Ft
    5 szoba
    100 m2
    Eladó családi ház
    Eladó családi ház

    Devecser

    42.9 M Ft
    3 szoba
    100 m2
    Eladó családi ház
    Eladó családi ház

    Üllés

    35.5 M Ft
    3 szoba
    99 m2